Bildegalleri

Velkommen til Myrullveien 50F!
Solgt
Kaiskuru
Lys & delikat andelsleilighet - Bad og kjøkken oppgradert i 2022 - Terrasse - Parkeringsplass - Flotte turmuligheter
Prisantydning2 490 000 kr
Nøkkelinfo
- Boligtype
- Leilighet
- Eieform
- Andel
- Soverom
- 1
- Internt bruksareal
- 49 m² (BRA-i)
- Bruksareal
- 52 m²
- Eksternt bruksareal
- 3 m² (BRA-e)
- Balkong/Terrasse
- 11 m² (TBA)
- Byggeår
- 1981
- Energimerking
- F - Oransje
- Rom
- 2
- Tomteareal
- 5 913 m² (eiet)
Fasiliteter
Barnevennlig
Balkong/Terrasse
Garasje/P-plass
Offentlig vann/kloakk
Turterreng
Utsikt
Rolig
Om boligen
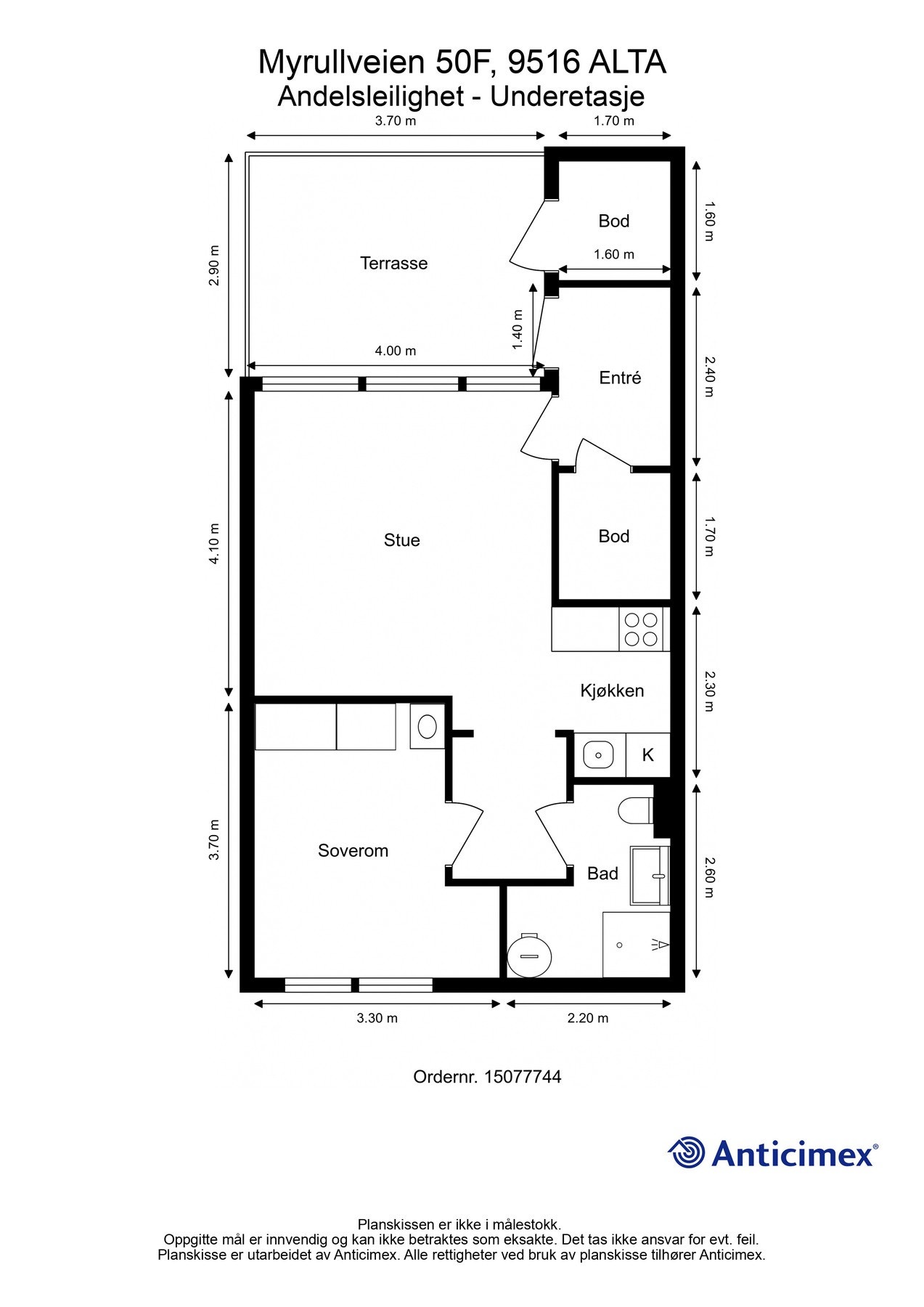
Velkommen til Myrullveien 50F! En lys og delikat andelsleilighet. Leiligheten har en praktisk planløsning og inneholder stue, kjøkken, bad og ett soverom. I tillegg har leiligheten en bod inne og en bod ute som sørger for ekstra god lagringsplass. Stuen har store vindusflater som gir rikelig med naturlig lysinnslipp. Bad og kjøkken ble oppgradert i 2022. Ved inngangspartiet har leiligheten en trivelig terrasse med god plass til en sittegruppe. Det medfølger parkeringsplass på felles tomt.
Eiendommen ligger i et attraktivt og rolig boligområde med kort vei til dagligvarebutikk og fritidsaktiviteter. Her bor du med naturen tett på og flotte turmuligheter året rundt, samtidig som sentrum ligger like ved.
Velkommen på visning!
Eiendommen ligger i et attraktivt og rolig boligområde med kort vei til dagligvarebutikk og fritidsaktiviteter. Her bor du med naturen tett på og flotte turmuligheter året rundt, samtidig som sentrum ligger like ved.
Velkommen på visning!
NB: Knappen for å vise hele beskrivelsen har kun en visuell effekt.
NB: Knappen for å vise hele beskrivelsen har kun en visuell effekt.
Salgsoppgaven beskriver vesentlig og lovpålagt informasjon om eiendommen
Se komplett salgsoppgaveNærområdet
Advanti & Partners
Verdien av lokalkunnskap
Annonseinformasjon
| FINN-kode | 445247071 |
|---|---|
| Sist endret | 24. jan. 2026 10:59 |
| Referanse | 89250248 |
Annonsene kan være mangelfulle i forhold til lovpålagt opplysningsplikt. Før bindende avtale inngås oppfordres interessenter til å innhente komplett informasjon fra meglerforetaket, selger eller utleier.


















