Bildegalleri

Velkommen til Cort Adelers gate 20! Presentert av Emma Eikrem v/ Krogsveen Majorstuen og Oslo Vest. Foto: CASP
Solgt
Vika/Frogner
Lys & delikat 2-roms m/god planløsning. Varmtvann inkl. i fk. Attraktiv beliggenhet nær Solli plass. Heis. Balkong!
Prisantydning5 650 000 kr
Nøkkelinfo
- Boligtype
- Leilighet
- Eieform
- Selveier
- Soverom
- 1
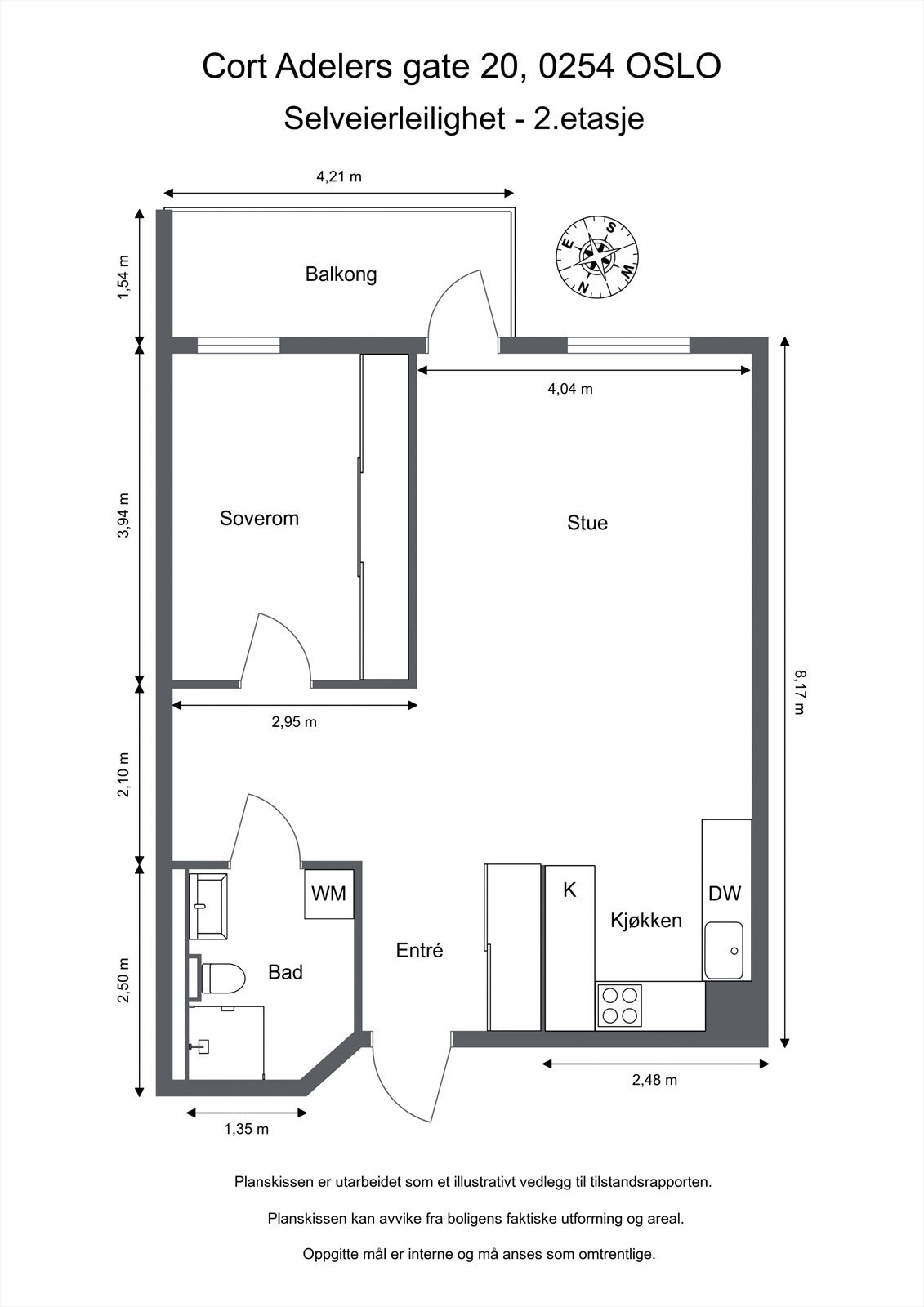
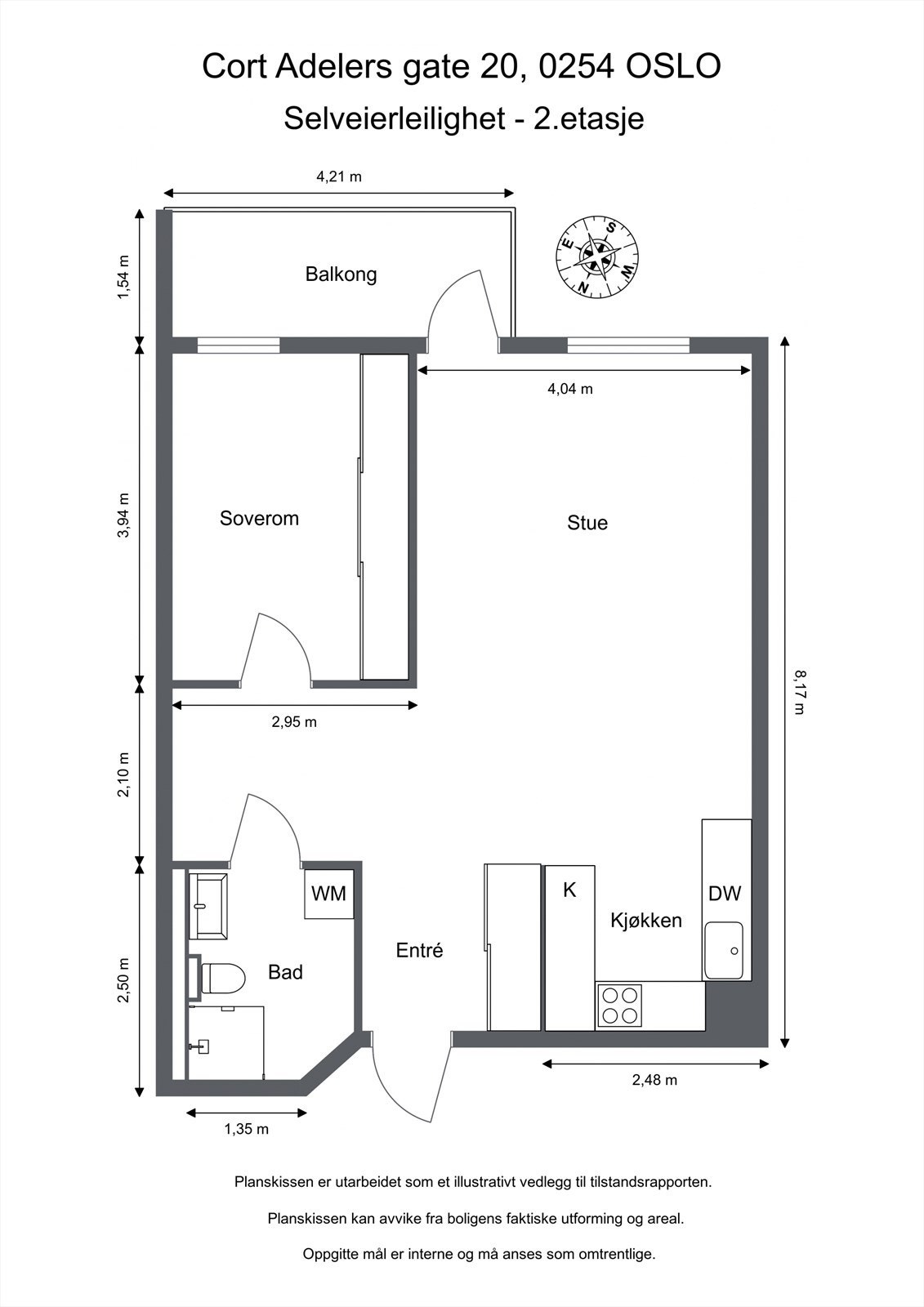
- Internt bruksareal
- 58 m² (BRA-i)
- Bruksareal
- 60 m²
- Eksternt bruksareal
- 2 m² (BRA-e)
- Balkong/Terrasse
- 6 m² (TBA)
- Etasje
- 2
- Byggeår
- 1989
- Energimerking
- D - Gul
- Rom
- 2
- Tomteareal
- 657 m² (eiet)
Fasiliteter
Balkong/Terrasse
Heis
Sentralt
Om boligen
Velkommen til Cort Adelers gate 20!
En lys og praktisk leilighet med gjennomtenkt planløsning og attraktiv beliggenhet midt mellom Solli plass og Tjuvholmen.
Bygget har inngang fra Huitfeldts gate og leiligheten ligger fint til i 2. etasje. Leiligheten byr på en åpen planløsning mellom stue og kjøkken som git et stort og sosialt oppholdsrom. Fra stuen har du utgang til en hyggelig, overbygd balkong på 6 kvm. Soverommet er romslig og ligger praktisk til ved stuen. Her bor du sentralt og rolig, med restauranter, butikker, treningssentre, parker og kollektivtransport rett utenfor døren.
Høydepunkter:
- Varmtvann inkludert i felleskostnadene
- Heis og balkong
- Bod i kjeller
- Nærhet til alt du trenger i hverdagen
- God planløsning
- Populær og sentral beliggenhet
Velkommen til visning!
En lys og praktisk leilighet med gjennomtenkt planløsning og attraktiv beliggenhet midt mellom Solli plass og Tjuvholmen.
Bygget har inngang fra Huitfeldts gate og leiligheten ligger fint til i 2. etasje. Leiligheten byr på en åpen planløsning mellom stue og kjøkken som git et stort og sosialt oppholdsrom. Fra stuen har du utgang til en hyggelig, overbygd balkong på 6 kvm. Soverommet er romslig og ligger praktisk til ved stuen. Her bor du sentralt og rolig, med restauranter, butikker, treningssentre, parker og kollektivtransport rett utenfor døren.
Høydepunkter:
- Varmtvann inkludert i felleskostnadene
- Heis og balkong
- Bod i kjeller
- Nærhet til alt du trenger i hverdagen
- God planløsning
- Populær og sentral beliggenhet
Velkommen til visning!
NB: Knappen for å vise hele beskrivelsen har kun en visuell effekt.
NB: Knappen for å vise hele beskrivelsen har kun en visuell effekt.
Salgsoppgaven beskriver vesentlig og lovpålagt informasjon om eiendommen
Se komplett salgsoppgaveNyttige lenker
Nærområdet
Krogsveen Majorstuen og Oslo Vest
Verdien av en god megler.
Annonseinformasjon
| FINN-kode | 445233264 |
|---|---|
| Sist endret | 19. mars 2026 13:14 |
| Referanse | KR40.25240 |
Annonsene kan være mangelfulle i forhold til lovpålagt opplysningsplikt. Før bindende avtale inngås oppfordres interessenter til å innhente komplett informasjon fra meglerforetaket, selger eller utleier.

























