Bildegalleri

Velkommen til Haukeveien 28 presentert av Mats Lund hos Krogsveen Bærum
Solgt
BEKKESTUA
Enebolig med stort potensial! Flott beliggenhet med stor hage og skjermede uteplasser! Rett ved skoler og alt av idrett!
Prisantydning11 900 000 kr
Nøkkelinfo
- Boligtype
- Enebolig
- Eieform
- Eier (Selveier)
- Soverom
- 3
- Internt bruksareal
- 178 m² (BRA-i)
- Bruksareal
- 199 m²
- Eksternt bruksareal
- 21 m² (BRA-e)
- Balkong/Terrasse
- 1 m² (TBA)
- Byggeår
- 1963
- Rom
- 5
- Tomteareal
- 1 190 m² (eiet)
Fasiliteter
Balkong/Terrasse
Barnevennlig
Garasje/P-plass
Golfbane
Hage
Kjæledyr tillatt
Ingen gjenboere
Kabel-TV
Offentlig vann/kloakk
Parkett
Peis/Ildsted
Rolig
Sentralt
Turterreng
Om boligen
Velkommen til Haukeveien 28 - en spennende enebolig med flott beliggenhet i utkanten av Bekkestua sentrum! Boligen har behov for oppussing, og har et stort potensial for deg som ønsker å sette ditt eget preg på hjemmet. Attraktiv og barnevennlige beliggenhet i rolig og lite trafikkert vei tett på Nadderudhallen og gangavstand til Bekkestua sentrum med et rikt utvalg forretninger og servicefasiliteter, barnehager og skoler, fritidsaktiviteter og mye mer.
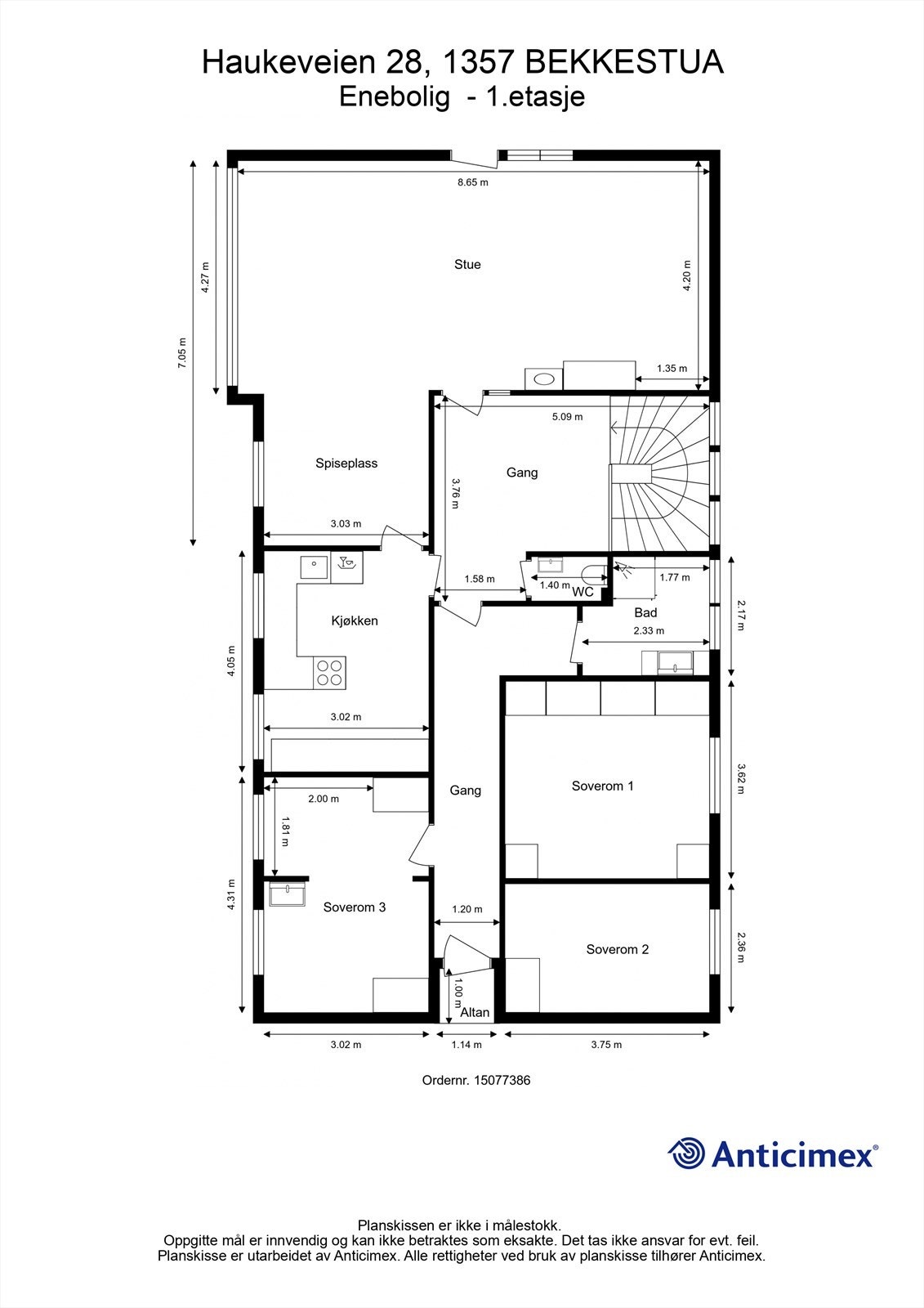
Boligen går over 2 plan, og har en flott planløsning bestående av entré, vaskerom, teknisk rom, to boder, toalettrom og stue i underetasjen, stue/spisestue, kjøkken, baderom, toalettrom, gang og tre soverom i 1. etasjen. Utvendig har du en stor og solrik hage med frukttrær og bed, usjenerte uteplasser og garasje.
Boligen går over 2 plan, og har en flott planløsning bestående av entré, vaskerom, teknisk rom, to boder, toalettrom og stue i underetasjen, stue/spisestue, kjøkken, baderom, toalettrom, gang og tre soverom i 1. etasjen. Utvendig har du en stor og solrik hage med frukttrær og bed, usjenerte uteplasser og garasje.
NB: Knappen for å vise hele beskrivelsen har kun en visuell effekt.
NB: Knappen for å vise hele beskrivelsen har kun en visuell effekt.
Salgsoppgaven beskriver vesentlig og lovpålagt informasjon om eiendommen
Se komplett salgsoppgaveNyttige lenker
Nærområdet
Krogsveen Bærum
Verdien av en god megler.
Annonseinformasjon
| FINN-kode | 445214872 |
|---|---|
| Sist endret | 22. jan. 2026 12:49 |
| Referanse | KR10.25373 |
Annonsene kan være mangelfulle i forhold til lovpålagt opplysningsplikt. Før bindende avtale inngås oppfordres interessenter til å innhente komplett informasjon fra meglerforetaket, selger eller utleier.





















































