Bildegalleri

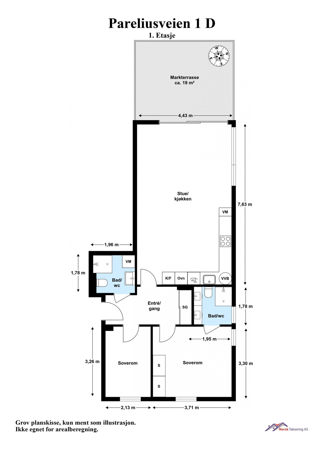
Rålekker, vesentlig oppusset (2023) 3-roms selveierleilighet på 69 m² med rolig og sentral beliggenhet på Holtet i bydel Nordstrand.
Rålekker, nyoppusset (2023) 3-roms leilighet med rolig og meget sentral beliggenhet | 19 m² terrasse | Garasje | Heis
Prisantydning7 950 000 kr
Nøkkelinfo
- Boligtype
- Leilighet
- Eieform
- Eier (Selveier)
- Soverom
- 2
- Internt bruksareal
- 69 m² (BRA-i)
- Bruksareal
- 77 m²
- Eksternt bruksareal
- 8 m² (BRA-e)
- Balkong/Terrasse
- 19 m² (TBA)
- Etasje
- 1
- Byggeår
- 2010
- Energimerking
- C - Lysegrønn
- Rom
- 3
- Tomteareal
- 2 983 m² (eiet)
Fasiliteter
Barnevennlig
Balkong/Terrasse
Garasje/P-plass
Kabel-TV
Heis
Offentlig vann/kloakk
Parkett
Turterreng
Sentralt
Bredbåndstilknytning
Moderne
Rolig
Lademulighet
Om boligen
Rålekker, vesentlig oppusset (2023) 3-roms selveierleilighet på 69 m² med rolig og sentral beliggenhet på Holtet i bydel Nordstrand. I tillegg medfølger 2 kjellerboder på hver ca. 3 m² og 5 m², samt garasjeplass med ladestasjon for el-bil. Vestvendt, steinbelagt uteplass på ca. 19 m² med enkel tilgang fra stuen.
- Inneholder stue/kjøkken, 2 soverom, 2 bad/wc og entré/gang
- Trappefri adkomst til både leilighet og garasjeanlegg
- Drømmekjøkkenet fra 2023 med integrerte hvitevarer
- 1-stav hardwood parkett i oppholdsrom
- Gulvvarme i entré og stue/kjøkken
- Lekre baderom med gulvvarme
- Plissegardin på alle vinduer
- VVS med "Rør-i-rør"
- Skjult elanlegg med automatsikringer
- Kort gangavstand til trikkeholdeplass
- Nærhet til friområder ved Ekebergsletta og Brannfjell
- Inneholder stue/kjøkken, 2 soverom, 2 bad/wc og entré/gang
- Trappefri adkomst til både leilighet og garasjeanlegg
- Drømmekjøkkenet fra 2023 med integrerte hvitevarer
- 1-stav hardwood parkett i oppholdsrom
- Gulvvarme i entré og stue/kjøkken
- Lekre baderom med gulvvarme
- Plissegardin på alle vinduer
- VVS med "Rør-i-rør"
- Skjult elanlegg med automatsikringer
- Kort gangavstand til trikkeholdeplass
- Nærhet til friområder ved Ekebergsletta og Brannfjell
NB: Knappen for å vise hele beskrivelsen har kun en visuell effekt.
NB: Knappen for å vise hele beskrivelsen har kun en visuell effekt.
Salgsoppgaven beskriver vesentlig og lovpålagt informasjon om eiendommen
Se komplett salgsoppgaveNyttige lenker
Nærområdet

PrivatMegleren Panorama
Kun det beste på dine vegne
Annonseinformasjon
| FINN-kode | 445204008 |
|---|---|
| Sist endret | 23. jan. 2026 06:53 |
| Referanse | 38260004 |
Annonsene kan være mangelfulle i forhold til lovpålagt opplysningsplikt. Før bindende avtale inngås oppfordres interessenter til å innhente komplett informasjon fra meglerforetaket, selger eller utleier.











































