Bildegalleri

Velkommen til Vollsveien 213B, presentert av Anders Bonesmo, EIE Eiendomsmegling Stabekk. Foto: DIAKRIT/ Lars Boyesen

Eiksmarka

Stor og innbydende halvpart av tomannsbolig, rolig beliggende midt på attraktive Eiksmarka. Garasje. Solrike uteområder.

Prisantydning13 500 000 kr
Totalpris
13 838 850 kr
Omkostninger
338 850 kr
Kommunale avg.
18 871 kr per år
Formuesverdi
2 139 403 kr

Nøkkelinfo

Boligtype
Tomannsbolig
Eieform
Eier (Selveier)
Soverom
3
Internt bruksareal
171 m² (BRA-i)
Bruksareal
189 m²
Eksternt bruksareal
18 m² (BRA-e)
Balkong/Terrasse
22 m² (TBA)
Byggeår
1954
Tomteareal
251 m² (eiet)

Les mer om bruksareal her

Fasiliteter

Barnevennlig
Balkong/Terrasse
Garasje/P-plass
Kabel-TV
Alarm
Offentlig vann/kloakk
Parkett
Peis/Ildsted
Turterreng
Sentralt
Bredbåndstilknytning
Moderne
Rolig
Lademulighet

Visning

Ta kontakt for å avtale visning.Visningspåmelding

Om boligen

Velkommen til Vollsveien 213B!
En romslig og svært hyggelig halvpart av tomannsbolig, beliggende tilbaketrukket i en stille sidevei. Kun noen hundre m/ til buss, T-bane ( linje 2) og barneskole. Eiksmarka senter ligger også i umiddelbar nærhet. Store friområder med fotballbane og sandkasse finnes rett i nærheten.
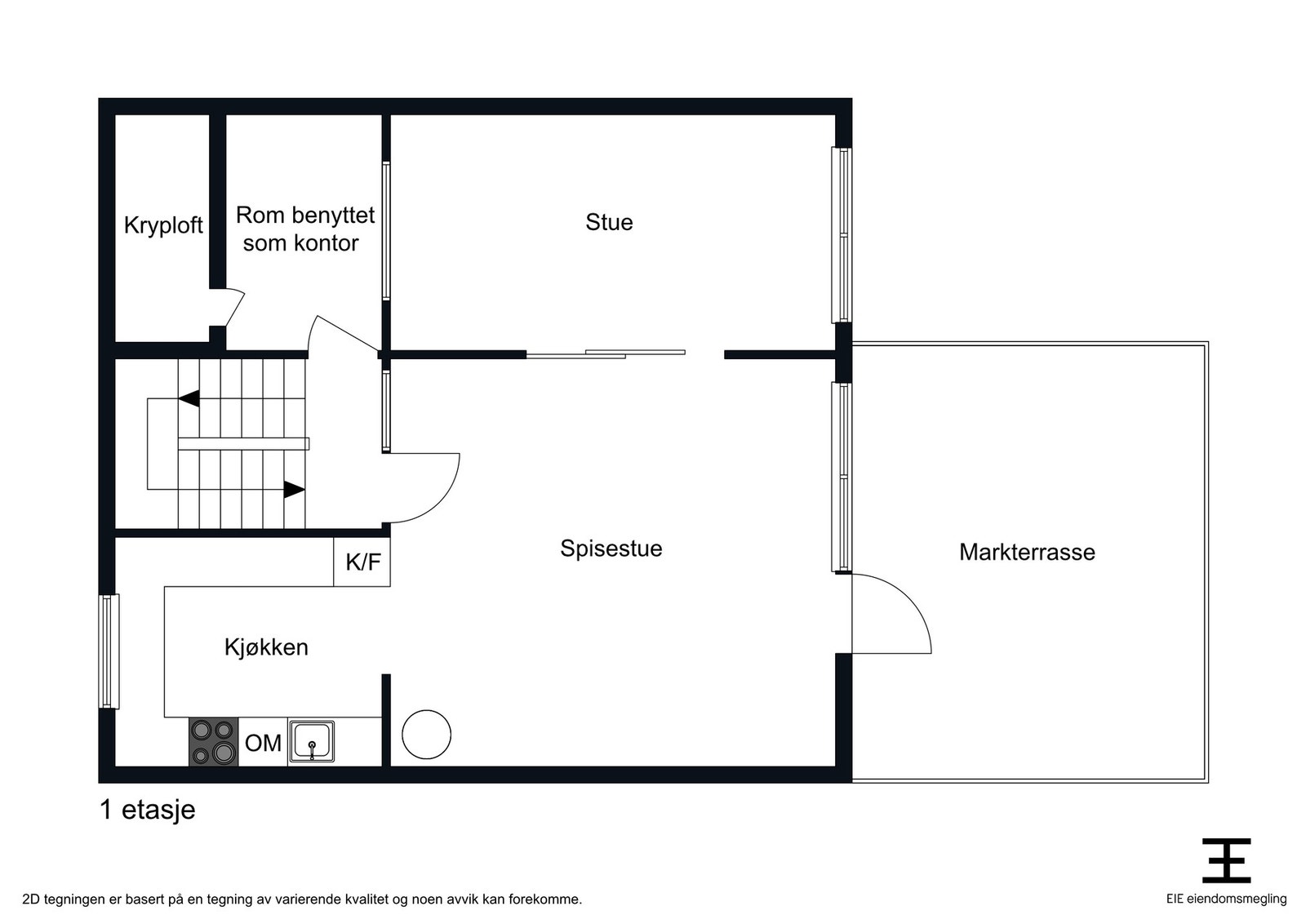
Boligen har en stor og innbydende hall/entré m/ svært god garderobeplass. Lys og romslig stue med utgang til en solrik og hyggelig uteplass med hage. Åpen kjøkkenløsning mot stuen m/ rikelig skap- og benkeplass. Tre soverom på samme etasjeplan med store vinduer, samt et pent flislagt bad med badekar.
I kjelleren finner du et stort flislagt bad/vaskerom med eget tørkerom, en romslig og koselig kjellerstue samt egen smørebod. Godt med parkeringsplasser og én garasjeplass.
Velkommen!

Salgsoppgaven beskriver vesentlig og lovpålagt informasjon om eiendommen

Se komplett salgsoppgave

Nærområdet

Annonseinformasjon

FINN-kode445186815
Sist endret02. feb. 2026 05:07
Referanse9251063

Rapporter annonse

Annonsene kan være mangelfulle i forhold til lovpålagt opplysningsplikt. Før bindende avtale inngås oppfordres interessenter til å innhente komplett informasjon fra meglerforetaket, selger eller utleier.