Bildegalleri

Velkommen til Fana og Titlestadvegen 236B - en stor og romslig enebolig i et attraktivt og etablert boligområde presentert av Tage Helle v/ Fana Sparebank Eiendom!
Innholdsrik enebolig med attraktiv beliggenhet | Stor opparbeidet hage | Garasjeplass | Barnevennlig og rolig område
Prisantydning6 990 000 kr
Nøkkelinfo
- Boligtype
- Enebolig
- Eieform
- Eier (Selveier)
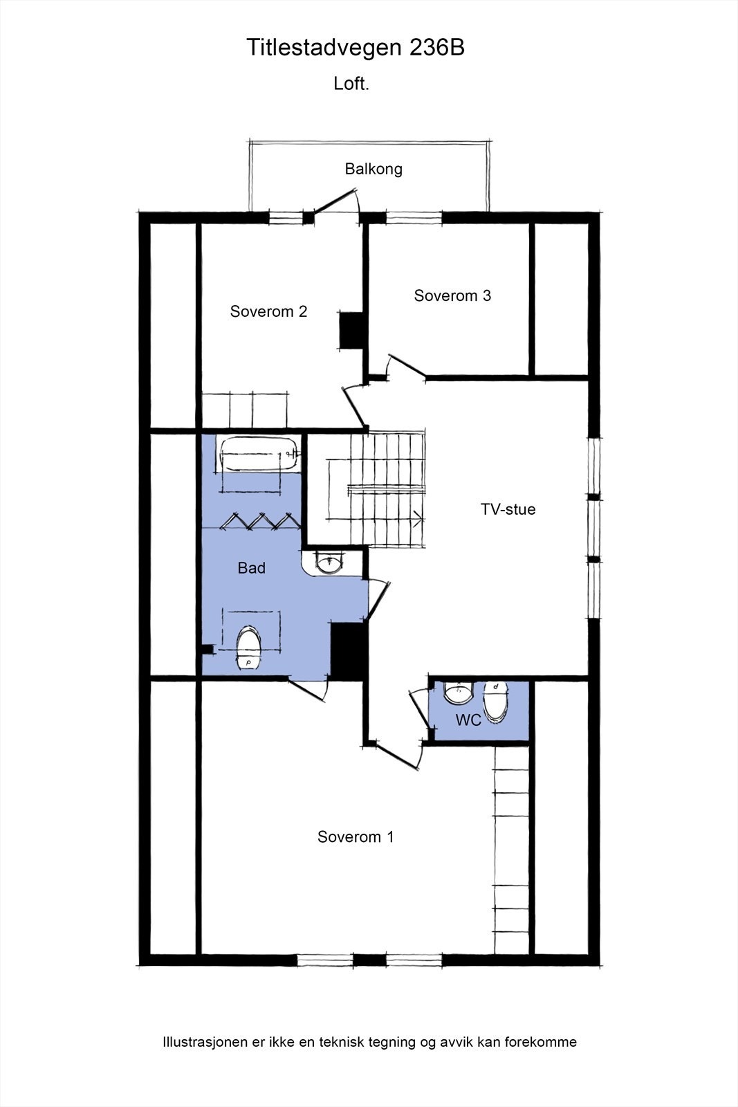
- Soverom
- 3
- Internt bruksareal
- 310 m² (BRA-i)
- Bruksareal
- 310 m²
- Balkong/Terrasse
- 32 m² (TBA)
- Etasje
- 3
- Byggeår
- 1988
- Energimerking
- C - Lysegrønn
- Tomteareal
- 1 075 m² (eiet)
Fasiliteter
Balkong/Terrasse
Barnevennlig
Garasje/P-plass
Hage
Offentlig vann/kloakk
Peis/Ildsted
Rolig
Turterreng
Om boligen
Velkommen til Fana og Titlestadvegen 236B - en stor og romslig enebolig i et attraktivt og etablert boligområde presentert av Tage Helle v/ Fana Sparebank Eiendom!
Her kan du bo i et trygt nabolag med kort avstand til barnehage og skoler, gode kollektivforbindelser og dagligvarebutikker. Nærhet til natur og friluftsmuligheter som Stendafjellet, Fanafjellet, Hordnesskogen og golfbaner. Kort kjøretur til Lagunen Storsenter, Bergen Sentrum og store arbeidsplasser på Sandsli og Kokstad.
Eiendommen har stort potensiale med mye areal, hvor kjøper kan skape sitt eget drømmehjem! Her er mulighetene mange for å få det akkurat slik du ønsker.
Solrik tomt som er pent opparbeidet med flotte uteareler. Delt garasje med naboen, i tillegg til god plass til parkering på egen tomt.
Velkommen!
Her kan du bo i et trygt nabolag med kort avstand til barnehage og skoler, gode kollektivforbindelser og dagligvarebutikker. Nærhet til natur og friluftsmuligheter som Stendafjellet, Fanafjellet, Hordnesskogen og golfbaner. Kort kjøretur til Lagunen Storsenter, Bergen Sentrum og store arbeidsplasser på Sandsli og Kokstad.
Eiendommen har stort potensiale med mye areal, hvor kjøper kan skape sitt eget drømmehjem! Her er mulighetene mange for å få det akkurat slik du ønsker.
Solrik tomt som er pent opparbeidet med flotte uteareler. Delt garasje med naboen, i tillegg til god plass til parkering på egen tomt.
Velkommen!
NB: Knappen for å vise hele beskrivelsen har kun en visuell effekt.
NB: Knappen for å vise hele beskrivelsen har kun en visuell effekt.
Salgsoppgaven beskriver vesentlig og lovpålagt informasjon om eiendommen
Se komplett salgsoppgaveNyttige lenker
Nærområdet
Fana Sparebank Eiendom
Annonseinformasjon
| FINN-kode | 445102256 |
|---|---|
| Sist endret | 22. jan. 2026 13:49 |
| Referanse | 01250342 |
Annonsene kan være mangelfulle i forhold til lovpålagt opplysningsplikt. Før bindende avtale inngås oppfordres interessenter til å innhente komplett informasjon fra meglerforetaket, selger eller utleier.























































