Bildegalleri

Velkommen til Gjallarveien 14C
Solgt
TÅRNÅSEN - RETT VED SKOLEN OG MARKA
Romslig og pent rekkehus med svært god intern beliggenhet. Solrike uteplasser og hage. Garasjeplass m/lader. 4 soverom
Prisantydning6 750 000 kr
Nøkkelinfo
- Boligtype
- Rekkehus
- Eieform
- Eier (Selveier)
- Soverom
- 4
- Internt bruksareal
- 133 m² (BRA-i)
- Bruksareal
- 140 m²
- Eksternt bruksareal
- 7 m² (BRA-e)
- Balkong/Terrasse
- 28 m² (TBA)
- Byggeår
- 1969
- Energimerking
- E - Oransje
- Rom
- 4
- Tomteareal
- 119 m² (eiet)
Fasiliteter
Balkong/Terrasse
Barnevennlig
Bredbåndstilknytning
Garasje/P-plass
Hage
Kjæledyr tillatt
Offentlig vann/kloakk
Parkett
Peis/Ildsted
Rolig
Turterreng
Lademulighet
Om boligen
Gjallarveien er et attraktivt og familievennlig nabolag med trygg og meget kort vei til barnehage, barneskole og ungdomsskole. Gangavstand til nærbutikk og to minutter til buss med hyppige avganger til Oslo. Skogen med sine flotte turområder, sommer og vinter, ligger rett utenfor døren.
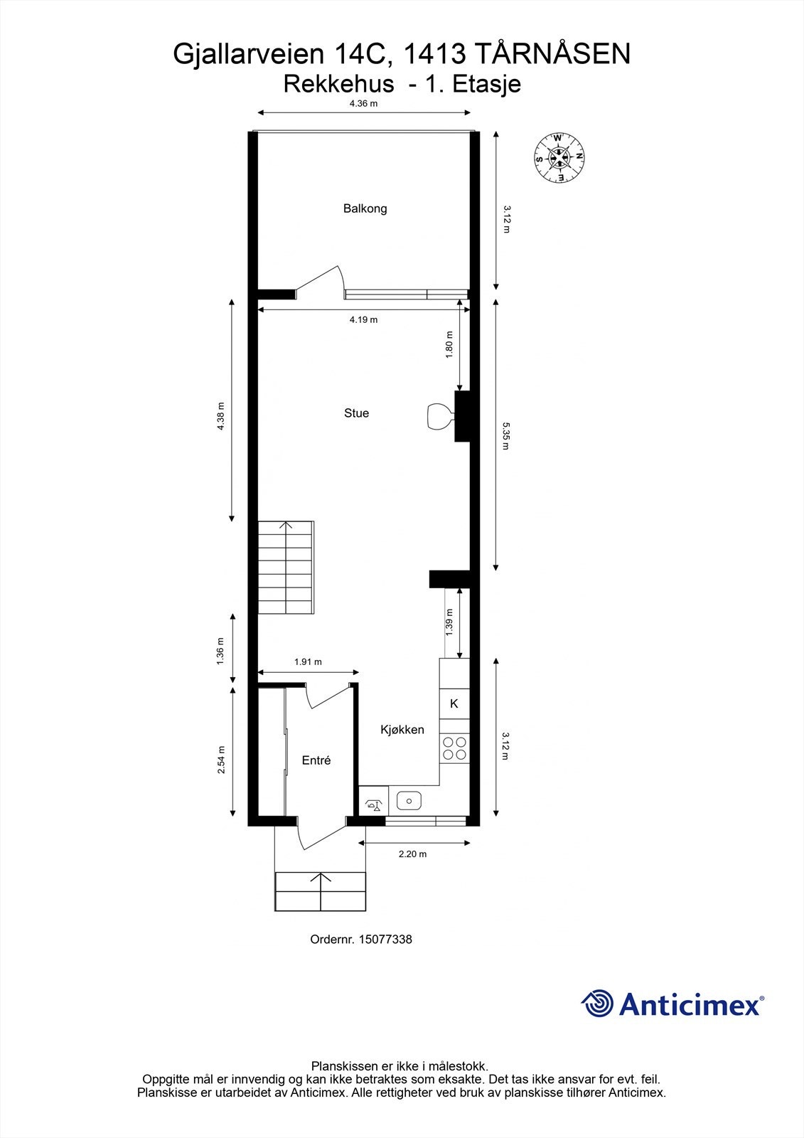
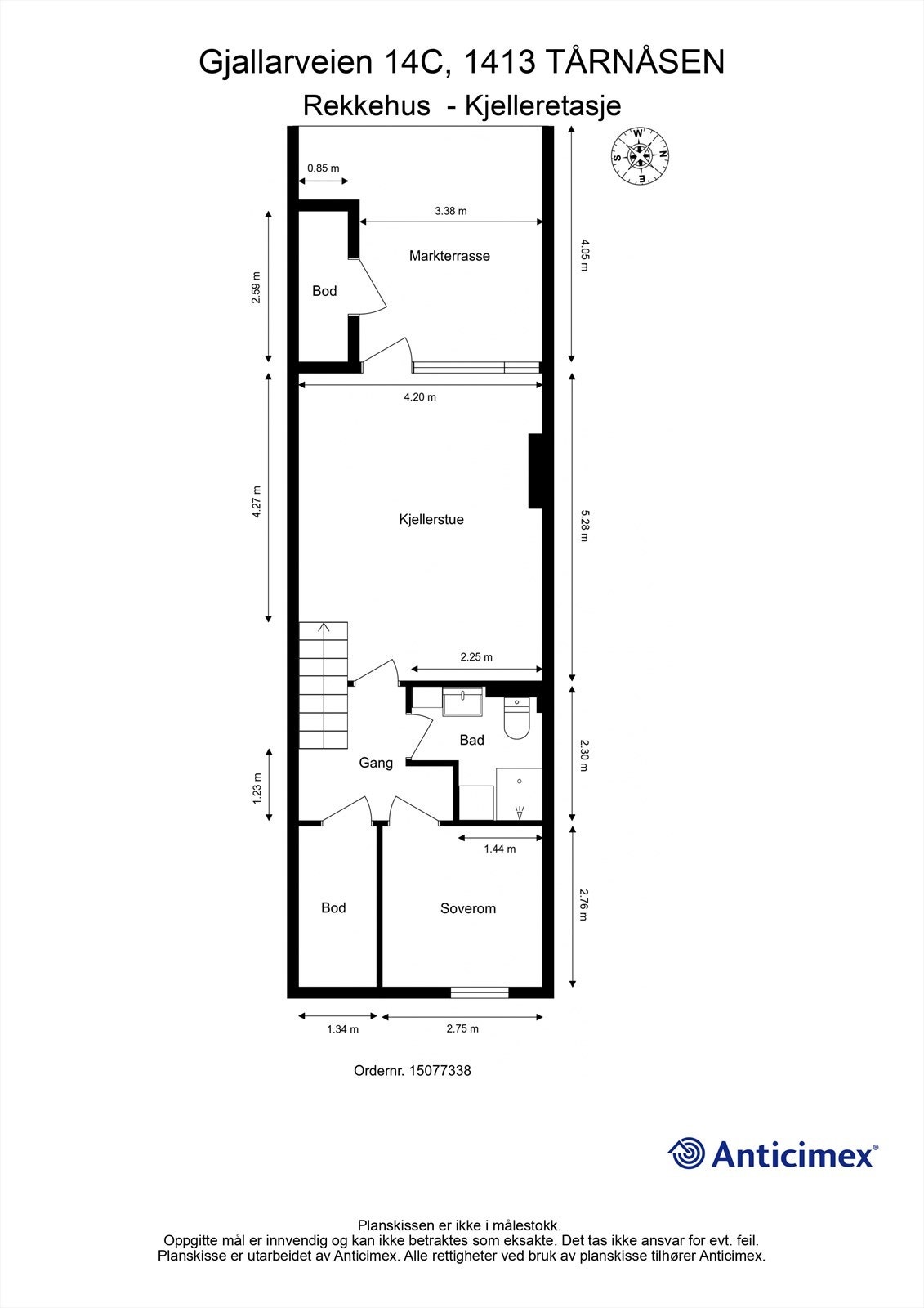
Rekkehuset går over tre plan og kan skilte med flere flotte, vestvendte uteplasser. Balkong på 14 kvm, markterrasse på 14 kvm og flott opparbeidet hage med gressplen og diverse frukttrær og bærbusker.1.etasjen har åpen stue- kjøkkenløsning med romslig spiseplass, peisovn, og direkte utgang til balkongen. 2.etasje består av tre soverom, bad og wc-rom. I kjelleretasjen er det kjellerstue, soverom, bad og bod. Ved overbygde inngangsparti er det en praktisk sportsbod på 5 kvm. Garasje i felles garasjerekke.
Rekkehuset går over tre plan og kan skilte med flere flotte, vestvendte uteplasser. Balkong på 14 kvm, markterrasse på 14 kvm og flott opparbeidet hage med gressplen og diverse frukttrær og bærbusker.1.etasjen har åpen stue- kjøkkenløsning med romslig spiseplass, peisovn, og direkte utgang til balkongen. 2.etasje består av tre soverom, bad og wc-rom. I kjelleretasjen er det kjellerstue, soverom, bad og bod. Ved overbygde inngangsparti er det en praktisk sportsbod på 5 kvm. Garasje i felles garasjerekke.
NB: Knappen for å vise hele beskrivelsen har kun en visuell effekt.
NB: Knappen for å vise hele beskrivelsen har kun en visuell effekt.
Salgsoppgaven beskriver vesentlig og lovpålagt informasjon om eiendommen
Se komplett salgsoppgaveNærområdet
Attentus Eiendomsmegling
Annonseinformasjon
| FINN-kode | 445089244 |
|---|---|
| Sist endret | 23. jan. 2026 13:44 |
| Referanse | ATE2.25115 |
Annonsene kan være mangelfulle i forhold til lovpålagt opplysningsplikt. Før bindende avtale inngås oppfordres interessenter til å innhente komplett informasjon fra meglerforetaket, selger eller utleier.















































