Bildegalleri

Krogsveen v/ Emilio de Paoli Dunne | Gimilvegen 11
Åsgreina
Tiltalende og velholdt enebolig med meget god intern beliggenhet | Skogen som nabo | Gangavstand til BHG. og skole |
Prisantydning5 790 000 kr
Nøkkelinfo
- Boligtype
- Enebolig
- Eieform
- Eier (Selveier)
- Soverom
- 3
- Internt bruksareal
- 186 m² (BRA-i)
- Bruksareal
- 211 m²
- Eksternt bruksareal
- 25 m² (BRA-e)
- Balkong/Terrasse
- 31 m² (TBA)
- Etasje
- 1
- Byggeår
- 1979
- Energimerking
- D - Gul
- Rom
- 4
- Tomteareal
- 794 m² (eiet)
Fasiliteter
Balkong/Terrasse
Barnevennlig
Hage
Offentlig vann/kloakk
Peis/Ildsted
Rolig
Turterreng
Om boligen
Gimilvegen 11 ligger med en meget god beliggenhet på feltet og skogen som nærmeste nabo. Perfekt familiebolig i rolige omgivelser med tur- og rekreasjonsmuligheter rett utenfor døren. Gangavstand til barneskole og barnehage.
Innholdsrik og attraktiv enebolig med gjennomgående god standard og som bærer preg å være godt velholdt.
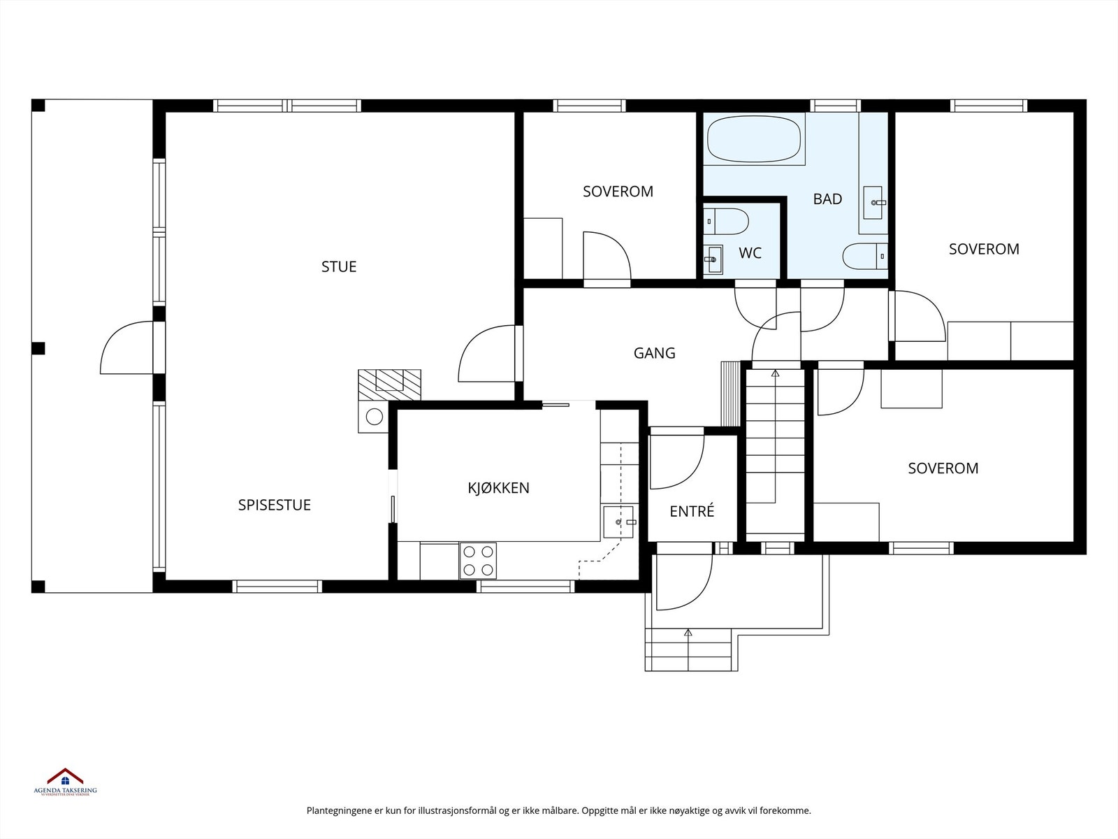
Boligen har en god og funksjonell planløsning over to plan med kjøkken, spisestue, stue, bad, vaskerom og tre soverom. Videre er det kjellerstue (ikke bruksendret), kjølerom og godt med oppbevaringsplass i boder. Fra stuen er det utgang til overbygd og vestvendt terrasse, her sitter du skjermet med utsyn mot skogen. Uteområdet er pent opparbeidet og velstelt hage med gressplen, beleggninsstein, asfaltert gårdsplass og god plass til barnelek.
Velkommen!
Innholdsrik og attraktiv enebolig med gjennomgående god standard og som bærer preg å være godt velholdt.
Boligen har en god og funksjonell planløsning over to plan med kjøkken, spisestue, stue, bad, vaskerom og tre soverom. Videre er det kjellerstue (ikke bruksendret), kjølerom og godt med oppbevaringsplass i boder. Fra stuen er det utgang til overbygd og vestvendt terrasse, her sitter du skjermet med utsyn mot skogen. Uteområdet er pent opparbeidet og velstelt hage med gressplen, beleggninsstein, asfaltert gårdsplass og god plass til barnelek.
Velkommen!
NB: Knappen for å vise hele beskrivelsen har kun en visuell effekt.
NB: Knappen for å vise hele beskrivelsen har kun en visuell effekt.
Salgsoppgaven beskriver vesentlig og lovpålagt informasjon om eiendommen
Se komplett salgsoppgaveNyttige lenker
Nærområdet
Krogsveen Jessheim
Verdien av en god megler.
Annonseinformasjon
| FINN-kode | 445069484 |
|---|---|
| Sist endret | 30. jan. 2026 10:13 |
| Referanse | KR63.25237 |
Annonsene kan være mangelfulle i forhold til lovpålagt opplysningsplikt. Før bindende avtale inngås oppfordres interessenter til å innhente komplett informasjon fra meglerforetaket, selger eller utleier.




















































