Bildegalleri

Velkommen til Vårveien 5B - Presentert av Truls Martin Nygaard og Renate Finnanger Fløan v/Nordvik - Fotograf: Joakim Karlsen
Solgt
Ekeberg/Simensbråten
Påkostet, nyere(2019) og solrik halvpart av tomannsbolig med hagedel - 4 soverom - 2 p-plasser - Kjeller m/egen inngang
Prisantydning14 500 000 kr
Nøkkelinfo
- Boligtype
- Tomannsbolig
- Eieform
- Eier (Selveier)
- Soverom
- 5
- Internt bruksareal
- 148 m² (BRA-i)
- Bruksareal
- 155 m²
- Eksternt bruksareal
- 7 m² (BRA-e)
- Balkong/Terrasse
- 55 m² (TBA)
- Etasje
- 3
- Byggeår
- 2019
- Energimerking
- C - Oransje
- Rom
- 6
- Tomteareal
- 1 252 m² (eiet)
Fasiliteter
Balkong/Terrasse
Barnevennlig
Garasje/P-plass
Hage
Kjæledyr tillatt
Offentlig vann/kloakk
Parkett
Peis/Ildsted
Rolig
Sentralt
Lademulighet
Balansert ventilasjon
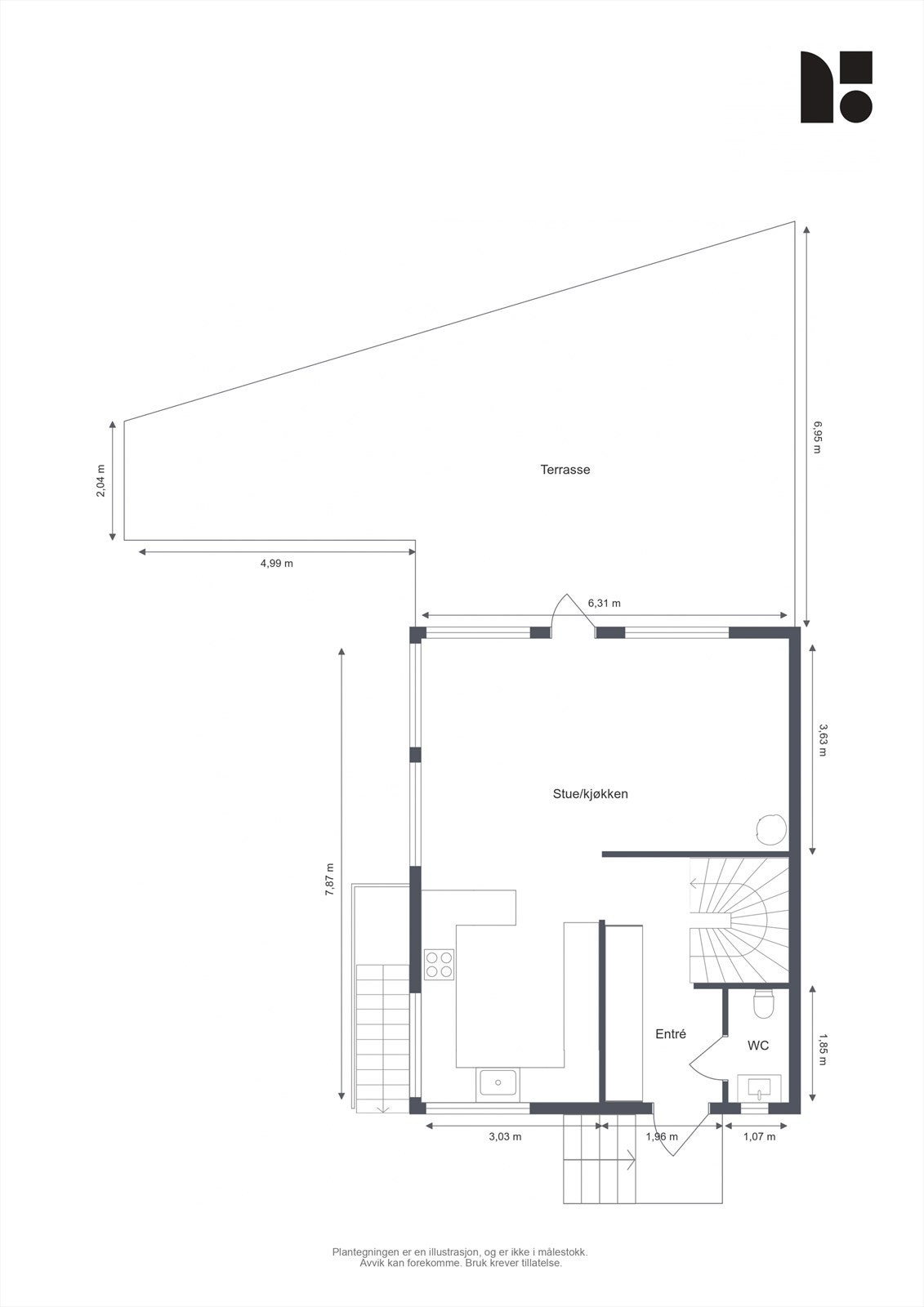
Om boligen
En meget tiltalende og moderne halvpart av tomannsbolig fra 2019 med tilbaketrukket beliggenhet. Boligen ligger i et veletablert og barnevennlig område på Simensbråten/Ekeberg, med nærhet til natur, fritidsaktiviteter, bussholdeplass (300 m) samt flere barnehager og Ekeberg skole like ved.
Innholdsrik bolig med god og effektiv romfordeling - perfekt for familieliv! Hovedplan med entré, wc, kjøkken, stue og adkomst til solrik terrasse og hyggelig hagedel. 2. etasje med 4 soverom og romslig bad. Kjeller med vaskerom, innredet rom og hybel med egen inngang - tidligere utleid for 12 500,-/mnd. To garasjeplasser og bod.
-Høy standard fra 2019
-2 garasjeplasser m/lader
-Sydøstvendt terrasse på 55 kvm og hage
-2 bad, separat wc og vaskerom
-Avskjermet og barnevennlig
-Balansert ventilasjon
Innholdsrik bolig med god og effektiv romfordeling - perfekt for familieliv! Hovedplan med entré, wc, kjøkken, stue og adkomst til solrik terrasse og hyggelig hagedel. 2. etasje med 4 soverom og romslig bad. Kjeller med vaskerom, innredet rom og hybel med egen inngang - tidligere utleid for 12 500,-/mnd. To garasjeplasser og bod.
-Høy standard fra 2019
-2 garasjeplasser m/lader
-Sydøstvendt terrasse på 55 kvm og hage
-2 bad, separat wc og vaskerom
-Avskjermet og barnevennlig
-Balansert ventilasjon
NB: Knappen for å vise hele beskrivelsen har kun en visuell effekt.
NB: Knappen for å vise hele beskrivelsen har kun en visuell effekt.
Salgsoppgaven beskriver vesentlig og lovpålagt informasjon om eiendommen
Se komplett salgsoppgaveNyttige lenker
Nærområdet
Nordvik Majorstuen
Annonseinformasjon
| FINN-kode | 445060563 |
|---|---|
| Sist endret | 28. jan. 2026 20:54 |
| Referanse | 8-0666/25 |
Annonsene kan være mangelfulle i forhold til lovpålagt opplysningsplikt. Før bindende avtale inngås oppfordres interessenter til å innhente komplett informasjon fra meglerforetaket, selger eller utleier.





























































