Bildegalleri

Albertine Schaug v/Aktiv Lillestrøm har gleden av å presentere Hovinbakken 11! Foto: Hilde Hugsand
Arkitekttegnet enebolig med dobbelgarasje, nyere kjøkken, fine uteplasser og helt ny peis. Stille og rolig - nær skoler!
Prisantydning7 750 000 kr
Nøkkelinfo
- Boligtype
- Enebolig
- Eieform
- Eier (Selveier)
- Soverom
- 4
- Internt bruksareal
- 230 m² (BRA-i)
- Bruksareal
- 267 m²
- Eksternt bruksareal
- 37 m² (BRA-e)
- Balkong/Terrasse
- 59 m² (TBA)
- Etasje
- 1
- Byggeår
- 1985
- Energimerking
- D - Gul
- Rom
- 6
- Tomteareal
- 659 m² (eiet)
Fasiliteter
Balkong/Terrasse
Barnevennlig
Garasje/P-plass
Hage
Kjæledyr tillatt
Peis/Ildsted
Rolig
Sentralt
Turterreng
Lademulighet
Om boligen
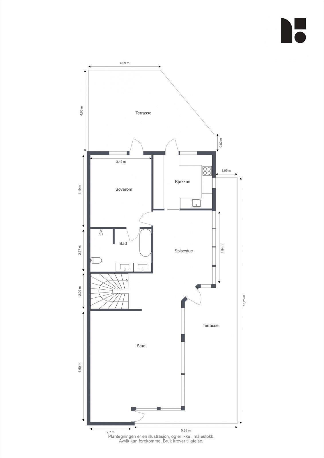
Velkommen til Hovinbakken 11, en arkitekttegnet enebolig med mye god plass over tre etasjer. Med to bad, to stuer og fire soverom egner huset seg for familier. Her bor man stille og rolig, med nærhet til skoler, barnehage, lekeplass og flotte turområder. I kort gangavstand finner man både buss og tog. Huset er kledd med kraftig villmarkspanel, og et skjermet uteareal inkluderer to romslige terrasser.
Stuen er luftig med åpen himling, store vinduer og rentbrennende peis fra desember. Et flott kjøkken fra 2021 har mye oppbevaring og alle integrerte hvitevarer. Videre er det vaskerom, gjestetoalett og dusjrom med tilhørende badstuerom. Med boligen følger zipscreens, sentralstøvsuger, nyere robotklipper og elbillader fra 2024. Parkeringen er svært god; i eller utenfor en dobbelgarasje.
Stuen er luftig med åpen himling, store vinduer og rentbrennende peis fra desember. Et flott kjøkken fra 2021 har mye oppbevaring og alle integrerte hvitevarer. Videre er det vaskerom, gjestetoalett og dusjrom med tilhørende badstuerom. Med boligen følger zipscreens, sentralstøvsuger, nyere robotklipper og elbillader fra 2024. Parkeringen er svært god; i eller utenfor en dobbelgarasje.
NB: Knappen for å vise hele beskrivelsen har kun en visuell effekt.
NB: Knappen for å vise hele beskrivelsen har kun en visuell effekt.
Salgsoppgaven beskriver vesentlig og lovpålagt informasjon om eiendommen
Se komplett salgsoppgaveNærområdet
Aktiv Lillestrøm
Annonseinformasjon
| FINN-kode | 444958149 |
|---|---|
| Sist endret | 27. jan. 2026 14:47 |
| Referanse | 1204250164 |
Annonsene kan være mangelfulle i forhold til lovpålagt opplysningsplikt. Før bindende avtale inngås oppfordres interessenter til å innhente komplett informasjon fra meglerforetaket, selger eller utleier.




















































