Bildegalleri

Velkommen til din nye drømmebolig i Ilaveien 2B - Skjermet, solrik beliggende i et rolig og attraktivt villaområde på Jar (Foto: Trond Walsø)
Jar / Grav skolekrets
Meget tiltalende enebolig m/høy standard- Barnevennlig- Solrik hage - Garasje - Ferdigstilles februar 2026
Prisantydning24 900 000 kr
Nøkkelinfo
- Boligtype
- Enebolig
- Eieform
- Eier (Selveier)
- Soverom
- 4
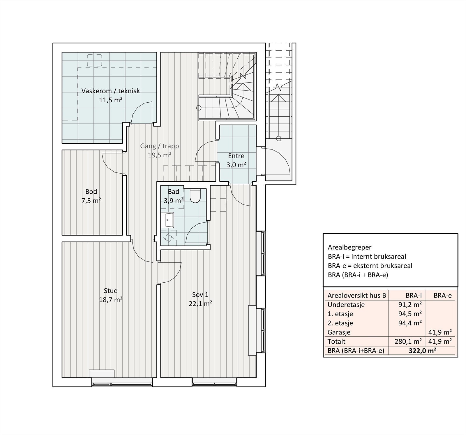
- Internt bruksareal
- 281 m² (BRA-i)
- Bruksareal
- 323 m²
- Eksternt bruksareal
- 42 m² (BRA-e)
- Balkong/Terrasse
- 27 m² (TBA)
- Etasje
- 3
- Byggeår
- 2026
- Tomteareal
- 813 m² (eiet)
Fasiliteter
Balkong/Terrasse
Barnevennlig
Bredbåndstilknytning
Garasje/P-plass
Hage
Kjæledyr tillatt
Kabel-TV
Offentlig vann/kloakk
Parkett
Rolig
Sentralt
Turterreng
Lademulighet
Balansert ventilasjon
Om boligen
Velkommen til din nye drømmebolig på Jar!
Høydepunkter
- Flott arkitekttegnet enebolig
- Innholdsrik og funksjonell planløsning
- Romslig og solrik hage
- 280 kvm
- Moderne og særpreget utrykk
- Høy standard
- Kvalitetsmaterialer
- Vannbåren varme i u. og 1. etg.
- Balansert ventilasjon
- Kjøkkeninnredning fra Sigdal
- 1-stavs eikeparkett
- Bricmate Beige og Brismate Ivory fliser
- Hybelmulighet i underetasje
- 4/5 soverom
- 3 bad + toalett + vaskerom
- Kjellerstue + loftstue
- Dobbelgarasje
- Ladeboks, kabel og sikring kan leveres som tilvalg
- Lagringsplass i innvendig bod
- Naturskjønne og familievennlig omgivelser
- Gangavstand til Grav barneskole
- Kort vei til Jar-huset, Bekkestua og CC-Vest
- Kun få min gange til offentlig kommunikasjon (T-bane og buss)
Høydepunkter
- Flott arkitekttegnet enebolig
- Innholdsrik og funksjonell planløsning
- Romslig og solrik hage
- 280 kvm
- Moderne og særpreget utrykk
- Høy standard
- Kvalitetsmaterialer
- Vannbåren varme i u. og 1. etg.
- Balansert ventilasjon
- Kjøkkeninnredning fra Sigdal
- 1-stavs eikeparkett
- Bricmate Beige og Brismate Ivory fliser
- Hybelmulighet i underetasje
- 4/5 soverom
- 3 bad + toalett + vaskerom
- Kjellerstue + loftstue
- Dobbelgarasje
- Ladeboks, kabel og sikring kan leveres som tilvalg
- Lagringsplass i innvendig bod
- Naturskjønne og familievennlig omgivelser
- Gangavstand til Grav barneskole
- Kort vei til Jar-huset, Bekkestua og CC-Vest
- Kun få min gange til offentlig kommunikasjon (T-bane og buss)
NB: Knappen for å vise hele beskrivelsen har kun en visuell effekt.
NB: Knappen for å vise hele beskrivelsen har kun en visuell effekt.
Salgsoppgaven beskriver vesentlig og lovpålagt informasjon om eiendommen
Se komplett salgsoppgaveNyttige lenker
Nærområdet
Nordvik Bærum
Annonseinformasjon
| FINN-kode | 444919038 |
|---|---|
| Sist endret | 27. jan. 2026 09:42 |
| Referanse | 56-0004/26 |
Annonsene kan være mangelfulle i forhold til lovpålagt opplysningsplikt. Før bindende avtale inngås oppfordres interessenter til å innhente komplett informasjon fra meglerforetaket, selger eller utleier.




































































