Bildegalleri

EIE Jessheim v/ Kristin Kjeksli (45445872) har gleden av å presentere Romsaas Alle 18! Foto: Bjørn Sørheim
Solgt
Stilig 3-roms leilighet med kun 200m til ukeshandel| Garasjeplass med elbillader | Balkong | ca.600m til storsenter!
Prisantydning2 450 000 kr
Nøkkelinfo
- Boligtype
- Leilighet
- Eieform
- Andel
- Soverom
- 2
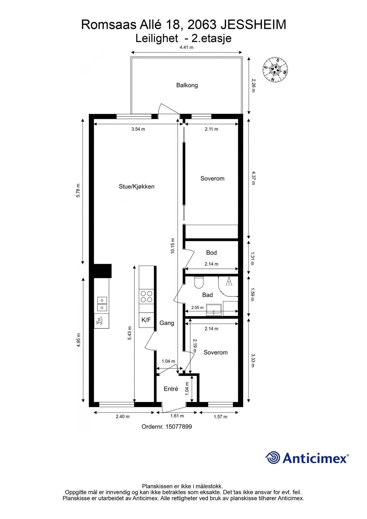
- Internt bruksareal
- 65 m² (BRA-i)
- Bruksareal
- 70 m²
- Eksternt bruksareal
- 5 m² (BRA-e)
- Balkong/Terrasse
- 10 m² (TBA)
- Etasje
- 2
- Byggeår
- 2007
- Energimerking
- D - Rød
- Rom
- 3
- Tomteareal
- 1 406 m² (eiet)
Fasiliteter
Balkong/Terrasse
Garasje/P-plass
Kabel-TV
Heis
Offentlig vann/kloakk
Parkett
Sentralt
Moderne
Lademulighet
Om boligen
EIE Jessheim v/ Kristin Kjeksli (45445872) har gleden av å presentere Romsaas Allé 18! Dette er en stilig og gjennomført 3-roms andelsleilighet beliggende i byggets 2. etasje i Soltunet 3 Borettslag. Leiligheten har en funksjonell og lettmøblert planløsning med entré, to soverom, flislagt bad med gulvvarme samt stue med åpen kjøkkenløsning. Oppholdsrommet oppleves luftig med gode lysforhold og utgang til balkong. Det medfølger utvendig bod samt fast garasjeplass i felles parkeringskjeller med elbillader, noe som gir en praktisk og komfortabel hverdag.
Eiendommen ligger sentralt og barnevennlig til på Jessheim, like utenfor sentrumskjernen. Her er det kort gangavstand til dagligvarehandel, med Coop Obs kun ca. 200 meter unna, samt ca. 600 meter til Jessheim Storsenter. Området har nærhet til skoler, barnehager, kollektivtransport og et bredt servicetilbud. I nærområdet finnes også lekeplasser, idrettsanlegg og gode rekreasjonsmuligheter.
Velkommen til visning!
Eiendommen ligger sentralt og barnevennlig til på Jessheim, like utenfor sentrumskjernen. Her er det kort gangavstand til dagligvarehandel, med Coop Obs kun ca. 200 meter unna, samt ca. 600 meter til Jessheim Storsenter. Området har nærhet til skoler, barnehager, kollektivtransport og et bredt servicetilbud. I nærområdet finnes også lekeplasser, idrettsanlegg og gode rekreasjonsmuligheter.
Velkommen til visning!
NB: Knappen for å vise hele beskrivelsen har kun en visuell effekt.
NB: Knappen for å vise hele beskrivelsen har kun en visuell effekt.
Salgsoppgaven beskriver vesentlig og lovpålagt informasjon om eiendommen
Se komplett salgsoppgaveNyttige lenker
Nærområdet
EIE eiendomsmegling Jessheim
Annonseinformasjon
| FINN-kode | 444918783 |
|---|---|
| Sist endret | 23. jan. 2026 10:49 |
| Referanse | 20251452 |
Annonsene kan være mangelfulle i forhold til lovpålagt opplysningsplikt. Før bindende avtale inngås oppfordres interessenter til å innhente komplett informasjon fra meglerforetaket, selger eller utleier.

































