Bildegalleri

Sentralt beliggende leilighet på Strømsø i Tollbugata 29B (digital styling)
Lettstelt og sentralt beliggende leilighet med nytt bad fra 2025. Felles terrasse. 3 minutter til toget!
Nøkkelinfo
- Boligtype
- Leilighet
- Eieform
- Andel
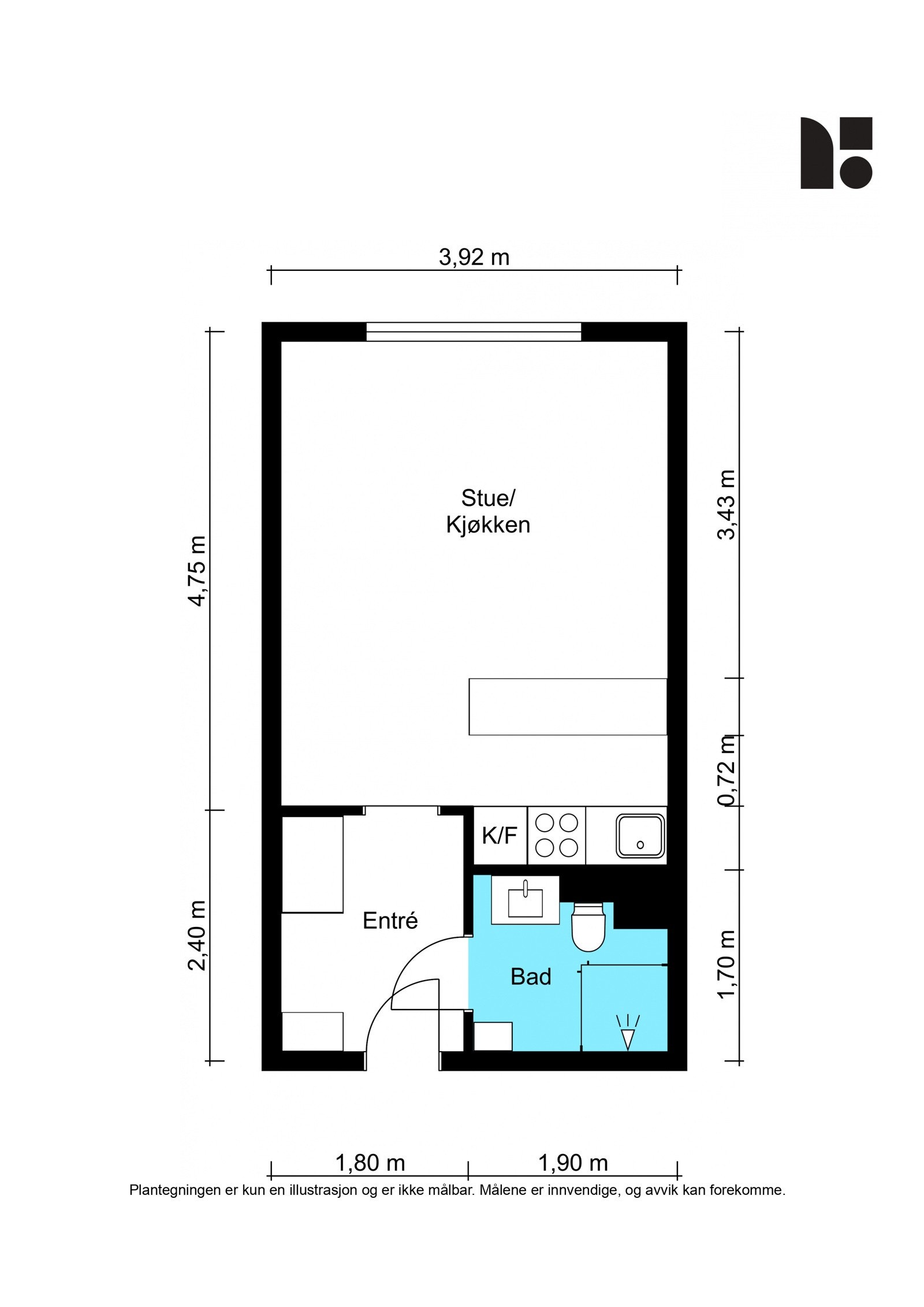
- Internt bruksareal
- 29 m² (BRA-i)
- Bruksareal
- 29 m²
- Etasje
- 4
- Byggeår
- 1976
- Rom
- 1
- Tomteareal
- 1 645 m² (eiet)
Fasiliteter
Visning
Om boligen
Leiligheten i Tollbugata 29B ligger midt i byen, med kort gangavstand til alle servicetilbud på Strømsø Torg, Drammenselven med elvepromenaden og Drammen Stasjon med hyppige togavganger mot Oslo. Området byr også på flere aktivitetstilbud, og det er flotte tur -og rekreasjonsmuligheter i marka rett ved.
Leiligheten ligger i byggets 4. etasje og består av entré, nytt bad fra 2025, og stue/kjøkken med fin utsikt mot Strømsøåsen. Det er bruksrett til kjellerbod, matbod og tilgang til felles takterrasse med gode solforhold. Det er heis i bygget.
Ingen dokumentavgift ved kjøp. Kun intern forkjøpsrett.
Dette er et flott førstegangskjøp med supersentral beliggenhet i sentrum av Drammen. Velkommen til hyggelig visning!
Salgsoppgaven beskriver vesentlig og lovpålagt informasjon om eiendommen
Se komplett salgsoppgaveNyttige lenker
Nærområdet
Proaktiv Eiendomsmegling Drammen, Lier & Holmestrand
Annonseinformasjon
| FINN-kode | 444862201 |
|---|---|
| Sist endret | 08. jan. 2026 03:15 |
| Referanse | 106250243 |
Annonsene kan være mangelfulle i forhold til lovpålagt opplysningsplikt. Før bindende avtale inngås oppfordres interessenter til å innhente komplett informasjon fra meglerforetaket, selger eller utleier.
















