Bildegalleri

Velkommen til Priorveien 11, en lys og delikat halvpart av horisontaldelt tomannsbolig med beliggenhet i en rolig stikkvei, helt skjermet for trafikk.
Smestad
Flott halvpart av tomannsbolig, rolig stikkvei, barnevennlig, terrasseplatting/hage, gode solforhold, 2 p-plasser, peis.
Prisantydning13 800 000 kr
Nøkkelinfo
- Boligtype
- Tomannsbolig
- Eieform
- Eier (Selveier)
- Soverom
- 3
- Internt bruksareal
- 118 m² (BRA-i)
- Bruksareal
- 121 m²
- Eksternt bruksareal
- 3 m² (BRA-e)
- Balkong/Terrasse
- 42 m² (TBA)
- Etasje
- 2
- Byggeår
- 1924
- Energimerking
- F - Oransje
- Rom
- 5
- Tomteareal
- 1 745 m² (eiet)
Fasiliteter
Barnevennlig
Balkong/Terrasse
Garasje/P-plass
Offentlig vann/kloakk
Parkett
Peis/Ildsted
Turterreng
Sentralt
Bredbåndstilknytning
Moderne
Om boligen
Velkommen til Priorveien 11, en lys og delikat halvpart av horisontaldelt tomannsbolig med beliggenhet i en rolig stikkvei, helt skjermet for trafikk.
Boligen er over to plan, 134 kvm gulvareal, med entrè fra bakkeplan og egen inngangsdør.
Frodig hage, privat terrasseplatting på 33 kvm. samt terrasse med gode solforhold.
Boligen oppleves luftig med en familievennlig planløsning.
Entré/gang fra bakkeplan med stor garderobe.
I 2. etg. kommer man inn i en lys stue med peis, store vindusflater og utgang til solrik balkong. Pent og romslig kjøkken med spiseplass, vaskerom, 2 soverom og bad.
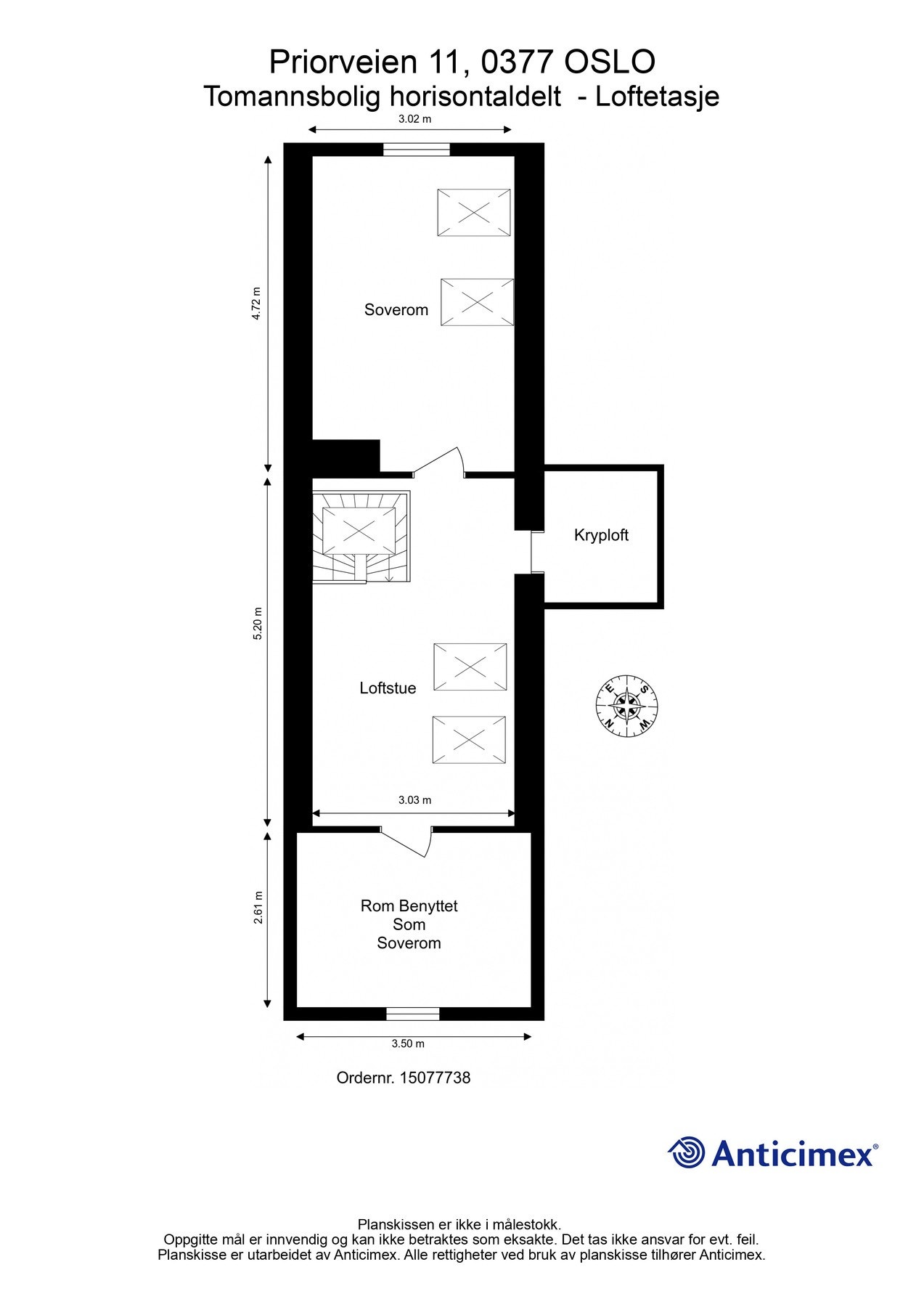
På loftet er det en hyggelig loftsstue/lekerom, 1 soverom og 1 disp. rom (brukes i dag som soverom).
40 kvm gulvareal på loft.
Boligen har en gjennomgående god standard hvor det er gjort diverse oppgraderinger med blant annet balansert ventilasjon og ny platting ute i 2024 og ny terrasse i 2022.
Pent opparbeidet gårdstun, og en felles lekeplass med sandkasse og huskestativ.
2 p-plasser medfølger.
Boligen er over to plan, 134 kvm gulvareal, med entrè fra bakkeplan og egen inngangsdør.
Frodig hage, privat terrasseplatting på 33 kvm. samt terrasse med gode solforhold.
Boligen oppleves luftig med en familievennlig planløsning.
Entré/gang fra bakkeplan med stor garderobe.
I 2. etg. kommer man inn i en lys stue med peis, store vindusflater og utgang til solrik balkong. Pent og romslig kjøkken med spiseplass, vaskerom, 2 soverom og bad.
På loftet er det en hyggelig loftsstue/lekerom, 1 soverom og 1 disp. rom (brukes i dag som soverom).
40 kvm gulvareal på loft.
Boligen har en gjennomgående god standard hvor det er gjort diverse oppgraderinger med blant annet balansert ventilasjon og ny platting ute i 2024 og ny terrasse i 2022.
Pent opparbeidet gårdstun, og en felles lekeplass med sandkasse og huskestativ.
2 p-plasser medfølger.
NB: Knappen for å vise hele beskrivelsen har kun en visuell effekt.
NB: Knappen for å vise hele beskrivelsen har kun en visuell effekt.
Salgsoppgaven beskriver vesentlig og lovpålagt informasjon om eiendommen
Se komplett salgsoppgaveNærområdet
ASK Oslo Vest
Velkommen hjem
Annonseinformasjon
| FINN-kode | 444825771 |
|---|---|
| Sist endret | 20. jan. 2026 05:00 |
| Referanse | 40-25-1007 |
Annonsene kan være mangelfulle i forhold til lovpålagt opplysningsplikt. Før bindende avtale inngås oppfordres interessenter til å innhente komplett informasjon fra meglerforetaket, selger eller utleier.


























































