Bildegalleri

Kristine Knudsen ved PrivatMegleren har gleden av å presentere Vardøveien 7A!
Fuglenes - Pen og innholdsrik andelsleilighet i rekke | 3 soverom | Flott utsikt | Kjøkken og bad fra 2019
Prisantydning3 390 000 kr
Nøkkelinfo
- Boligtype
- Rekkehus
- Eieform
- Andel
- Soverom
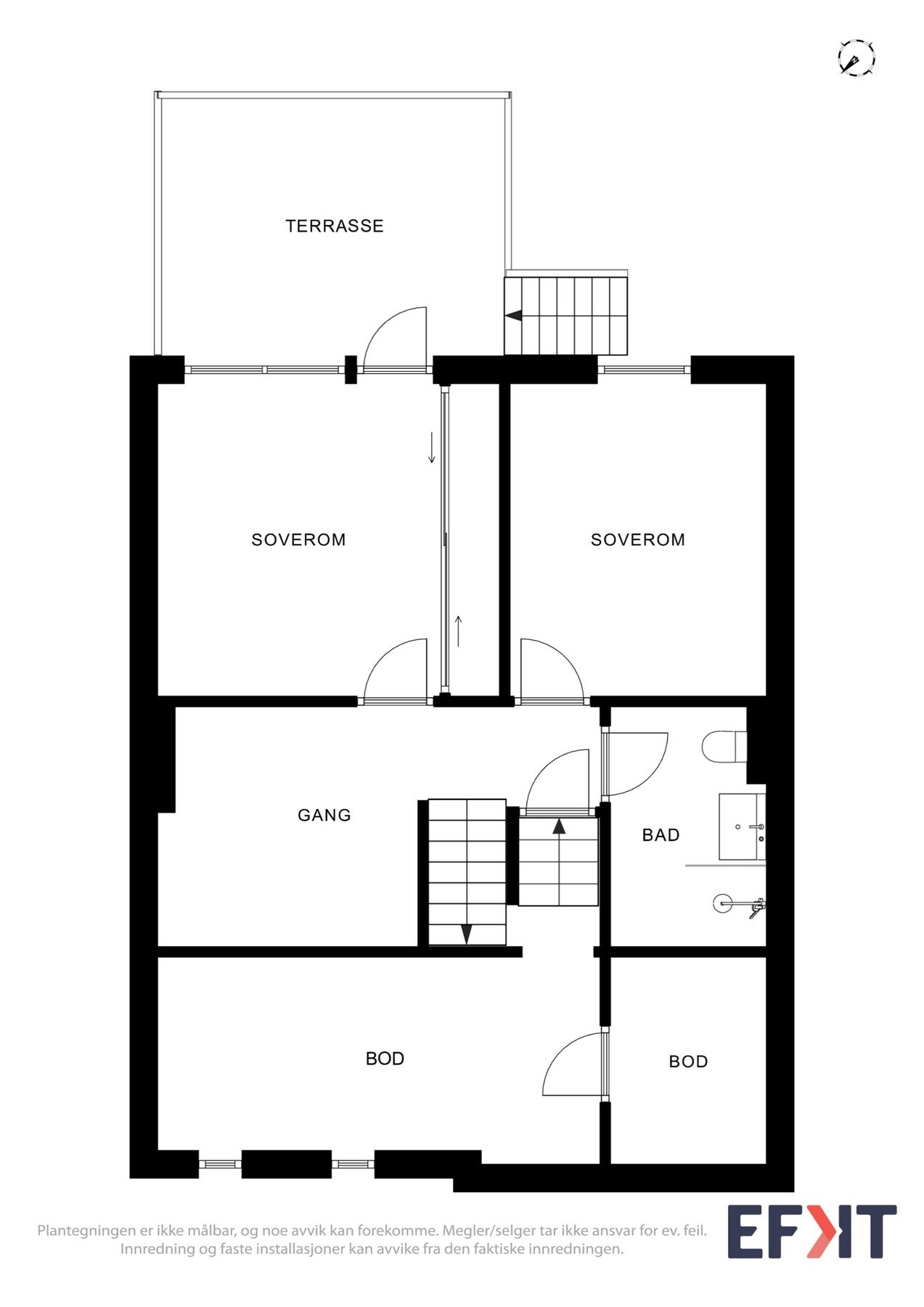
- 3
- Internt bruksareal
- 110 m² (BRA-i)
- Bruksareal
- 112 m²
- Eksternt bruksareal
- 2 m² (BRA-e)
- Balkong/Terrasse
- 15 m² (TBA)
- Byggeår
- 1968
- Energimerking
- G - Rød
- Rom
- 4
- Tomteareal
- 2 375 m²
Visning
tirsdag, 13. januar
17:00 – 18:00
Velkommen til visning!
Alle våre visninger har påmelding. På denne måten sikrer vi at megler har god oversikt og tid til å imøtekomme alle interessenter på beste måte. Dette er veldig verdifullt for boligkjøpere og for oss. Det er enkelt å melde seg på, og du kan like enkelt melde deg av. Kontakt også gjerne megler i forkant av visning dersom du har spørsmål.
Om boligen
Kristine Knudsen v/ PrivatMegleren har gleden av å presentere Vardøveien 7A - en pen og innbydende leilighet på Fuglenes!
Her får du en flott andelsleilighet i rekke, beliggende i et barnevennlig og tilbaketrukket nabolag. Planløsningen er fordelt på 4 halvplan som inkluderer bl.a. 3 soverom, kjøkken og bad fra 2019, stue med flott utsikt, vaskerom, inn- og utvendig bodplass, og en flott terrasse. Øvrig i nærområdet finner du både barneskole, dagligvarebutikk, bussforbindelse og flotte turområder.
Kort fortalt:
. 3 soverom.
. Gjennomgående pen og tidløs standard.
. Stue og spisestue med flott utsikt.
. Kjøkken og bad fra 2019.
. Varmepumpe.
. Vaskerom, innvendig og utvendig bodplass.
. God beliggenhet med nærhet til det meste du trenger.
Velkommen til en hyggelig visning!
Her får du en flott andelsleilighet i rekke, beliggende i et barnevennlig og tilbaketrukket nabolag. Planløsningen er fordelt på 4 halvplan som inkluderer bl.a. 3 soverom, kjøkken og bad fra 2019, stue med flott utsikt, vaskerom, inn- og utvendig bodplass, og en flott terrasse. Øvrig i nærområdet finner du både barneskole, dagligvarebutikk, bussforbindelse og flotte turområder.
Kort fortalt:
. 3 soverom.
. Gjennomgående pen og tidløs standard.
. Stue og spisestue med flott utsikt.
. Kjøkken og bad fra 2019.
. Varmepumpe.
. Vaskerom, innvendig og utvendig bodplass.
. God beliggenhet med nærhet til det meste du trenger.
Velkommen til en hyggelig visning!
NB: Knappen for å vise hele beskrivelsen har kun en visuell effekt.
NB: Knappen for å vise hele beskrivelsen har kun en visuell effekt.
Salgsoppgaven beskriver vesentlig og lovpålagt informasjon om eiendommen
Se komplett salgsoppgaveNyttige lenker
Nærområdet

PrivatMegleren Hammerfest
Kun det beste på dine vegne
Annonseinformasjon
| FINN-kode | 444821675 |
|---|---|
| Sist endret | 06. jan. 2026 15:41 |
| Referanse | 124251082 |
Annonsene kan være mangelfulle i forhold til lovpålagt opplysningsplikt. Før bindende avtale inngås oppfordres interessenter til å innhente komplett informasjon fra meglerforetaket, selger eller utleier.


























