Bildegalleri

DNB Eiendom ved Johanna Wenngren har gleden av å presentere Oscar Christensens veg 4B - en nydelig og innflyttingsklar familiebolig med gjennomtenkte løsninger og en lun atmosfære.
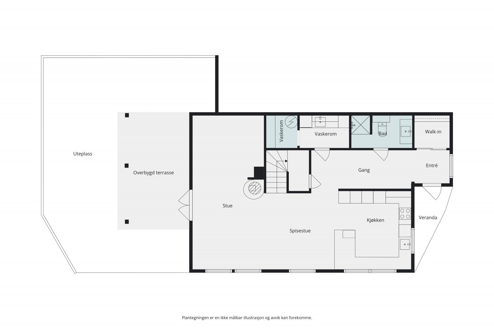
Nydelig familiebolig - vesentlig oppgradert | Dobbeltgarasje med elbil-lader og hems, samt enkelt garasje | Solrikt! |
Prisantydning6 290 000 kr
Nøkkelinfo
- Boligtype
- Enebolig
- Eieform
- Eier (Selveier)
- Soverom
- 3
- Internt bruksareal
- 133 m² (BRA-i)
- Bruksareal
- 194 m²
- Eksternt bruksareal
- 61 m² (BRA-e)
- Balkong/Terrasse
- 73 m² (TBA)
- Etasje
- 2
- Byggeår
- 1998
- Energimerking
- C - Lysegrønn
- Rom
- 5
- Tomteareal
- 542 m² (eiet)
Fasiliteter
Aircondition
Balkong/Terrasse
Barnevennlig
Bredbåndstilknytning
Garasje/P-plass
Hage
Kjæledyr tillatt
Kabel-TV
Offentlig vann/kloakk
Peis/Ildsted
Rolig
Turterreng
Lademulighet
Visning
mandag, 12. januar
18:00 – 19:00
Velkommen til visning! Meld deg på ved å trykke "visningspåmelding" i våre boligannonser. Visning med megler til stede vil ikke bli avholdt uten påmeldinger. Ta gjerne kontakt med megler i forkant av visningen om du har spørsmål.
VisningspåmeldingOm boligen
Drømmer du om en innbydende og gjennomført familiebolig i et attraktivt og barnevennlig område? Denne eiendommen byr på en perfekt kombinasjon av beliggenhet, komfort og kvalitet. Med kun få minutters gange til populære Algarheim skole og flerbrukshall begge kjent for sitt gode rykte ligger alt til rette for en enkel og trygg hverdag.
Boligen er vesentlig påkostet de senere år med moderne kjøkken og to stilrene bad. I stuen finner du både varmepumpe og peisovn som gir lun varme året rundt. Uteområdene er nydelige med overbygd terrasse, gressplen og sol fra morgen til kveld. Dobbeltgarasje med elbil-lader og innredet hems gir rikelig med plass, i tillegg til ekstra lagring i enkel garasje godkjent som carport - perfekt til lagring.
Her er det bare å flytte rett inn og begynne å bo!
Boligen er vesentlig påkostet de senere år med moderne kjøkken og to stilrene bad. I stuen finner du både varmepumpe og peisovn som gir lun varme året rundt. Uteområdene er nydelige med overbygd terrasse, gressplen og sol fra morgen til kveld. Dobbeltgarasje med elbil-lader og innredet hems gir rikelig med plass, i tillegg til ekstra lagring i enkel garasje godkjent som carport - perfekt til lagring.
Her er det bare å flytte rett inn og begynne å bo!
NB: Knappen for å vise hele beskrivelsen har kun en visuell effekt.
NB: Knappen for å vise hele beskrivelsen har kun en visuell effekt.
Salgsoppgaven beskriver vesentlig og lovpålagt informasjon om eiendommen
Se komplett salgsoppgaveNyttige lenker
Nærområdet
DNB Eiendom AS
Fra hjem til hjem
Annonseinformasjon
| FINN-kode | 444818787 |
|---|---|
| Sist endret | 07. jan. 2026 14:03 |
| Referanse | 302250384 |
Annonsene kan være mangelfulle i forhold til lovpålagt opplysningsplikt. Før bindende avtale inngås oppfordres interessenter til å innhente komplett informasjon fra meglerforetaket, selger eller utleier.

































































