Bildegalleri

Faleide - Oppussingsklar enebolig med fjord- og fjellutsikt, 10 min fra Stryn
Prisantydning1 990 000 kr
Nøkkelinfo
- Boligtype
- Enebolig
- Eieform
- Eier (Selveier)
- Soverom
- 4
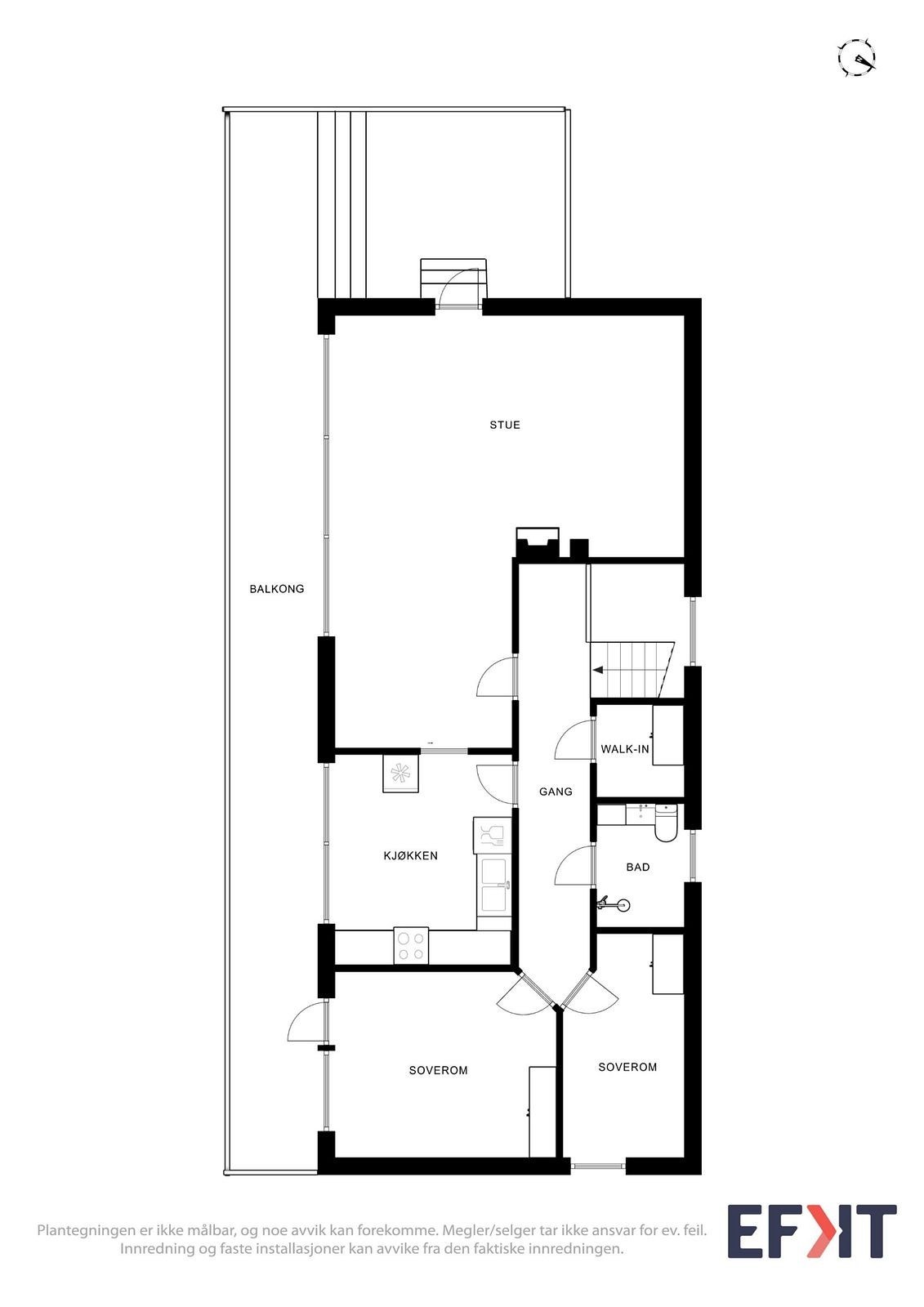
- Internt bruksareal
- 142 m² (BRA-i)
- Bruksareal
- 164 m²
- Eksternt bruksareal
- 22 m² (BRA-e)
- Balkong/Terrasse
- 54 m² (TBA)
- Etasje
- 2
- Byggeår
- 1980
- Energimerking
- G - Rød
- Rom
- 5
- Tomteareal
- 1 113 m² (eiet)
Om boligen
Denne eiendommen ligger høyt og fritt i Postvegen på Faleide, omgitt av vakker vestlandsnatur med utsikt mot fjord og fjell. Her bor du landlig og fredelig, med gode solforhold og rikelig med plass rundt deg. Boligen går over to etasjer og byr på romslige oppholdsarealer, flere soverom og fleksible romløsninger som gir gode muligheter for tilpasning etter behov. Eiendommen egner seg godt for deg som ønsker å skape ditt eget uttrykk gjennom oppussing, samtidig som du får en flott beliggenhet med nærhet til både natur og servicetilbud. Stryn sentrum ligger kun ca. 10 minutter unna med bil, og gir enkel tilgang til butikker, skoler, barnehager og fritidstilbud.
NB: Knappen for å vise hele beskrivelsen har kun en visuell effekt.
NB: Knappen for å vise hele beskrivelsen har kun en visuell effekt.
Salgsoppgaven beskriver vesentlig og lovpålagt informasjon om eiendommen
Se komplett salgsoppgaveNyttige lenker
Nærområdet
Eiendomsmegler Norge Nordfjord
Det viktigste stedet i Norge er der du bor
Annonseinformasjon
| FINN-kode | 444815593 |
|---|---|
| Sist endret | 07. jan. 2026 18:27 |
| Referanse | 42250040 |
Annonsene kan være mangelfulle i forhold til lovpålagt opplysningsplikt. Før bindende avtale inngås oppfordres interessenter til å innhente komplett informasjon fra meglerforetaket, selger eller utleier.



































