Bildegalleri

Velkommen til Fjellvegen 13!
Nyoppført endeleilighet med utsikt! Vestvendt balkong ca. 8 kvm - Vannbåren varme - Garasjeplass m/lader -Selskapslokale
Prisantydning5 200 000 kr
Nøkkelinfo
- Boligtype
- Leilighet
- Eieform
- Eier (Selveier)
- Soverom
- 2
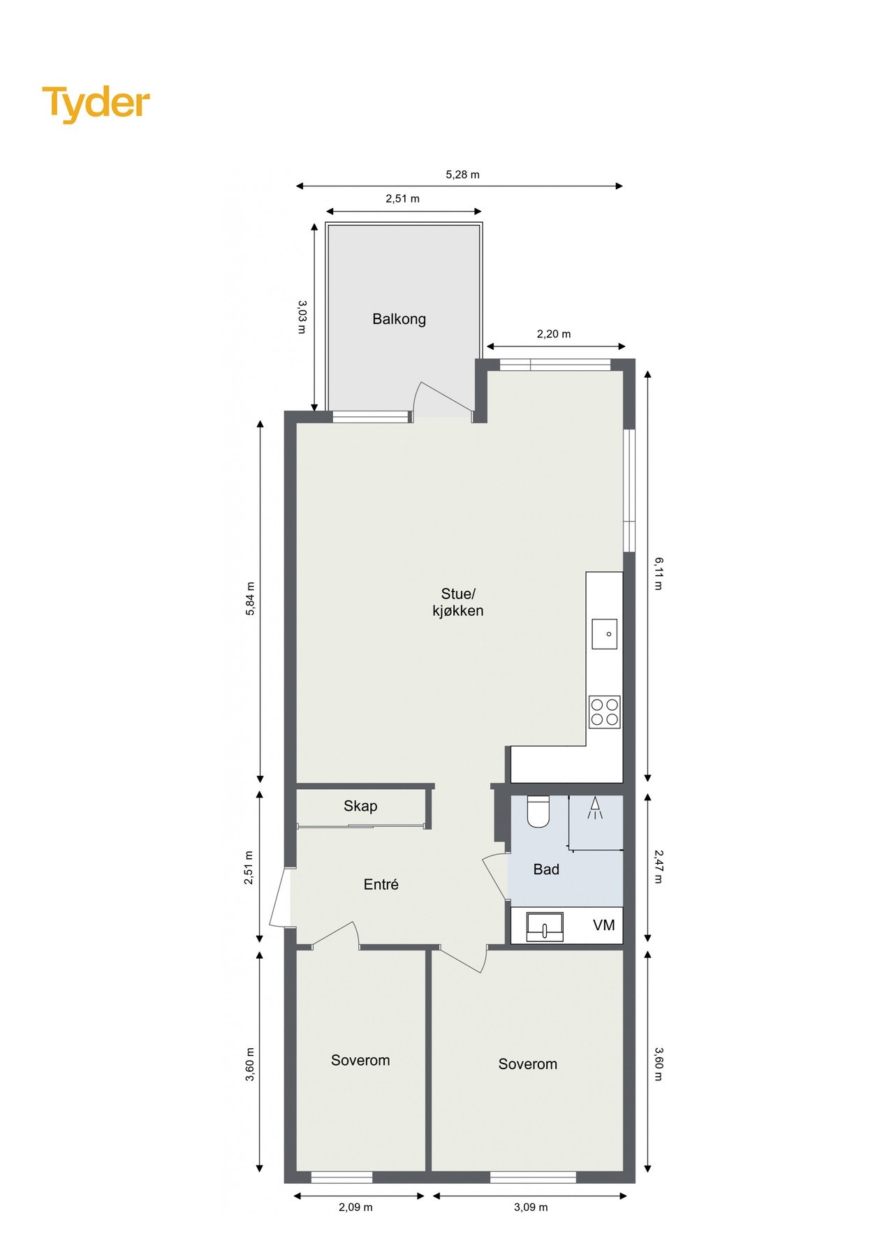
- Internt bruksareal
- 66 m² (BRA-i)
- Bruksareal
- 71 m²
- Eksternt bruksareal
- 5 m² (BRA-e)
- Balkong/Terrasse
- 8 m² (TBA)
- Etasje
- 4
- Byggeår
- 2025
- Energimerking
- C - Mørkegrønn
- Tomteareal
- 4 177 m² (eiet)
Fasiliteter
Balkong/Terrasse
Garasje/P-plass
Kabel-TV
Heis
Offentlig vann/kloakk
Parkett
Utsikt
Vaktmester-/vektertjeneste
Sentralt
Bredbåndstilknytning
Moderne
Rolig
Lademulighet
Balansert ventilasjon
Visning
torsdag, 15. januar
17:00 – 17:45
Velkommen til visning!
Alle våre visninger har påmelding. På denne måten sikrer vi at megler har god oversikt og tid til å imøtekomme alle interessenter på beste måte. Dette er veldig verdifullt for boligkjøpere og for oss. Det er enkelt å melde seg på, og du kan like enkelt melde deg av. Kontakt også gjerne megler i forkant av visning dersom du har spørsmål.
Om boligen
Nyoppført og moderne 3-roms endeleilighet beliggende på Skogmo Park. Leiligheten ligger høyt i blokka med gode solforhold og utsikt.
Inneholder bl.a. en stor stue og vestvendt balkong på ca. 8 kvm, moderne kjøkken m/integrerte hvitevarer, flislagt bad, samt to romslige soverom.
Kort fortalt:
- Blitt gjort tilvalg for ca 130 000,-
- HTH kjøkken påkostet med vinkjøler, ekstra høyskap med stekeovn og store kjøkkenskuffer.
- Bad oppgradert med Vikingbad speil og utvidet innredning (marmor benk)
- Balansert ventilasjon
- Lys eikeparkett
- Vannbåren varme i entrè, bad, kjøkken og stue
- Parkering med elbil lader
- Bod på ca 5 kvm i kjeller
- Attraktiv og sentral beliggenhet
- Felles gjesteleilighet / selskapslokale og felles drivhus
- Felles sykkelparkering
Inneholder bl.a. en stor stue og vestvendt balkong på ca. 8 kvm, moderne kjøkken m/integrerte hvitevarer, flislagt bad, samt to romslige soverom.
Kort fortalt:
- Blitt gjort tilvalg for ca 130 000,-
- HTH kjøkken påkostet med vinkjøler, ekstra høyskap med stekeovn og store kjøkkenskuffer.
- Bad oppgradert med Vikingbad speil og utvidet innredning (marmor benk)
- Balansert ventilasjon
- Lys eikeparkett
- Vannbåren varme i entrè, bad, kjøkken og stue
- Parkering med elbil lader
- Bod på ca 5 kvm i kjeller
- Attraktiv og sentral beliggenhet
- Felles gjesteleilighet / selskapslokale og felles drivhus
- Felles sykkelparkering
NB: Knappen for å vise hele beskrivelsen har kun en visuell effekt.
NB: Knappen for å vise hele beskrivelsen har kun en visuell effekt.
Salgsoppgaven beskriver vesentlig og lovpålagt informasjon om eiendommen
Se komplett salgsoppgaveNyttige lenker
Nærområdet

PrivatMegleren Brustad & Partnere
Kun det beste på dine vegne
Annonseinformasjon
| FINN-kode | 444795902 |
|---|---|
| Sist endret | 07. jan. 2026 09:02 |
| Referanse | 121251013 |
Annonsene kan være mangelfulle i forhold til lovpålagt opplysningsplikt. Før bindende avtale inngås oppfordres interessenter til å innhente komplett informasjon fra meglerforetaket, selger eller utleier.






























