Bildegalleri

Sentrale Ås
Ny arkitekttegnet bolig m/generøs takhøyde i stue/kjøkken. 3(4)sov, 2stuer & 2 bad. Vannbåren gulvvarme. Dobbelgarasje
Prisantydning10 260 000 kr
Nøkkelinfo
- Boligtype
- Enebolig
- Eieform
- Eier (Selveier)
- Soverom
- 4
- Internt bruksareal
- 160 m² (BRA-i)
- Bruksareal
- 197 m²
- Eksternt bruksareal
- 36 m² (BRA-e)
- Balkong/Terrasse
- 36 m² (TBA)
- Byggeår
- 2025
- Energimerking
- A - Rød
- Rom
- 5
- Tomteareal
- 734 m² (eiet)
Fasiliteter
Balansert ventilasjon
Balkong/Terrasse
Barnevennlig
Bredbåndstilknytning
Garasje/P-plass
Moderne
Offentlig vann/kloakk
Rolig
Sentralt
Utsikt
Turterreng
Om boligen
Velkommen til Solveien 16B - en splitter ny og ubebodd arkitekttegnet bolig med generøs takhøyde, integrert dobbelgarasje og vannbåren gulvvarme!
Boligen ble ferdigstilt mot slutten av 2025 og er nå klar for ny eier.
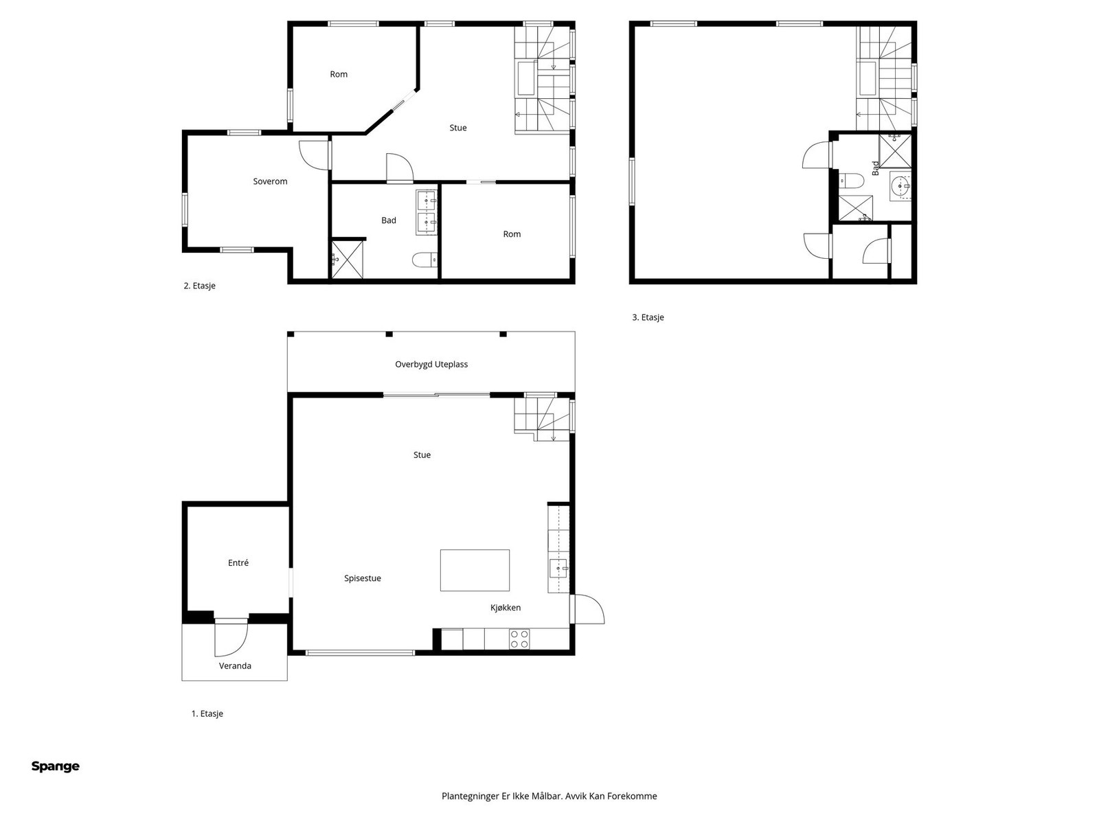
Solveien 16B går over tre etasjer og har god planløsning. 1. etasje med sin generøse takhøyde og åpen stue- og kjøkkenløsning gir et herlig førsteinntrykk av boligen. Videre inneholder 2. etasje tre soverom, bad/vaskerom og en romslig gang som kan kombineres med et hjemmekontor. Toppetasjen gir boligen flerbruksmuligheter der rommet kan innredes etter eget ønsket - rommet er åpent, romslig og inneholder eget bad.
Videre bor du med 10 minutters gangavstand til togstasjon & sentrum, samt en bussholdeplass like ved. Skoler i alle trinn er også innen 3 til 10 min gangavstand
Boligen ble ferdigstilt mot slutten av 2025 og er nå klar for ny eier.
Solveien 16B går over tre etasjer og har god planløsning. 1. etasje med sin generøse takhøyde og åpen stue- og kjøkkenløsning gir et herlig førsteinntrykk av boligen. Videre inneholder 2. etasje tre soverom, bad/vaskerom og en romslig gang som kan kombineres med et hjemmekontor. Toppetasjen gir boligen flerbruksmuligheter der rommet kan innredes etter eget ønsket - rommet er åpent, romslig og inneholder eget bad.
Videre bor du med 10 minutters gangavstand til togstasjon & sentrum, samt en bussholdeplass like ved. Skoler i alle trinn er også innen 3 til 10 min gangavstand
NB: Knappen for å vise hele beskrivelsen har kun en visuell effekt.
NB: Knappen for å vise hele beskrivelsen har kun en visuell effekt.
Salgsoppgaven beskriver vesentlig og lovpålagt informasjon om eiendommen
Se komplett salgsoppgaveNyttige lenker
Nærområdet
PrivatMegleren Ski-Ås
Kun det beste på dine vegne
Annonsene kan være mangelfulle i forhold til lovpålagt opplysningsplikt. Før bindende avtale inngås oppfordres interessenter til å innhente komplett informasjon fra meglerforetaket, selger eller utleier.
















































