Bildegalleri

Proaktiv v/ Markus Alm Thoen ønsker velkommen til Øvre Torggate 12!
Stor og moderne 2-roms topp- og endeleilighet med innglasset balkong og fast garasjeplass. Sentralt på Bragernes!
Nøkkelinfo
- Boligtype
- Leilighet
- Eieform
- Andel
- Soverom
- 1
- Internt bruksareal
- 69 m² (BRA-i)
- Bruksareal
- 85 m²
- Eksternt bruksareal
- 5 m² (BRA-e)
- Innglasset balkong
- 11 m² (BRA-b)
- Etasje
- 3
- Byggeår
- 1987
- Energimerking
- F - Rød
- Rom
- 2
- Tomteareal
- 2 131 m² (eiet)
Fasiliteter
Om boligen
Urban og sentralt beliggende 2-roms på Bragernes i Øvre Torggate 12. Et perfekt sted for de som ønsker å bo sentralt i byen med gangavstand til alle fasiliteter. Rett utenfor går bussen, men det medfølger også fast garasjeplass med mulighet for tilkobling av lader.
På hvert hjørne finner du sosiale møteplasser, dagligvare eller spennende butikker, og på en solrik dag kan ettermiddagen nytes på egen sydvestvendt balkong eller i en av de mange parkene i nærområdet. God intern beliggenhet i bygget - på enden og helt på toppen i 4. etasje.
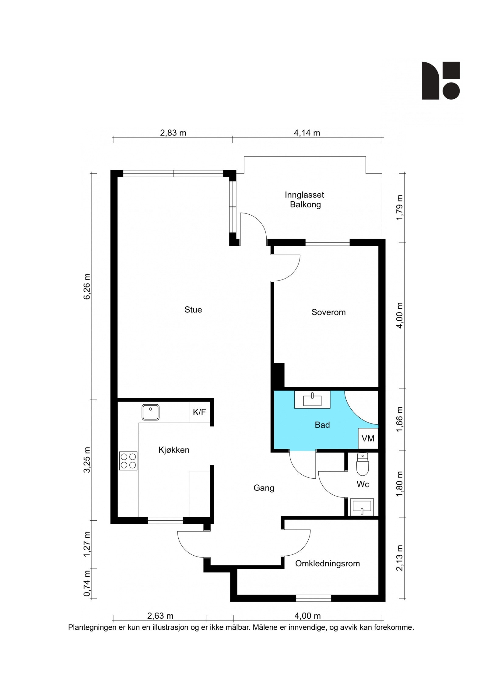
Leiligheten har en god planløsning med entré, omkledningsrom, bad, toalettrom, soverom, separat kjøkken og stue. Innglasset balkong på ca. 11 kvm utenfor stuen med svært gode solforhold og helt uten innsyn. Én ekstern bod medfølger også.
Salgsoppgaven beskriver vesentlig og lovpålagt informasjon om eiendommen
Se komplett salgsoppgaveNyttige lenker
Nærområdet
Proaktiv Eiendomsmegling Drammen, Lier & Holmestrand
Annonseinformasjon
| FINN-kode | 444704862 |
|---|---|
| Sist endret | 29. jan. 2026 03:21 |
| Referanse | 106250239 |
Annonsene kan være mangelfulle i forhold til lovpålagt opplysningsplikt. Før bindende avtale inngås oppfordres interessenter til å innhente komplett informasjon fra meglerforetaket, selger eller utleier.



























