Bildegalleri

Velkommen til Karl Staaffs Vei 7!
Sjarmerende 3-roms med balkong. Lekre fargevalg, kjøkken fra 2024 og gjennomgående lys. VV/fyring inkludert.
Prisantydning4 400 000 kr
Nøkkelinfo
- Boligtype
- Leilighet
- Eieform
- Andel
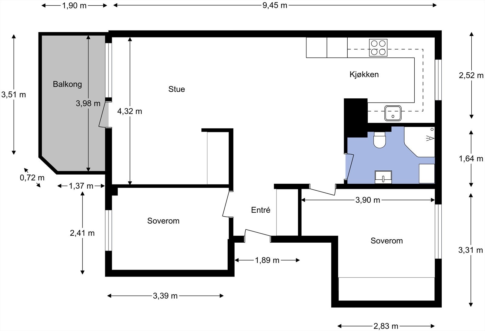
- Soverom
- 2
- Internt bruksareal
- 64 m² (BRA-i)
- Bruksareal
- 70 m²
- Eksternt bruksareal
- 6 m² (BRA-e)
- Balkong/Terrasse
- 7 m² (TBA)
- Etasje
- 1
- Byggeår
- 1955
- Energimerking
- G - Gul
- Rom
- 3
- Tomteareal
- 54 508 m²
Fasiliteter
Balkong/Terrasse
Barnevennlig
Bredbåndstilknytning
Garasje/P-plass
Kjæledyr tillatt
Kabel-TV
Parkett
Rolig
Sentralt
Vaktmester-/vektertjeneste
Visning
søndag, 11. januar
12:30 – 13:30
mandag, 12. januar
16:30 – 17:30
Visningen har obligatorisk påmelding.
Kravet om påmelding har vi for å kunne gi deg og andre visningsdeltakere en best mulig opplevelse og service knyttet til gjennomføring av visningen. Velkommen!
VisningspåmeldingOm boligen
Velkommen til denne sjarmerende boligen midt i hjertet av Ulven Borettslag. Et fantastisk boområde for deg om ønsker det tilbaketrukket, men trivelig. Området er kjent for sitt gode samhold, livsstil og vilkår for barneoppvekst.
Kort innpå:
- Lekkert kjøkken fra 2023/2024 med hvitevarer fra Elektrolux
- Slipte gulv og overflatebehandlet med maling i 2023
- Direkte adkomst til romslig balkong med flotte solforhold
- Tidløst baderom oppusset i regi av borettslaget, opplegg for vaskemaskin
- Gjennomgående lys via store vindu gir rikelig med dagslys
- Veldrevet borettslag
- Varmtvann og fyring inkludert
Velkommen til visning!
Kort innpå:
- Lekkert kjøkken fra 2023/2024 med hvitevarer fra Elektrolux
- Slipte gulv og overflatebehandlet med maling i 2023
- Direkte adkomst til romslig balkong med flotte solforhold
- Tidløst baderom oppusset i regi av borettslaget, opplegg for vaskemaskin
- Gjennomgående lys via store vindu gir rikelig med dagslys
- Veldrevet borettslag
- Varmtvann og fyring inkludert
Velkommen til visning!
NB: Knappen for å vise hele beskrivelsen har kun en visuell effekt.
NB: Knappen for å vise hele beskrivelsen har kun en visuell effekt.
Salgsoppgaven beskriver vesentlig og lovpålagt informasjon om eiendommen
Se komplett salgsoppgaveNærområdet
Sem & Johnsen
Boliger utenom det vanlige
Annonseinformasjon
| FINN-kode | 444676326 |
|---|---|
| Sist endret | 07. jan. 2026 08:59 |
| Referanse | 20-25-2123 |
Annonsene kan være mangelfulle i forhold til lovpålagt opplysningsplikt. Før bindende avtale inngås oppfordres interessenter til å innhente komplett informasjon fra meglerforetaket, selger eller utleier.





































