Bildegalleri

Velkommen til Sjømannsvegen 25, boligen selges av Krogsveen v/Geir Kristian Ødegård Foto: Diakrit v/Krisztian Sere)
"Fri Sikt" / Volsdalsberga
Lys og tiltalende 3-roms leilighet | Balkong| Utsikt | Garasjeplass | Heis | Vannbåren varme
Prisantydning4 700 000 kr
Nøkkelinfo
- Boligtype
- Leilighet
- Eieform
- Eier (Selveier)
- Soverom
- 2
- Internt bruksareal
- 75 m² (BRA-i)
- Bruksareal
- 80 m²
- Eksternt bruksareal
- 5 m² (BRA-e)
- Balkong/Terrasse
- 16 m² (TBA)
- Etasje
- 2
- Byggeår
- 2022
- Energimerking
- B - Mørkegrønn
- Rom
- 3
- Tomteareal
- 3 023 m² (eiet)
Visning
onsdag, 14. januar
17:30 – 18:30
For å delta på visning, ber vi om at du melder deg på. Da sikrer vi at du får nødvendig informasjon og at det er satt av tilstrekkelig med tid.
Husk å lese salgsoppgaven før visningen, så du stiller forberedt. NB. Visning utgår dersom det ikke er noen påmeldte.
(Ønsker du kun å bli holdt orientert, kan du fra eiendommens hjemmeside få varsel om solgtpris, eller kontakte megler)
VisningspåmeldingOm boligen
Krogsveen Sunnmøre v/Eiendomsmegler Geir Kristian Ødegård har gleden av å presentere en lys og tiltalende 3-roms eierleilighet beliggende i Boligkomplekset "Fri Sikt" ligger sjønært til i rolige omgivelser på Volsdalsberga.
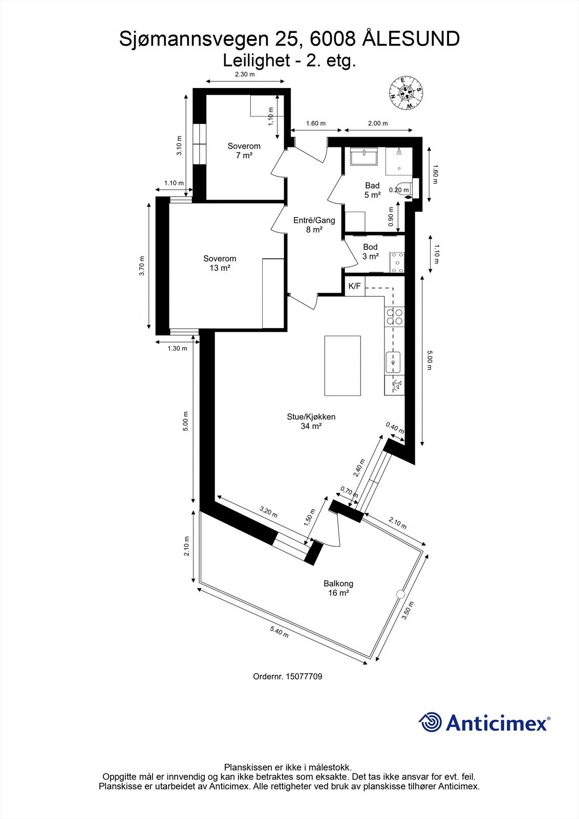
Leiligheten ligger i 2. etasje og inneholder: Entré, bad, stue/kjøkken, 2 soverom, bod. I tillegg balkong på 16 kvm.
Parkeringsplass i felles garasjeanlegg.
I kort avstand fra eiendommen ligger et flott turområde med badeplasser, parkområde m.m. I tillegg er det relativt kort veg til nettverk av turstier på og ved Byfjellet Aksla med utsiktspunkt og friidrettsanlegg. Nærmeste dagligvarebutikk ligger på Nørve, omtrent 1 km fra eiendommen og inn til Bysentrum spaserer du enkelt til på ca 20 minutter
Leiligheten ligger i 2. etasje og inneholder: Entré, bad, stue/kjøkken, 2 soverom, bod. I tillegg balkong på 16 kvm.
Parkeringsplass i felles garasjeanlegg.
I kort avstand fra eiendommen ligger et flott turområde med badeplasser, parkområde m.m. I tillegg er det relativt kort veg til nettverk av turstier på og ved Byfjellet Aksla med utsiktspunkt og friidrettsanlegg. Nærmeste dagligvarebutikk ligger på Nørve, omtrent 1 km fra eiendommen og inn til Bysentrum spaserer du enkelt til på ca 20 minutter
NB: Knappen for å vise hele beskrivelsen har kun en visuell effekt.
NB: Knappen for å vise hele beskrivelsen har kun en visuell effekt.
Salgsoppgaven beskriver vesentlig og lovpålagt informasjon om eiendommen
Se komplett salgsoppgaveNyttige lenker
Nærområdet
Krogsveen Ålesund
Velkommen til en enklere boligreise.
Annonseinformasjon
| FINN-kode | 444590709 |
|---|---|
| Sist endret | 05. jan. 2026 08:39 |
| Referanse | KR76.25309 |
Annonsene kan være mangelfulle i forhold til lovpålagt opplysningsplikt. Før bindende avtale inngås oppfordres interessenter til å innhente komplett informasjon fra meglerforetaket, selger eller utleier.






























