Bildegalleri

Nordvik Tønsberg v/Caroline Wivestad har gleden av å ønske velkommen til Dr. Lorentzens vei 3! Foto: A7 Media AS.
Sentral beliggenhet på Solvang!
Solvang- Lekker, særegen leilighet i 2. etg | Loftstue | Utsikt | 1 sov og kontor | Carport | Solrik terrasse på 22 kvm
Prisantydning4 690 000 kr
Nøkkelinfo
- Boligtype
- Leilighet
- Eieform
- Eier (Selveier)
- Soverom
- 1
- Internt bruksareal
- 67 m² (BRA-i)
- Bruksareal
- 81 m²
- Eksternt bruksareal
- 14 m² (BRA-e)
- Balkong/Terrasse
- 22 m² (TBA)
- Etasje
- 2
- Byggeår
- 1949
- Energimerking
- D - Oransje
- Rom
- 2
- Tomteareal
- 907 m² (eiet)
Fasiliteter
Balkong/Terrasse
Barnevennlig
Bredbåndstilknytning
Garasje/P-plass
Hage
Kjæledyr tillatt
Kabel-TV
Offentlig vann/kloakk
Rolig
Sentralt
Om boligen
Velkommen til Dr. Lorentzens vei 3!
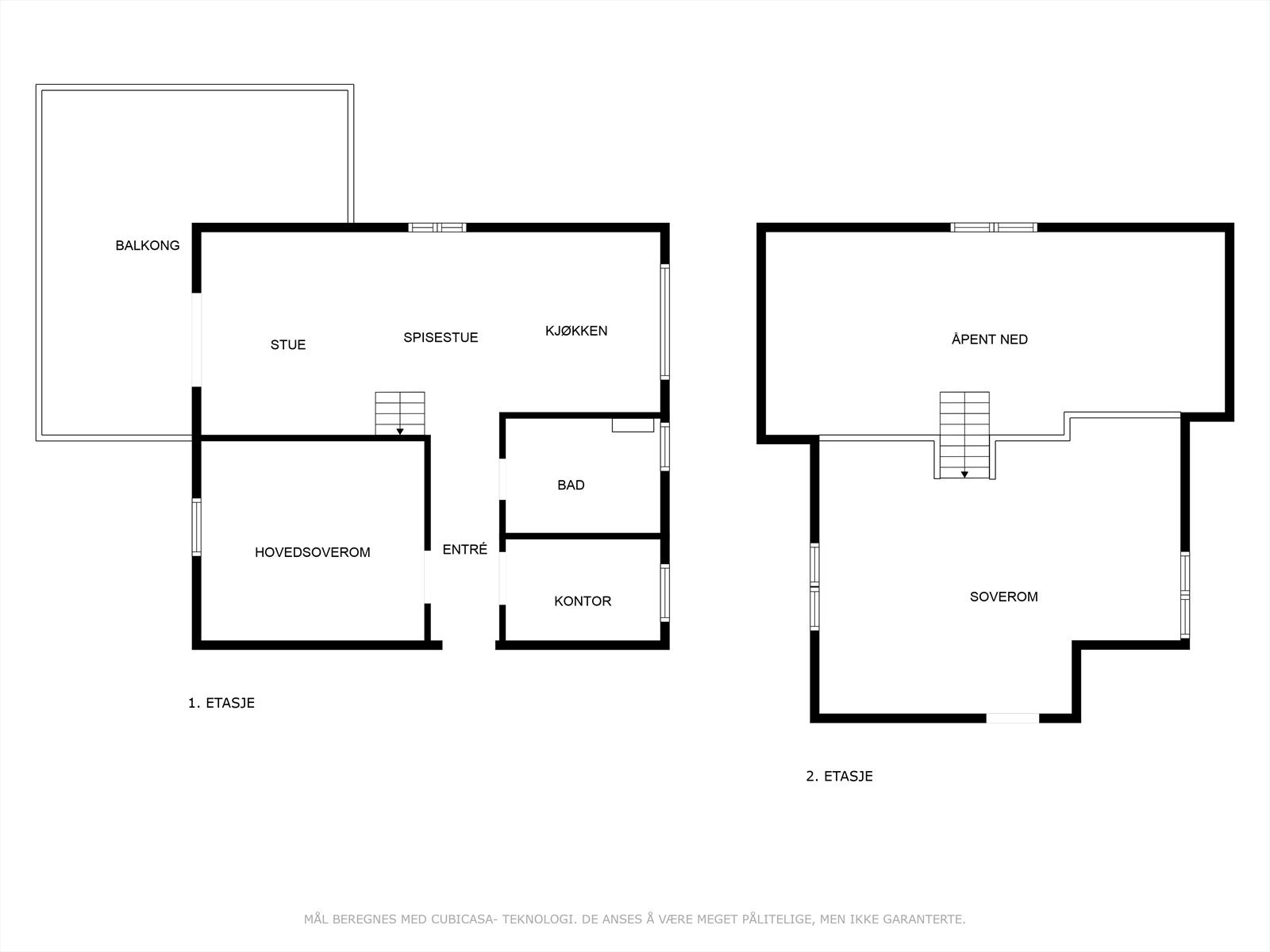
En nyoppusset, rålekker leilighet i 2. etasje pluss loft i en nærmest totalrenovert firemannsbolig på Solvang. En særegen leilighet av de sjeldne!
Det er en gjennomført leilighet med gjennomgående høy standard med eksklusive materialvalg og god planløsning med bl.a. soverom, kontor og loftstue. Legg spesielt merke til loftstuen med takvinduer som kan åpnes til takaltan. Store vindusflater og takvinduer i 3 lysretninger gir rikelig med naturlig lys.
Fra stuen er det utgang til en solrik terrasse på hele 22 kvm!
Her bor man solrikt og rolig til, med kort vei til det aller meste Tønsberg kan by på! Sjelden kombinasjon av supersentralt og rolig beliggenhet!
Velkommen til en hyggelig visning!
En nyoppusset, rålekker leilighet i 2. etasje pluss loft i en nærmest totalrenovert firemannsbolig på Solvang. En særegen leilighet av de sjeldne!
Det er en gjennomført leilighet med gjennomgående høy standard med eksklusive materialvalg og god planløsning med bl.a. soverom, kontor og loftstue. Legg spesielt merke til loftstuen med takvinduer som kan åpnes til takaltan. Store vindusflater og takvinduer i 3 lysretninger gir rikelig med naturlig lys.
Fra stuen er det utgang til en solrik terrasse på hele 22 kvm!
Her bor man solrikt og rolig til, med kort vei til det aller meste Tønsberg kan by på! Sjelden kombinasjon av supersentralt og rolig beliggenhet!
Velkommen til en hyggelig visning!
NB: Knappen for å vise hele beskrivelsen har kun en visuell effekt.
NB: Knappen for å vise hele beskrivelsen har kun en visuell effekt.
Salgsoppgaven beskriver vesentlig og lovpålagt informasjon om eiendommen
Se komplett salgsoppgaveNyttige lenker
Nærområdet
Nordvik Tønsberg
Annonseinformasjon
| FINN-kode | 444312777 |
|---|---|
| Sist endret | 28. jan. 2026 10:32 |
| Referanse | 25-0177/25 |
Annonsene kan være mangelfulle i forhold til lovpålagt opplysningsplikt. Før bindende avtale inngås oppfordres interessenter til å innhente komplett informasjon fra meglerforetaket, selger eller utleier.















































