Bildegalleri

Eiendommen ligger i et veletablert og rolig boligområde i Moss kommune, preget av grønne omgivelser og lite gjennomgangstrafikk.
MOSS - MOSSESKOGEN - Frittliggende todelt enebolig - Vestvendt terrasse - Garasje - Renoveringsbehov
Prisantydning2 450 000 kr
Nøkkelinfo
- Boligtype
- Enebolig
- Eieform
- Eier (Selveier)
- Soverom
- 3
- Internt bruksareal
- 115 m² (BRA-i)
- Bruksareal
- 127 m²
- Eksternt bruksareal
- 12 m² (BRA-e)
- Balkong/Terrasse
- 42 m² (TBA)
- Byggeår
- 1952
- Energimerking
- G - Oransje
- Tomteareal
- 808 m² (eiet)
Fasiliteter
Balkong/Terrasse
Barnevennlig
Garasje/P-plass
Hage
Kjæledyr tillatt
Ingen gjenboere
Offentlig vann/kloakk
Peis/Ildsted
Rolig
Sentralt
Turterreng
Visning
søndag, 18. januar
13:00 – 13:30
Ved annonsert visning er det viktig at du melder deg på visningen ved å bruke visningspåmeldingsknappen eller kontakter megler. Annonserte visninger hvor det ikke er noen påmeldte innen kl. 20.00 dagen før visningsdagen vil ikke bli avholdt.
For visninger utover dette, ta direkte kontakt med megler.
VisningspåmeldingOm boligen
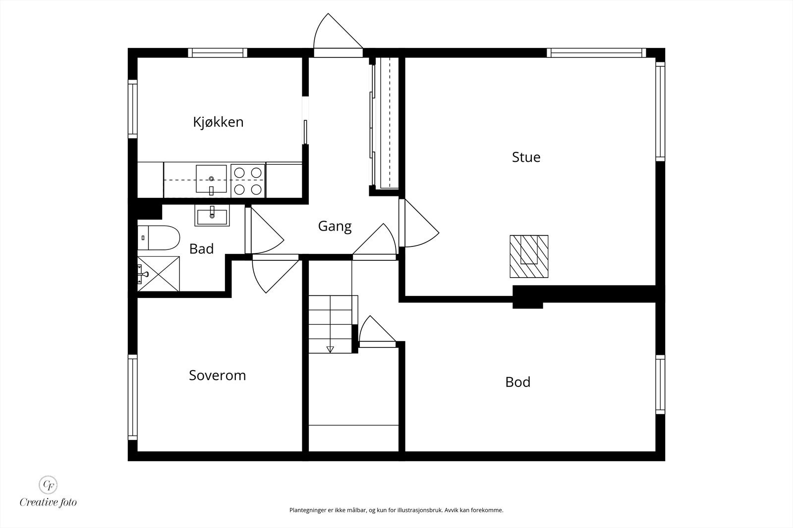
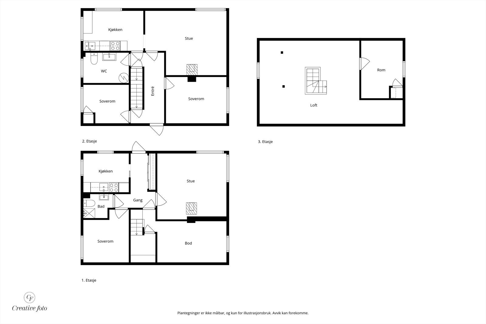
Gamleveien 42 er en frittliggende todelt enebolig oppført i 1952 med renoveringsbehov. Beliggende i et rolig og etablert boligområde på Verket/Kleiva i Moss. Boligen har et bruksareal på ca. 115 m² fordelt over to etasjer, med entré, stue, kjøkken, bad og soverom i begge etasjer, samt boder.
Eiendommen har vestvendt terrasse på ca. 32 m² over garasjen, samt en mindre terrasse ved inngangspartiet. Liten garasje som er bygget inntil boligen. Rikelig med lagringsplass i bod og på loft. Boligen bærer preg av høy alder og slitasje og har behov for betydelig rehabilitering.
Beliggenheten er skjermet i blindvei med lite trafikk, samtidig som det er kort vei til dagligvare, skole, kollektivtransport, sentrum og flotte tur- og friluftsområder.
Eiendommen har vestvendt terrasse på ca. 32 m² over garasjen, samt en mindre terrasse ved inngangspartiet. Liten garasje som er bygget inntil boligen. Rikelig med lagringsplass i bod og på loft. Boligen bærer preg av høy alder og slitasje og har behov for betydelig rehabilitering.
Beliggenheten er skjermet i blindvei med lite trafikk, samtidig som det er kort vei til dagligvare, skole, kollektivtransport, sentrum og flotte tur- og friluftsområder.
NB: Knappen for å vise hele beskrivelsen har kun en visuell effekt.
NB: Knappen for å vise hele beskrivelsen har kun en visuell effekt.
Salgsoppgaven beskriver vesentlig og lovpålagt informasjon om eiendommen
Se komplett salgsoppgaveNærområdet
Aktiv Moss
Annonseinformasjon
| FINN-kode | 444160445 |
|---|---|
| Sist endret | 04. jan. 2026 18:43 |
| Referanse | 1114250080 |
Annonsene kan være mangelfulle i forhold til lovpålagt opplysningsplikt. Før bindende avtale inngås oppfordres interessenter til å innhente komplett informasjon fra meglerforetaket, selger eller utleier.




































