Bildegalleri

Velkommen til Hoffsveien 55 B - Beliggende i grønne og fredelige omgivelser på Hoff/Smestad.
Smestad/Hoff
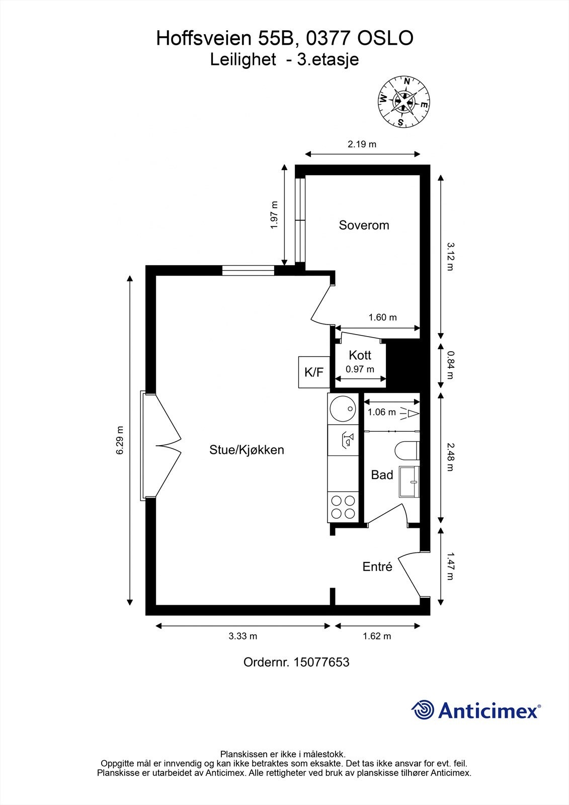
Lys og pen 2 roms hjørneleilighet i 3. etasje med vestvendt fransk balkong. Parkeringsleie*. Fyring og v.vann inkl.
Prisantydning3 990 000 kr
Nøkkelinfo
- Boligtype
- Leilighet
- Eieform
- Aksje
- Soverom
- 1
- Internt bruksareal
- 37 m² (BRA-i)
- Bruksareal
- 44 m²
- Eksternt bruksareal
- 7 m² (BRA-e)
- Etasje
- 3
- Byggeår
- 1960
- Energimerking
- D - Mørkegrønn
- Rom
- 2
- Tomteareal
- 7 805 m² (eiet)
Fasiliteter
Balkong/Terrasse
Barnevennlig
Bredbåndstilknytning
Fellesvaskeri
Garasje/P-plass
Offentlig vann/kloakk
Rolig
Sentralt
Vaktmester-/vektertjeneste
Turterreng
Visning
søndag, 11. januar
15:00 – 15:45
tirsdag, 13. januar
16:30 – 17:15
For å delta på visning, ber vi om at du melder deg på. Da sikrer vi at du får nødvendig informasjon og at det er satt av tilstrekkelig med tid. Kontakt megler dersom annet tidspunkt ønskes. Husk å lese salgsoppgaven før visningen, så du stiller forberedt.
Ønsker du kun å bli holdt orientert, kan du fra eiendommens hjemmeside få varsel om solgtpris, eller kontakte megler.
VisningspåmeldingOm boligen
Velkommen til Hoffsvei 55 B!
Lys og innbydende 2-roms med idyllisk beliggenhet ved Nedre Smestaddammen, fine grøntområder og flotte turmuligheter. Leiligheten holder pen standard og består av entre, romslig oppholdsrom med doble balkongdører mot vestvendt, fransk balkong og stue/kjøkken i åpen løsning, flislagt bad og soverom med plass til dobbeltseng. Innvendig bod m/opplegg for vaskemaskin. Store vindusflater og ekstra takhøyde gir leiligheten en god romfølelse.
Vinduer og balkongdører fra 2015/16
Bad og kjøkken fra 2008
Vedtatt oppføring større balkong (6,6 m2)
Varmtvann, fjernvarme, internett inkl.
Fellesvaskeri
Bod på loft og i kjeller
Sykkelbod
Ingen forkjøpsrett
Ingen dok. avgift
Gode kollektive forbindelser- 5 min gange
* Parkeringsleie (300,-)etter venteliste, ingen på liste pt.
Lys og innbydende 2-roms med idyllisk beliggenhet ved Nedre Smestaddammen, fine grøntområder og flotte turmuligheter. Leiligheten holder pen standard og består av entre, romslig oppholdsrom med doble balkongdører mot vestvendt, fransk balkong og stue/kjøkken i åpen løsning, flislagt bad og soverom med plass til dobbeltseng. Innvendig bod m/opplegg for vaskemaskin. Store vindusflater og ekstra takhøyde gir leiligheten en god romfølelse.
Vinduer og balkongdører fra 2015/16
Bad og kjøkken fra 2008
Vedtatt oppføring større balkong (6,6 m2)
Varmtvann, fjernvarme, internett inkl.
Fellesvaskeri
Bod på loft og i kjeller
Sykkelbod
Ingen forkjøpsrett
Ingen dok. avgift
Gode kollektive forbindelser- 5 min gange
* Parkeringsleie (300,-)etter venteliste, ingen på liste pt.
NB: Knappen for å vise hele beskrivelsen har kun en visuell effekt.
NB: Knappen for å vise hele beskrivelsen har kun en visuell effekt.
Salgsoppgaven beskriver vesentlig og lovpålagt informasjon om eiendommen
Se komplett salgsoppgaveNyttige lenker
Nærområdet
Krogsveen Majorstuen og Oslo Vest
Velkommen til en enklere boligreise.
Annonseinformasjon
| FINN-kode | 444103204 |
|---|---|
| Sist endret | 04. jan. 2026 15:37 |
| Referanse | KR40.25246 |
Annonsene kan være mangelfulle i forhold til lovpålagt opplysningsplikt. Før bindende avtale inngås oppfordres interessenter til å innhente komplett informasjon fra meglerforetaket, selger eller utleier.






























