Bildegalleri

Emir Mekic v/ Krogsveen har gleden av å presentere Kongsvingergata 1B!
Sagene
Romslig og åpen 3-roms med balkong. Åpen stue/kjøkken. Peis. Internett inkl. Veletablert borettslag. Nærhet til "alt"
Prisantydning7 600 000 kr
Nøkkelinfo
- Boligtype
- Leilighet
- Eieform
- Andel
- Soverom
- 2
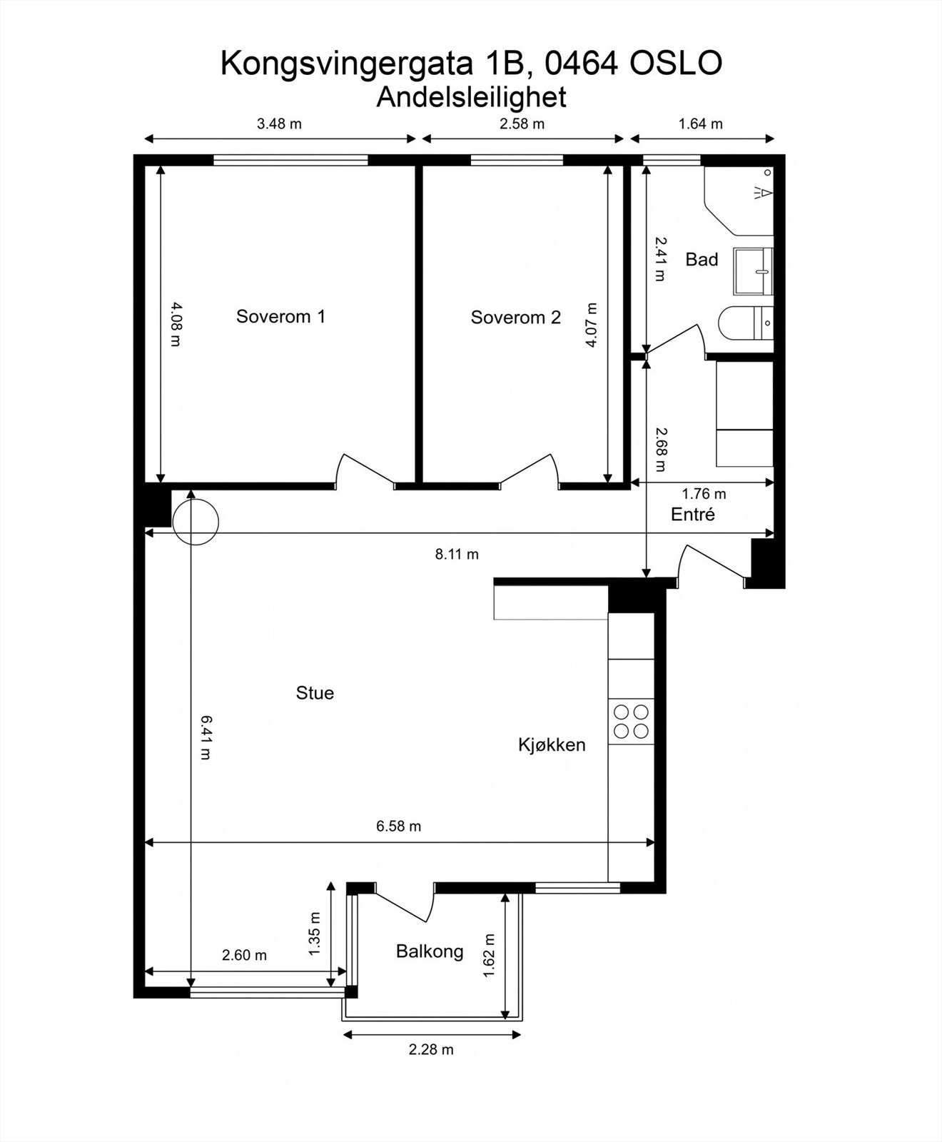
- Internt bruksareal
- 73 m² (BRA-i)
- Bruksareal
- 90 m²
- Eksternt bruksareal
- 17 m² (BRA-e)
- Balkong/Terrasse
- 4 m² (TBA)
- Etasje
- 3
- Byggeår
- 1948
- Energimerking
- E - Oransje
- Rom
- 3
- Tomteareal
- 11 011 m² (eiet)
Fasiliteter
Balkong/Terrasse
Barnevennlig
Bredbåndstilknytning
Fellesvaskeri
Kjæledyr tillatt
Kabel-TV
Offentlig vann/kloakk
Parkett
Rolig
Sentralt
Vaktmester-/vektertjeneste
Turterreng
Visning
søndag, 11. januar
13:30 – 14:30
mandag, 12. januar
18:30 – 19:30
Kontakt megler på telefon eller via linken visningspåmelding for å avtale tidspunkt. Det vil ikke bli avholdt visning uten påmelding.
Husk også å lese salgsoppgaven før visningen.
VisningspåmeldingOm boligen
Emir Mekic v/ Krogsveen har gleden av å presentere Kongsvingergata 1B! En herlig 3-roms med umiddelbar nærhet til det du har behov for i hverdagen. Leiligheten har en god planløsning og består av åpen stue/kjøkken, to soverom, entré og bad. Leiligheten har også en herlig balkong.
Verdt å merke seg:
Verdt å merke seg:
- Herlig balkong med gode solforhold på sommerhalvåret
- Internett tilknyttet fiber inkludert
- Rikelig med oppbevaring i stor loftsbod (10 m²) og to kjellerboder (6+1 m²)
- Velholdte overflater
- Fellesvaskeri og tørkeskap
- Åpen stue/kjøkkenløsning
- God planløsning
- Herlig peisovn
- Utsikt til Hjemmets kolonihage (med Portveien 2)
- Veletablert borettslag
- Nærhet til det du har behov for i hverdagen
- Flere populære spisesteder på Sagene
NB: Knappen for å vise hele beskrivelsen har kun en visuell effekt.
NB: Knappen for å vise hele beskrivelsen har kun en visuell effekt.
Salgsoppgaven beskriver vesentlig og lovpålagt informasjon om eiendommen
Se komplett salgsoppgaveNyttige lenker
Nærområdet
Krogsveen Løren
Velkommen til en enklere boligreise.
Annonseinformasjon
| FINN-kode | 444091067 |
|---|---|
| Sist endret | 05. jan. 2026 17:12 |
| Referanse | KR54.25124 |
Annonsene kan være mangelfulle i forhold til lovpålagt opplysningsplikt. Før bindende avtale inngås oppfordres interessenter til å innhente komplett informasjon fra meglerforetaket, selger eller utleier.






























