Bildegalleri

Emir Mekic v/ Krogsveen har gleden av å presentere Lindebergåsen 17!
Lindeberg
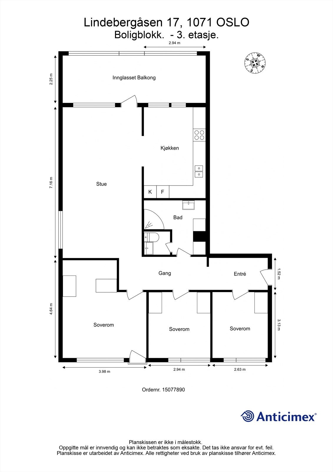
Stor 4-roms leilighet m/ gjennomgående planløsning. Stor vestvendt balkong. Pent HTH-kjøkken. Garasjeplass. VV inkl.
Prisantydning4 750 000 kr
Nøkkelinfo
- Boligtype
- Leilighet
- Eieform
- Andel
- Soverom
- 3
- Internt bruksareal
- 96 m² (BRA-i)
- Bruksareal
- 115 m²
- Eksternt bruksareal
- 3 m² (BRA-e)
- Innglasset balkong
- 16 m² (BRA-b)
- Etasje
- 3
- Byggeår
- 1978
- Energimerking
- G - Rød
- Rom
- 4
- Tomteareal
- 42 158 m² (eiet)
Fasiliteter
Alpinanlegg
Balkong/Terrasse
Barnevennlig
Bredbåndstilknytning
Garasje/P-plass
Kjæledyr tillatt
Ingen gjenboere
Kabel-TV
Offentlig vann/kloakk
Parkett
Rolig
Utsikt
Vaktmester-/vektertjeneste
Bademulighet
Fiskemulighet
Turterreng
Visning
onsdag, 07. januar
16:30 – 17:30
Kontakt megler på telefon eller via linken visningspåmelding for å avtale tidspunkt. Det vil ikke bli avholdt visning uten påmelding.
Husk også å lese salgsoppgaven før visningen.
VisningspåmeldingOm boligen
Emir Mekic v/ Krogsveen har gleden av å presentere Lindebergåsen 17! En stor 4-roms med gjennomgående planløsning og nærhet til det meste du har behov for. Leiligheten består av 3 romslige soverom, en stor stue/kjøkkenløsning med utgang til en herlig, vestvendt balkong. Balkongen har innglassing, som forlenger bruken til større deler av året.
Verdt å merke seg:
Verdt å merke seg:
- Leilighet har behov for modernisering
- Garasjeplass medfølger
- Varmtvann og fibernett inkludert i felleskostnader
- Gjennomgående planløsning
- Veletablert borettslag
- Vestvendt, innglasset balkong
- Nærhet til det meste du har behov for
- Familievennlig
- Markanær beliggenhet med flere turmuligheter
- Godt kollektivtilbud i nærheten
NB: Knappen for å vise hele beskrivelsen har kun en visuell effekt.
NB: Knappen for å vise hele beskrivelsen har kun en visuell effekt.
Salgsoppgaven beskriver vesentlig og lovpålagt informasjon om eiendommen
Se komplett salgsoppgaveNyttige lenker
Nærområdet
Krogsveen Løren
Velkommen til en enklere boligreise.
Annonseinformasjon
| FINN-kode | 444061787 |
|---|---|
| Sist endret | 02. jan. 2026 14:37 |
| Referanse | KR54.25139 |
Annonsene kan være mangelfulle i forhold til lovpålagt opplysningsplikt. Før bindende avtale inngås oppfordres interessenter til å innhente komplett informasjon fra meglerforetaket, selger eller utleier.









































