Bildegalleri

Her kan du nyte solen på dagtid, og det er plass til både sittegruppe og grill.
Gjerdrum/Ask
Attraktiv 2-roms eierleilighet fra 2016 med balkong og garasjeplass m/elbillader - Flott beliggenhet i Ask sentrum!
Prisantydning3 300 000 kr
Nøkkelinfo
- Boligtype
- Leilighet
- Eieform
- Eier (Selveier)
- Soverom
- 1
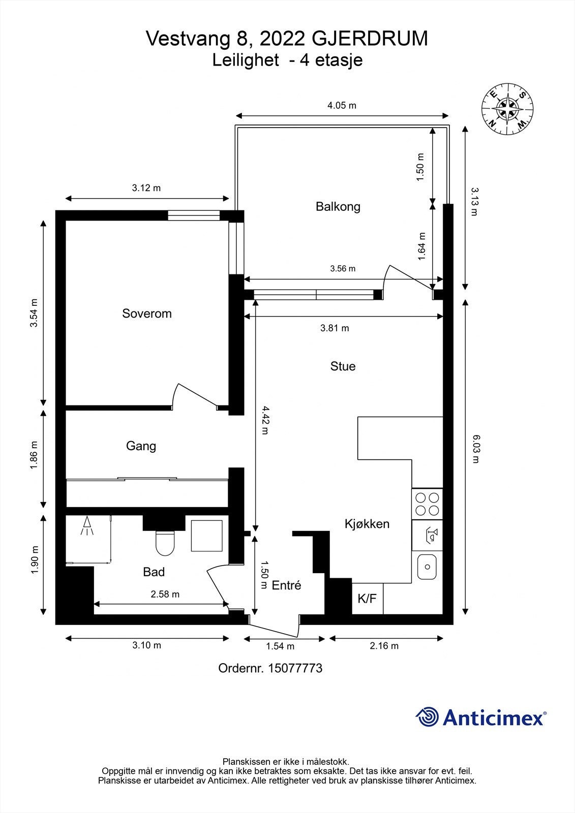
- Internt bruksareal
- 49 m² (BRA-i)
- Bruksareal
- 54 m²
- Eksternt bruksareal
- 5 m² (BRA-e)
- Balkong/Terrasse
- 12 m² (TBA)
- Etasje
- 4
- Byggeår
- 2016
- Energimerking
- B - Rød
- Rom
- 2
- Tomteareal
- 5 630 m² (eiet)
Visning
torsdag, 29. januar
17:00 – 18:00
For å delta på visning, ber vi om at du melder deg på. Da sikrer vi at du får nødvendig informasjon og at det er satt av tilstrekkelig med tid. Kontakt megler dersom annet tidspunkt ønskes. Husk å lese salgsoppgaven før visningen, så du stiller forberedt. NB. Visning utgår dersom det ikke er noen påmeldte.
Ønsker du kun å bli holdt orientert, kan du fra eiendommens hjemmeside få varsel om solgtpris, eller kontakte megler.
VisningspåmeldingOm boligen
Velkommen til Vestvang 8, en moderne 2-roms leilighet fra 2016 med balkong, garasjeplass og svært sentral beliggenhet midt i sentrum av Ask. Her har du umiddelbar nærhet til blant annet butikker, apotek, vinmonopol, treningssenter, restauranter og flotte turmuligheter - mer bekvemt blir det ikke. Fra Ask bussterminal er det hyppige avganger til både Oslo og Gardermoen, noe som gjør området godt egnet for pendlere. Leiligheten holder en gjennomgående god standard, med en smart planløsning og gode lysforhold. Flere høydepunkter:
- Adkomst ved heis og utvendig svalgang
- Rema 1000 i byggets 1. etasje
- Garasjeplass med elbillader
- Balkong på hele 12 kvm
- Balansert ventilasjon
- Kjellerbod på 5 kvm
Velkommen til visning!
- Adkomst ved heis og utvendig svalgang
- Rema 1000 i byggets 1. etasje
- Garasjeplass med elbillader
- Balkong på hele 12 kvm
- Balansert ventilasjon
- Kjellerbod på 5 kvm
Velkommen til visning!
NB: Knappen for å vise hele beskrivelsen har kun en visuell effekt.
NB: Knappen for å vise hele beskrivelsen har kun en visuell effekt.
Salgsoppgaven beskriver vesentlig og lovpålagt informasjon om eiendommen
Se komplett salgsoppgaveNyttige lenker
Nærområdet
Krogsveen Skedsmokorset
Verdien av en god megler.
Annonseinformasjon
| FINN-kode | 444041576 |
|---|---|
| Sist endret | 25. jan. 2026 08:36 |
| Referanse | KR59.25159 |
Annonsene kan være mangelfulle i forhold til lovpålagt opplysningsplikt. Før bindende avtale inngås oppfordres interessenter til å innhente komplett informasjon fra meglerforetaket, selger eller utleier.



























