Bildegalleri

Benjamin Schrøder v/ Privatmegleren ønsker velkommen til Heerveien 11J!
Drøbak / Heer
Moderne, praktisk liten leilighet | Innglasset balkong og markterrasse | Vestvendt og solrik | Parkering
Prisantydning2 490 000 kr
Nøkkelinfo
- Boligtype
- Leilighet
- Eieform
- Andel
- Soverom
- 0
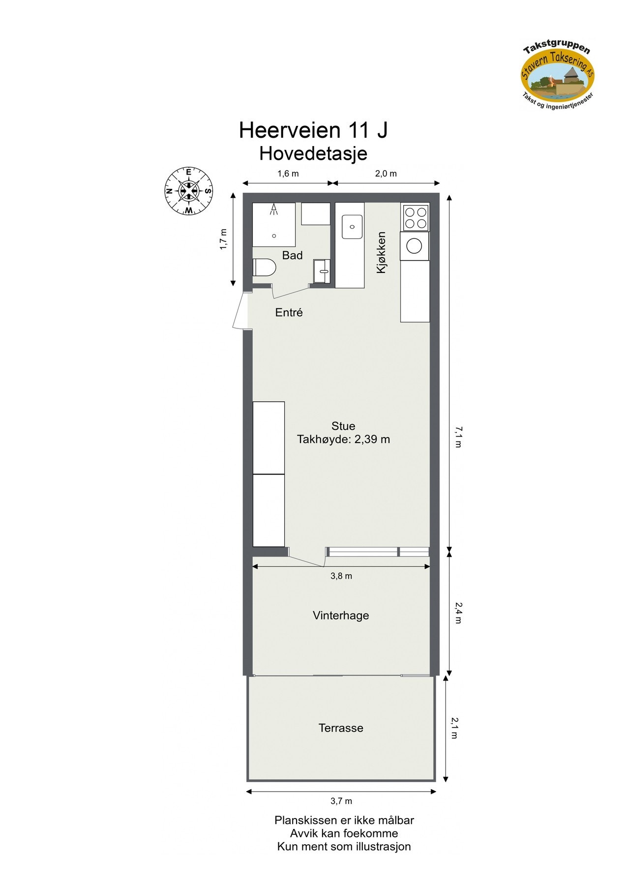
- Internt bruksareal
- 27 m² (BRA-i)
- Bruksareal
- 40 m²
- Eksternt bruksareal
- 4 m² (BRA-e)
- Innglasset balkong
- 9 m² (BRA-b)
- Balkong/Terrasse
- 8 m² (TBA)
- Etasje
- 1
- Byggeår
- 1976
- Energimerking
- F - Rød
- Rom
- 1
- Tomteareal
- 17 018 m² (eiet)
Fasiliteter
Barnevennlig
Balkong/Terrasse
Garasje/P-plass
Offentlig vann/kloakk
Ingen gjenboere
Turterreng
Utsikt
Bredbåndstilknytning
Moderne
Rolig
Visning
mandag, 12. januar
18:15 – 19:00
Velkommen til visning!
Alle våre visninger har påmelding. På denne måten sikrer vi at megler har god oversikt og tid til å imøtekomme alle interessenter på beste måte. Dette er veldig verdifullt for boligkjøpere og for oss. Det er enkelt å melde seg på, og du kan like enkelt melde deg av. Kontakt også gjerne megler i forkant av visning dersom du har spørsmål.
Om boligen
Benjamin Schrøder ønsker velkommen til Heerveien 11J! En moderne og effektiv leilighet med flott vinterhage og markterrasse. Her bor du med gangavstand til dagligvare, buss til Oslo og Drøbak og flotte rekreasjonsområder. Leiligheten holder en god standard med flislagt bad med gulvvarme, fullt utstyrt kjøkken, og nye gulv fra 2024. Samlet sett byr boligen på gjennomtenkte løsninger, gode solforhold og attraktive uteplasser som gir høy bokomfort. Borettslaget har god parkeringsdekning etter første mann til mølla prinsippet. Parkering og garasje med mulighet for lading kan leies.
- Attraktiv og rolig beliggenhet.
- Vestvendt og solrikt.
- Gode solforhold.
- Nærhet til buss til Drøbak, og ekspress til Oslo,
- Kort vei til butikker, skole og barnehage.
- Flotte turområder i umiddelbar nærhet.
- Attraktiv og rolig beliggenhet.
- Vestvendt og solrikt.
- Gode solforhold.
- Nærhet til buss til Drøbak, og ekspress til Oslo,
- Kort vei til butikker, skole og barnehage.
- Flotte turområder i umiddelbar nærhet.
NB: Knappen for å vise hele beskrivelsen har kun en visuell effekt.
NB: Knappen for å vise hele beskrivelsen har kun en visuell effekt.
Salgsoppgaven beskriver vesentlig og lovpålagt informasjon om eiendommen
Se komplett salgsoppgaveNyttige lenker
Nærområdet
PrivatMegleren Ski-Ås
Kun det beste på dine vegne
Annonseinformasjon
| FINN-kode | 444033108 |
|---|---|
| Sist endret | 05. jan. 2026 17:50 |
| Referanse | 309251158 |
Annonsene kan være mangelfulle i forhold til lovpålagt opplysningsplikt. Før bindende avtale inngås oppfordres interessenter til å innhente komplett informasjon fra meglerforetaket, selger eller utleier.




























