Bildegalleri

Rollsløkkvegen 13 - Sentrumsnær hel tomannsbolig.
Hamar
Hel tomannsbolig innredet med 2 boenheter og 3 hybler. Sentrumsnær beliggenhet med gangavstand til "alt".
Prisantydning7 800 000 kr
Nøkkelinfo
- Boligtype
- Tomannsbolig
- Eieform
- Eier (Selveier)
- Soverom
- 5
- Internt bruksareal
- 273 m² (BRA-i)
- Bruksareal
- 273 m²
- Byggeår
- 1952
- Energimerking
- G - Rød
- Rom
- 10
- Tomteareal
- 814 m² (eiet)
Fasiliteter
Balkong/Terrasse
Barnevennlig
Hage
Rolig
Sentralt
Turterreng
Visning
For å delta på visning, ber vi om at du melder deg på. Da sikrer vi at du får nødvendig informasjon og at det er satt av tilstrekkelig med tid. Husk å lese salgsoppgaven før visningen, så du stiller forberedt.
Ønsker du kun å bli holdt orientert, kan du fra eiendommens hjemmeside få varsel om solgtpris, eller kontakte megler.
VisningspåmeldingOm boligen
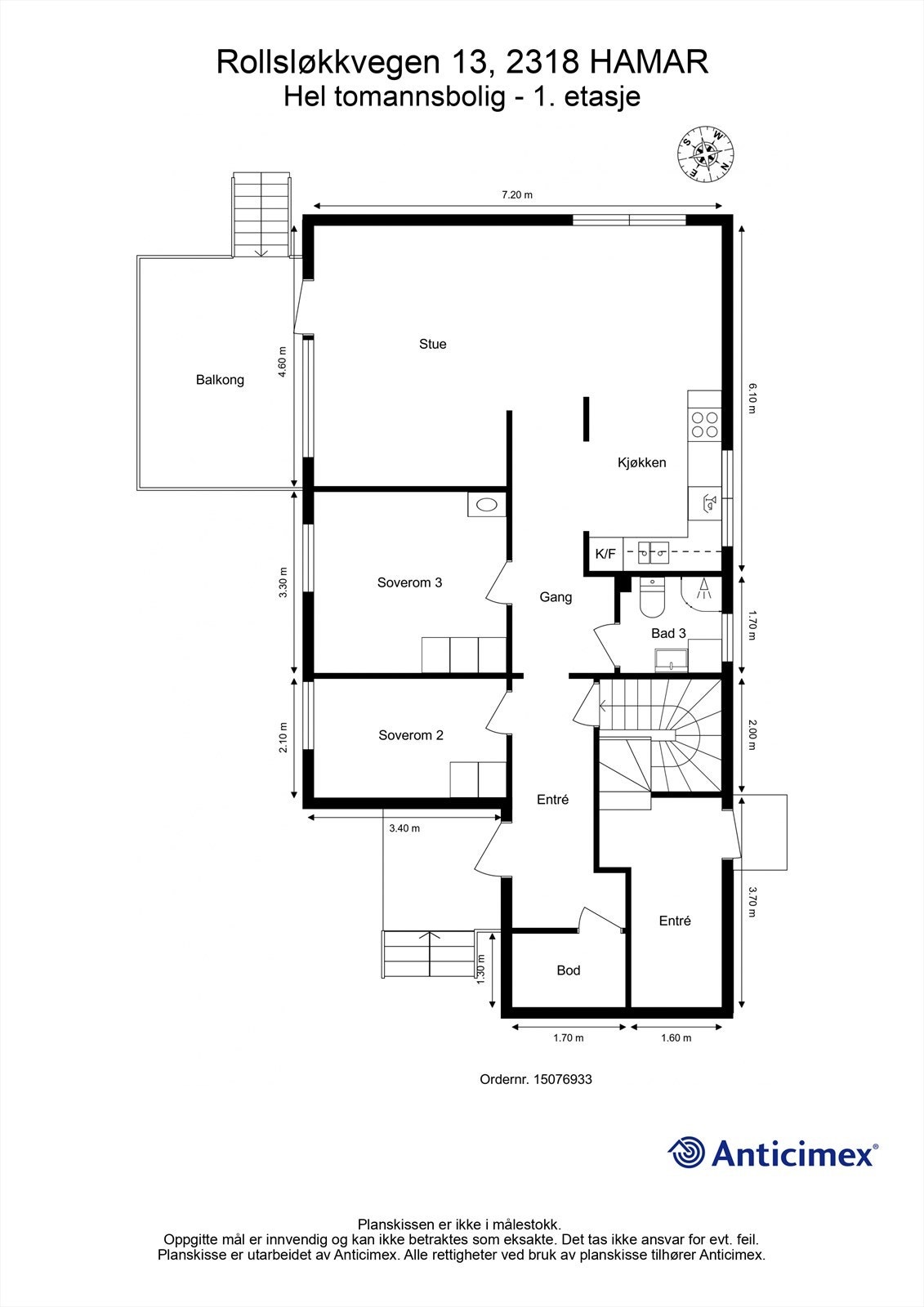
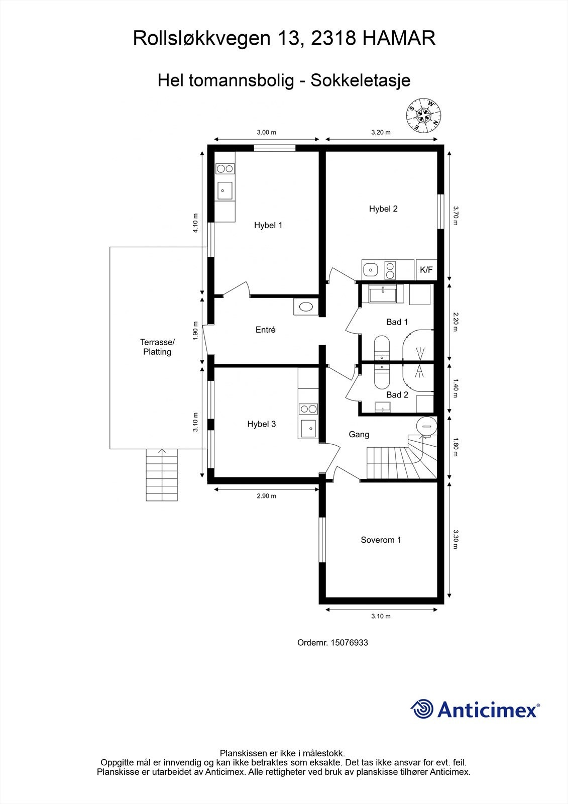
Velkommen til Rollsløkkvegen 13!
Hel 2-mannsbolig med 3 hybler i sokkeletasjen. Gode muligheter for utleie.
Boligen fremstår som romslig og velholdt, med gode lysforhold. Det er en funksjonell og god planløsning i begge etasjene. Begge leilighetene har hver sin inngang i første etasje. Hyblene i sokkeletasjen er tilknyttet leiligheten i 1. etasje. Hyblene deler inngang i sokkeletasjen.
Meget sentral og god beliggenhet i attraktivt og barnevennlig område. Kort vei til barnehager, skoler, butikker og Hamar.
Hel 2-mannsbolig med 3 hybler i sokkeletasjen. Gode muligheter for utleie.
Boligen fremstår som romslig og velholdt, med gode lysforhold. Det er en funksjonell og god planløsning i begge etasjene. Begge leilighetene har hver sin inngang i første etasje. Hyblene i sokkeletasjen er tilknyttet leiligheten i 1. etasje. Hyblene deler inngang i sokkeletasjen.
Meget sentral og god beliggenhet i attraktivt og barnevennlig område. Kort vei til barnehager, skoler, butikker og Hamar.
NB: Knappen for å vise hele beskrivelsen har kun en visuell effekt.
NB: Knappen for å vise hele beskrivelsen har kun en visuell effekt.
Salgsoppgaven beskriver vesentlig og lovpålagt informasjon om eiendommen
Se komplett salgsoppgaveNyttige lenker
Nærområdet
Krogsveen Hamar
Verdien av en god megler.
Annonseinformasjon
| FINN-kode | 444028135 |
|---|---|
| Sist endret | 05. jan. 2026 09:28 |
| Referanse | KR65.24179 |
Annonsene kan være mangelfulle i forhold til lovpålagt opplysningsplikt. Før bindende avtale inngås oppfordres interessenter til å innhente komplett informasjon fra meglerforetaket, selger eller utleier.



































