Bildegalleri

Velkommen til Blinken 15 på Bakkeli!
Solgt
Bakkeli
Vestvendt mot Tunevannet - Romslig enebolig med usjenerte uteplasser - Dobbelgarasje
Prisantydning9 350 000 kr
Nøkkelinfo
- Boligtype
- Enebolig
- Eieform
- Eier (Selveier)
- Soverom
- 4
- Internt bruksareal
- 312 m² (BRA-i)
- Bruksareal
- 312 m²
- Eksternt bruksareal
- 34 m² (BRA-e)
- Balkong/Terrasse
- 163 m² (TBA)
- Byggeår
- 1989
- Energimerking
- D - Gul
- Rom
- 7
- Tomteareal
- 695 m² (eiet)
Fasiliteter
Barnevennlig
Balkong/Terrasse
Garasje/P-plass
Peis/Ildsted
Utsikt
Rolig
Lademulighet
Balansert ventilasjon
Om boligen
Blinken 15 er en stor og innholdsrik enebolig med flott beliggenhet i blindvei.
Eiendommen ligger på Bakkeli, et av byens mest attraktive boområder. Området er rolig og barnevennlig, og den høye beliggenheten gir flott utsikt over Tunevannet. Plasseringen gir meget gode solforhold, og her kan du nyte solnedgangen over Tunevannet.
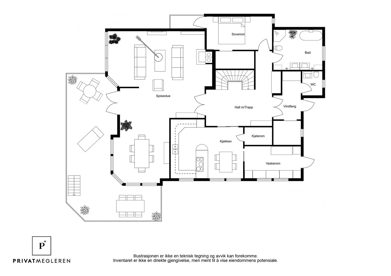
Boligen er bygget etter terrenget, og har et bruksareal på hele 312 kvm. Det er vannbåren gulvvarme i alle 3 etasjer, og store vinduer mot Tunevannet. Boligen er praktisk innredet, og inneholder blant annet 4 soverom, kontor, 2 bad og eget vaskerom. I tillegg til romslige stuearealer er det både loftstue og kjellerstue. Det er store terrasser i 2 etasjer, og her har du sol fra tidlig morgen til sent på kveld.
Velkommen på visning!
Eiendommen ligger på Bakkeli, et av byens mest attraktive boområder. Området er rolig og barnevennlig, og den høye beliggenheten gir flott utsikt over Tunevannet. Plasseringen gir meget gode solforhold, og her kan du nyte solnedgangen over Tunevannet.
Boligen er bygget etter terrenget, og har et bruksareal på hele 312 kvm. Det er vannbåren gulvvarme i alle 3 etasjer, og store vinduer mot Tunevannet. Boligen er praktisk innredet, og inneholder blant annet 4 soverom, kontor, 2 bad og eget vaskerom. I tillegg til romslige stuearealer er det både loftstue og kjellerstue. Det er store terrasser i 2 etasjer, og her har du sol fra tidlig morgen til sent på kveld.
Velkommen på visning!
NB: Knappen for å vise hele beskrivelsen har kun en visuell effekt.
NB: Knappen for å vise hele beskrivelsen har kun en visuell effekt.
Salgsoppgaven beskriver vesentlig og lovpålagt informasjon om eiendommen
Se komplett salgsoppgaveNyttige lenker
Nærområdet

PrivatMegleren Sarpsborg
Kun det beste på dine vegne
Annonseinformasjon
| FINN-kode | 444024772 |
|---|---|
| Sist endret | 25. jan. 2026 14:29 |
| Referanse | 193250239 |
Annonsene kan være mangelfulle i forhold til lovpålagt opplysningsplikt. Før bindende avtale inngås oppfordres interessenter til å innhente komplett informasjon fra meglerforetaket, selger eller utleier.











































