Bildegalleri

Velkommen til Seljestadveien 93 A!
HARSTADBOTN
4-ROMS SELVEIERLEIL. PÅ TO PLAN - 2. etasje og loft - Parkering på gårdsplass - Oppgradert i senere tid
Prisantydning2 100 000 kr
Nøkkelinfo
- Boligtype
- Leilighet
- Eieform
- Eier (Selveier)
- Soverom
- 3
- Internt bruksareal
- 67 m² (BRA-i)
- Bruksareal
- 67 m²
- Balkong/Terrasse
- 4 m² (TBA)
- Etasje
- 2
- Byggeår
- 1950
- Energimerking
- G - Rød
- Rom
- 4
- Tomteareal
- 292 m² (eiet)
Fasiliteter
Balkong/Terrasse
Barnevennlig
Bredbåndstilknytning
Garasje/P-plass
Hage
Kjæledyr tillatt
Offentlig vann/kloakk
Rolig
Sentralt
Visning
onsdag, 07. januar
17:00 – 17:45
Velkommen til visning! Meld deg på ved å trykke "visningspåmelding" i våre boligannonser. Ta gjerne kontakt med megler i forkant av visningen om du har spørsmål.
VisningspåmeldingOm boligen
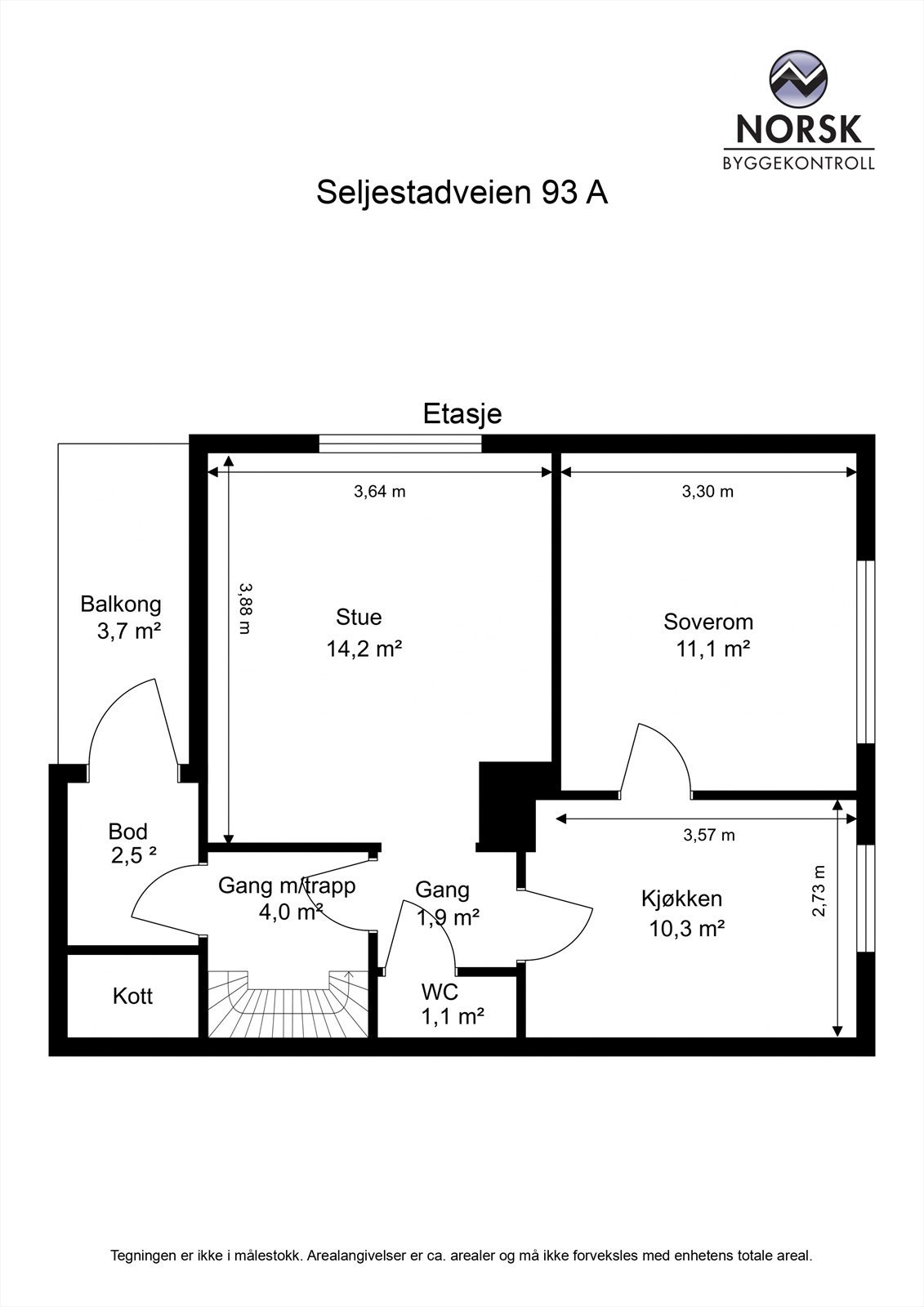
Her får du en selveierleilighet over to plan i et etablert, sentralt og godt utbygget boligområde.
Leiligheten har en rekke gode kvaliteter og vi ønsker å trekke frem:
Leiligheten har en rekke gode kvaliteter og vi ønsker å trekke frem:
- Lys og trivelig stue med plass til sofagruppe og med store vindusflater som slipper inn mye naturlig lys
- Kjøkkeninnredning med en modulbasert, takhøy innredning med glatte fronter
- Kombinert bad/vaskerom med opplegg for vaskemaskin
- Toalettrom
- Tre lyse og gode soverom
- Balkong
- Parkering på gårdsplass
- Område oppleves som bynært, praktisk og med korte avstander til både skole, bhg og arbeidsplasser
- Gangavstand til dagligvare, bakeri og øvrige servicetilbud
- Her får du en oppgradert 4-roms selveier med sentralt beliggenhet i Harstadbotn
NB: Knappen for å vise hele beskrivelsen har kun en visuell effekt.
NB: Knappen for å vise hele beskrivelsen har kun en visuell effekt.
Salgsoppgaven beskriver vesentlig og lovpålagt informasjon om eiendommen
Se komplett salgsoppgaveNyttige lenker
Nærområdet
DNB Eiendom AS
Fra hjem til hjem
Annonseinformasjon
| FINN-kode | 443896712 |
|---|---|
| Sist endret | 05. jan. 2026 09:09 |
| Referanse | 804250073 |
Annonsene kan være mangelfulle i forhold til lovpålagt opplysningsplikt. Før bindende avtale inngås oppfordres interessenter til å innhente komplett informasjon fra meglerforetaket, selger eller utleier.





















