Bildegalleri

Velkommen til Tiurveien 47! Foto: Stine Prøitz Jørgensen
Solgt
Konnerud
Innholdsrik familiebolig med fantastisk utsikt beliggende i et attraktivt boligområde. Dobbelgarasje. Nær skole & marka.
Prisantydning9 200 000 kr
Nøkkelinfo
- Boligtype
- Enebolig
- Eieform
- Selveier
- Soverom
- 3
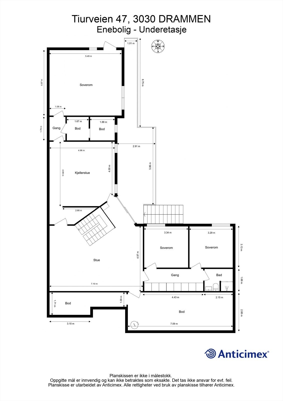
- Internt bruksareal
- 347 m² (BRA-i)
- Bruksareal
- 379 m²
- Eksternt bruksareal
- 32 m² (BRA-e)
- Balkong/Terrasse
- 94 m² (TBA)
- Etasje
- 2
- Byggeår
- 1989
- Energimerking
- Rom
- 6
- Tomteareal
- 1 336 m² (eiet)
Fasiliteter
Balkong/Terrasse
Barnevennlig
Garasje/P-plass
Hage
Kjæledyr tillatt
Ingen gjenboere
Offentlig vann/kloakk
Parkett
Peis/Ildsted
Rolig
Sentralt
Utsikt
Turterreng
Lademulighet
Om boligen
Velkommen til Tiurveien 47! En innholdsrik enebolig med fantastisk utsikt over Drammen, beliggende i en rolig blindvei.
Her bor du i et veletablert og familievennlig nabolag på Konnerud, med umiddelbar nærhet til marka. Boligen er flott tilbaketrukket fra trafikk og byr på en storslått utsikt med fritt utsyn over Drammen by. Med kort vei til skoler, barnehager og Konnerud sentrum ligger alt til rette for en enkel og aktiv hverdag.
Boligen er innholdsrik over to plan med fleksibel planløsning, flere stuer, to pene bad og et lekkert Schmidt-kjøkken fra 2018. Kjøkkenet er moderne med integrerte hvitevarer og god benkeplass. Oppvarmet med to varmepumper fra 2014, peisinnsats og gulvvarme på bad. Gode uteplasser med mye sol og utsikt. Parkering i garasje på ca. 32 kvm med el-billader fra 2022
Her bor du i et veletablert og familievennlig nabolag på Konnerud, med umiddelbar nærhet til marka. Boligen er flott tilbaketrukket fra trafikk og byr på en storslått utsikt med fritt utsyn over Drammen by. Med kort vei til skoler, barnehager og Konnerud sentrum ligger alt til rette for en enkel og aktiv hverdag.
Boligen er innholdsrik over to plan med fleksibel planløsning, flere stuer, to pene bad og et lekkert Schmidt-kjøkken fra 2018. Kjøkkenet er moderne med integrerte hvitevarer og god benkeplass. Oppvarmet med to varmepumper fra 2014, peisinnsats og gulvvarme på bad. Gode uteplasser med mye sol og utsikt. Parkering i garasje på ca. 32 kvm med el-billader fra 2022
NB: Knappen for å vise hele beskrivelsen har kun en visuell effekt.
NB: Knappen for å vise hele beskrivelsen har kun en visuell effekt.
Salgsoppgaven beskriver vesentlig og lovpålagt informasjon om eiendommen
Se komplett salgsoppgaveNyttige lenker
Nærområdet
Krogsveen Drammen
Verdien av en god megler.
Annonseinformasjon
| FINN-kode | 443888803 |
|---|---|
| Sist endret | 23. apr. 2026 13:54 |
| Referanse | KR20.25364 |
Annonsene kan være mangelfulle i forhold til lovpålagt opplysningsplikt. Før bindende avtale inngås oppfordres interessenter til å innhente komplett informasjon fra meglerforetaket, selger eller utleier.







































