Bildegalleri

Velkommen til Krebs' gate 7A - presentert av Sandra M. Bylin i Krogsveen - Foto: Peter Futo
TORSHOV
Lys og luftig 2-roms i klassisk Torshovgård - Moderne kjøkken - Peisovn og store vinduer - Idyllisk bakgård!
Prisantydning5 050 000 kr
Nøkkelinfo
- Boligtype
- Leilighet
- Eieform
- Andel
- Soverom
- 1
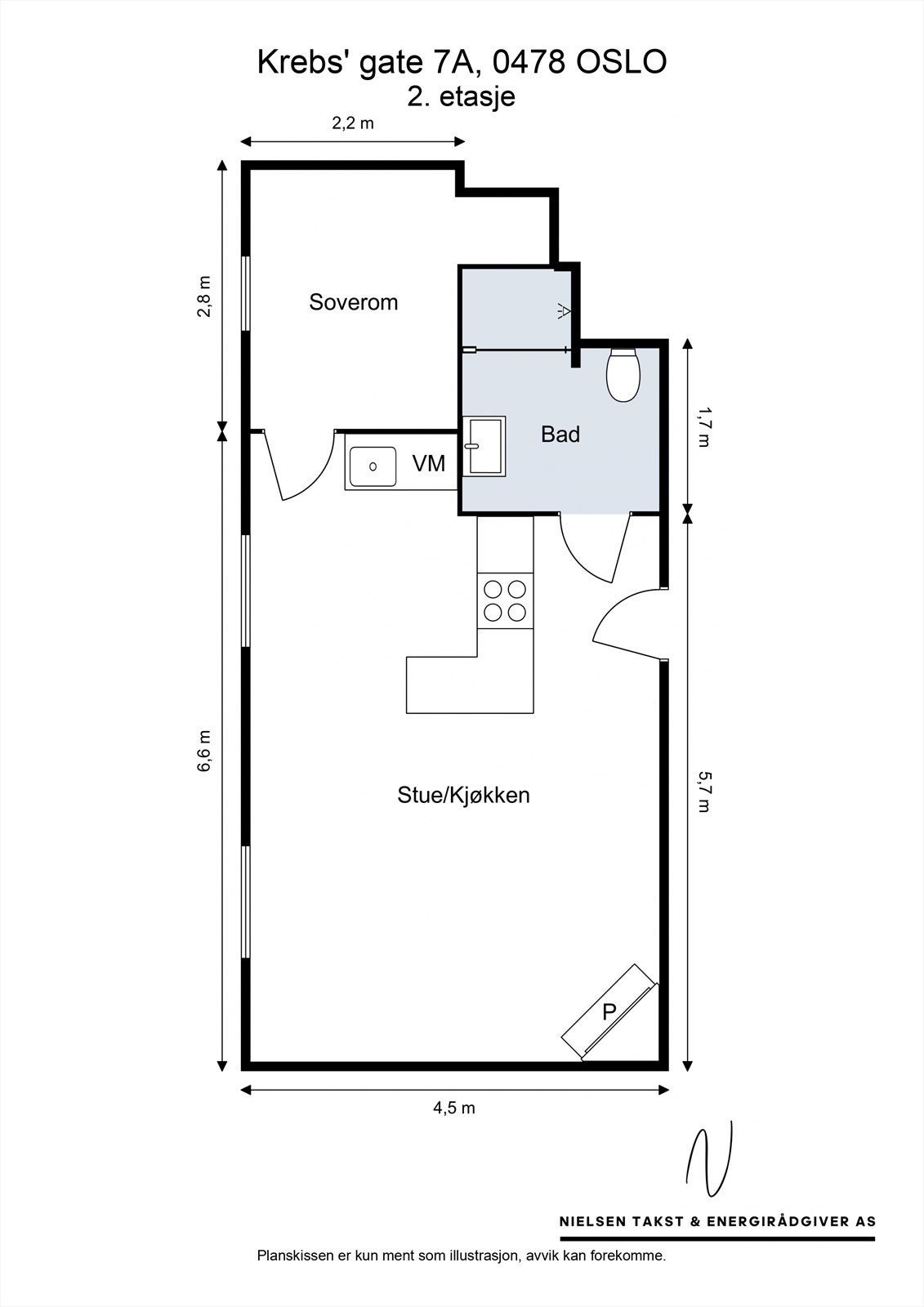
- Internt bruksareal
- 41 m² (BRA-i)
- Bruksareal
- 48 m²
- Eksternt bruksareal
- 7 m² (BRA-e)
- Etasje
- 2
- Byggeår
- 1920
- Energimerking
- F - Oransje
- Rom
- 1
- Tomteareal
- 649 m² (festet)
- Festeavgift
- 106 784 kr
Fasiliteter
Barnevennlig
Bredbåndstilknytning
Fellesvaskeri
Kjæledyr tillatt
Kabel-TV
Offentlig vann/kloakk
Peis/Ildsted
Rolig
Sentralt
Vaktmester-/vektertjeneste
Om boligen
Velkommen til Krebs' gate 7A - en lys og moderne 2-roms med svært attraktiv beliggenhet i klassisk Torshovgård!
Leiligheten holder en god standard, med blant annet stort og pent bad, romslig kjøkkeninnredning og en varmende peisovn. Her får du klassiske detaljer som store vinduer og dype vinduskarmer.
Sjelden mulighet med en attraktiv beliggenhet med nærhet til parker og det pulserende livet på Torshov, men også kort vei til både Storo og Grünerløkka! Her bor du urbant og sentralt, samtidig usjenert og rolig med lite innsyn. Kort vei til butikker, kollektivtransport og koselige kafeer og spisesteder. Her er det lett å trives!
Leiligheten holder en god standard, med blant annet stort og pent bad, romslig kjøkkeninnredning og en varmende peisovn. Her får du klassiske detaljer som store vinduer og dype vinduskarmer.
Sjelden mulighet med en attraktiv beliggenhet med nærhet til parker og det pulserende livet på Torshov, men også kort vei til både Storo og Grünerløkka! Her bor du urbant og sentralt, samtidig usjenert og rolig med lite innsyn. Kort vei til butikker, kollektivtransport og koselige kafeer og spisesteder. Her er det lett å trives!
- Moderne kjøkken 2020
- Romslig baderom med gulvvarme
- Mye lys som gir en luftig romfølelse
- God lagringsplass i to boder
- Vinduer 2016
NB: Knappen for å vise hele beskrivelsen har kun en visuell effekt.
NB: Knappen for å vise hele beskrivelsen har kun en visuell effekt.
Salgsoppgaven beskriver vesentlig og lovpålagt informasjon om eiendommen
Se komplett salgsoppgaveNyttige lenker
Nærområdet
Krogsveen Årvoll
Velkommen til en enklere boligreise.
Annonseinformasjon
| FINN-kode | 443778542 |
|---|---|
| Sist endret | 05. jan. 2026 12:07 |
| Referanse | KR39.25208 |
Annonsene kan være mangelfulle i forhold til lovpålagt opplysningsplikt. Før bindende avtale inngås oppfordres interessenter til å innhente komplett informasjon fra meglerforetaket, selger eller utleier.






































