Bildegalleri

EiendomsMegler 1 ved Marius Lyng har gleden av å presentere Smistadvegen 27.

Granåsen

Innholdsrik enebolig på 339 kvm med godkjent utleiedel. Garasje og carport. Solrike uteplasser og hage. Midt i Bymarka.

Prisantydning6 750 000 kr
Totalpris
6 919 840 kr
Omkostninger
169 840 kr
Formuesverdi
2 361 028 kr

Nøkkelinfo

Boligtype
Enebolig
Eieform
Eier (Selveier)
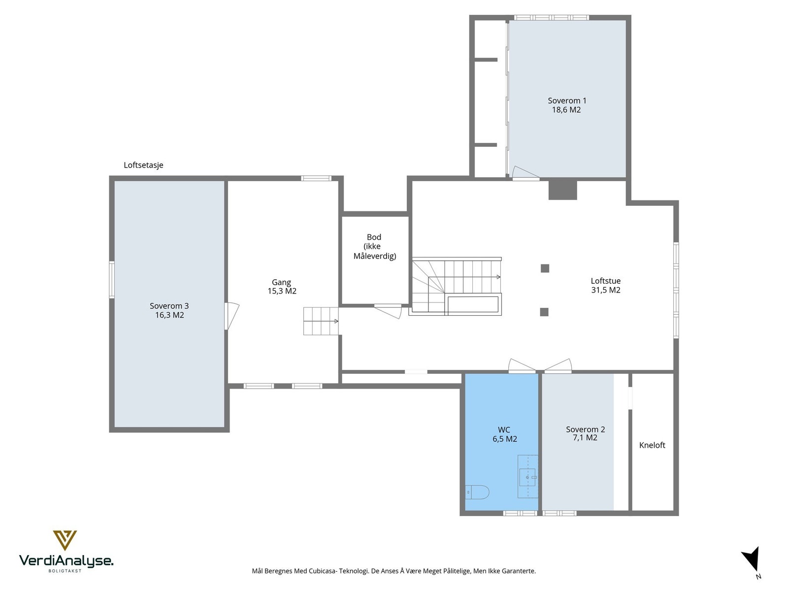
Soverom
6
Internt bruksareal
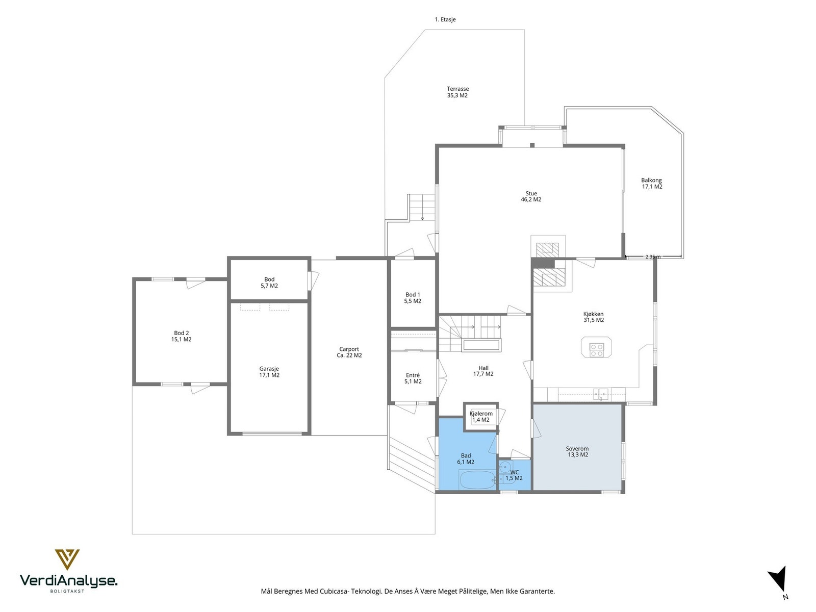
339 m² (BRA-i)
Bruksareal
383 m²
Eksternt bruksareal
44 m² (BRA-e)
Balkong/Terrasse
52 m² (TBA)
Byggeår
1994
Energimerking
D - Oransje
Rom
9
Tomteareal
1 103 m² (eiet)

Les mer om bruksareal her

Fasiliteter

Garasje/P-plass
Kabel-TV
Offentlig vann/kloakk
Peis/Ildsted
Turterreng
Bredbåndstilknytning
Rolig

Visning

torsdag, 08. januar
15:00 – 16:00
Våre visninger har påmelding. Dette gjør vi for å kunne yte bedre service for våre kunder. Verdifullt for boligkjøper og for oss. Vi anbefaler at salgsoppgaven lastes ned digitalt før visning, og ring oss gjerne på forhånd for spørsmål om boligen. Passer ikke angitt tidspunkt, ta kontakt så finner vi en løsning. Skulle det mot formodning ikke være påmeldte til angitt visningstidspunkt vil ikke visning bli gjennomført.
Visningspåmelding

Om boligen

EiendomsMegler 1 ved Marius Lyng har gleden av å presentere Smistadvegen 21. Her har du en sjelden mulighet til å sikre deg en enebolig med svært landlig, men samtidig bynær beliggenhet på Granåsen. Boligen strekker seg over tre plan med totalt seks soverom, fire bad og tre stuer. Med byggeår fra 1994 har du den perfekte rammen for å skape ditt drømmehjem.

Kvaliteter verdt å nevne:
  • Innholdsrik enebolig på 339 kvm fra 1994.
  • Godkjent utleiedel og mulighet for hybeldel.
  • Parkering i garasje, carport og asfaltert gårdsplass.
  • Stor stue på 46 kvm og lofsstue på 32 kvm.
  • Kjøkken med integrerte hvitevarer.
  • Flere solrike uteplasser og hage.
  • 6 romslige soverom, 4 bad og eget toalettrom.
  • Midt i hjertet av Bymarka med umiddelbar nærhet til skiløypa.
  • Dagligvarebutikk, treningssenter og bussholdeplass i kort gangavstand.

Salgsoppgaven beskriver vesentlig og lovpålagt informasjon om eiendommen

Se komplett salgsoppgave

Nærområdet

Annonseinformasjon

FINN-kode443748673
Sist endret31. des. 2025 16:05
Referanse31250765

Rapporter annonse

Annonsene kan være mangelfulle i forhold til lovpålagt opplysningsplikt. Før bindende avtale inngås oppfordres interessenter til å innhente komplett informasjon fra meglerforetaket, selger eller utleier.