Bildegalleri

Sebastian Westgård ved DNB Eiendom presenterer Bølerlia 7!
Bøler
Pen 4-roms med solrik balkong og god standard | Delikat bad fra 2024 | Nært t-bane, Bøler senter og Østmarka
Prisantydning5 250 000 kr
Nøkkelinfo
- Boligtype
- Leilighet
- Eieform
- Andel
- Soverom
- 3
- Internt bruksareal
- 68 m² (BRA-i)
- Bruksareal
- 74 m²
- Eksternt bruksareal
- 6 m² (BRA-e)
- Balkong/Terrasse
- 7 m² (TBA)
- Etasje
- 4
- Byggeår
- 1956
- Energimerking
- G - Mørkegrønn
- Rom
- 3
- Tomteareal
- 15 021 m² (eiet)
Fasiliteter
Balkong/Terrasse
Barnevennlig
Bredbåndstilknytning
Fellesvaskeri
Offentlig vann/kloakk
Rolig
Sentralt
Turterreng
Om boligen
Velkommen til Bølerlia 7! En pen andelsleilighet med god intern beliggenhet i borettslaget. Boligen ligger rett ved markagrensa, som gir mange muligheter for den turglade. Her bor man i et barnevennlig og populært boligområde på Bøler, med nærhet til skole, barnehager, offentlig kommunikasjon, Bøler bad, EVO treningssenter og Bøler senter. Bøler T-bane og Bøler Senter ligger kun 4 minutters gange fra boligen.
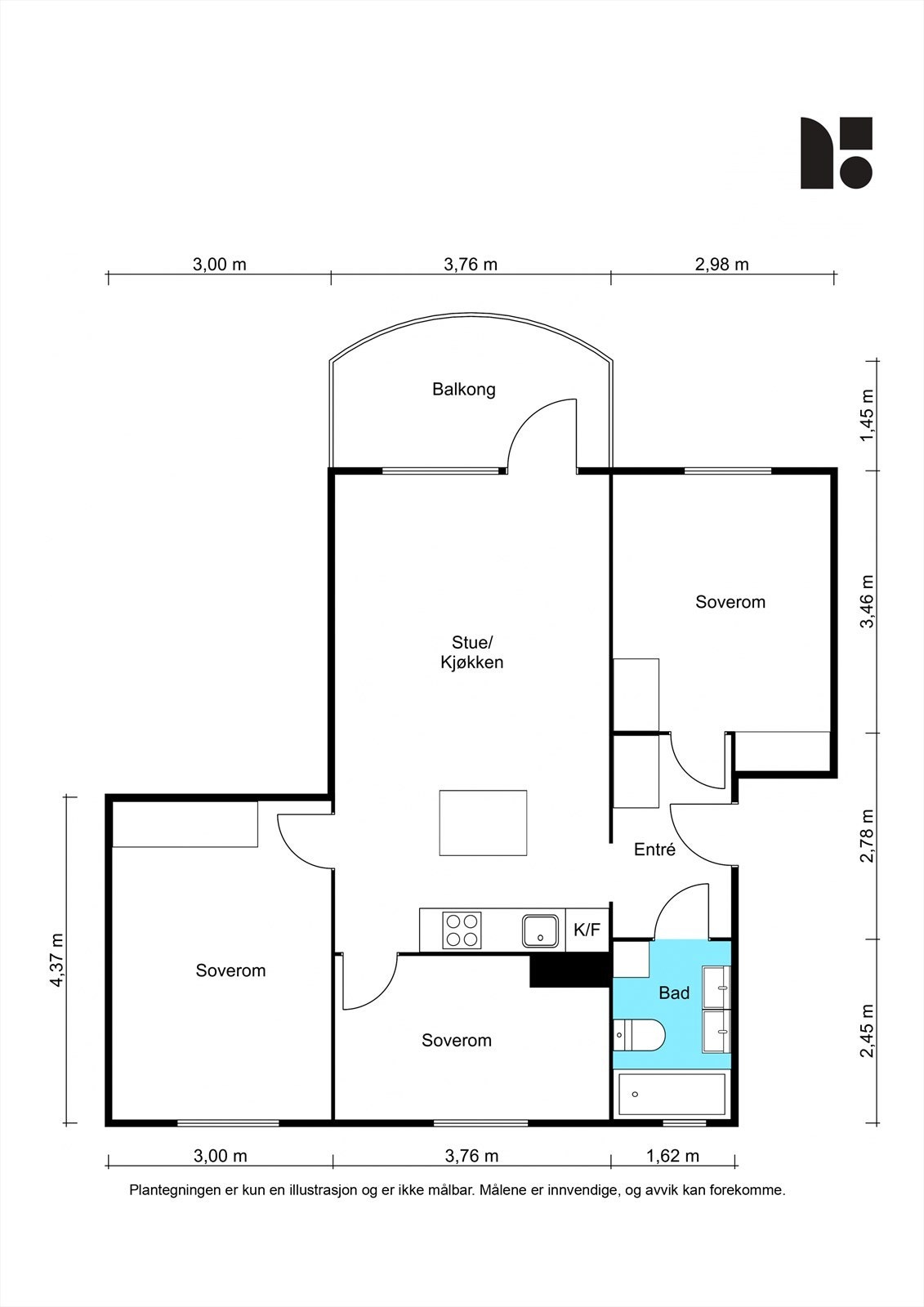
Leiligheten ligger i 4. etasje og har en god planløsning med luftige rom. Innvendig finner du en entré, pent baderom fra 2024 med opplegg for vaskemaskin, tre soverom, åpen stue kjøkken løsning med utgang til en 7 m² balkong med flotte solforhold.
Velkommen til en hyggelig visning!
Leiligheten ligger i 4. etasje og har en god planløsning med luftige rom. Innvendig finner du en entré, pent baderom fra 2024 med opplegg for vaskemaskin, tre soverom, åpen stue kjøkken løsning med utgang til en 7 m² balkong med flotte solforhold.
Velkommen til en hyggelig visning!
NB: Knappen for å vise hele beskrivelsen har kun en visuell effekt.
NB: Knappen for å vise hele beskrivelsen har kun en visuell effekt.
Salgsoppgaven beskriver vesentlig og lovpålagt informasjon om eiendommen
Se komplett salgsoppgaveNyttige lenker
Nærområdet
DNB Eiendom AS
Fra hjem til hjem
Annonseinformasjon
| FINN-kode | 443725710 |
|---|---|
| Sist endret | 30. des. 2025 20:36 |
| Referanse | 310250275 |
Annonsene kan være mangelfulle i forhold til lovpålagt opplysningsplikt. Før bindende avtale inngås oppfordres interessenter til å innhente komplett informasjon fra meglerforetaket, selger eller utleier.


































