Bildegalleri

Velkommen til Arnljot Gellines vei 35 - Presentert av Eiendomsmegler Krogsveen v/Emilie Lie! Foto: Peter Futo.
Lodalen/Etterstad
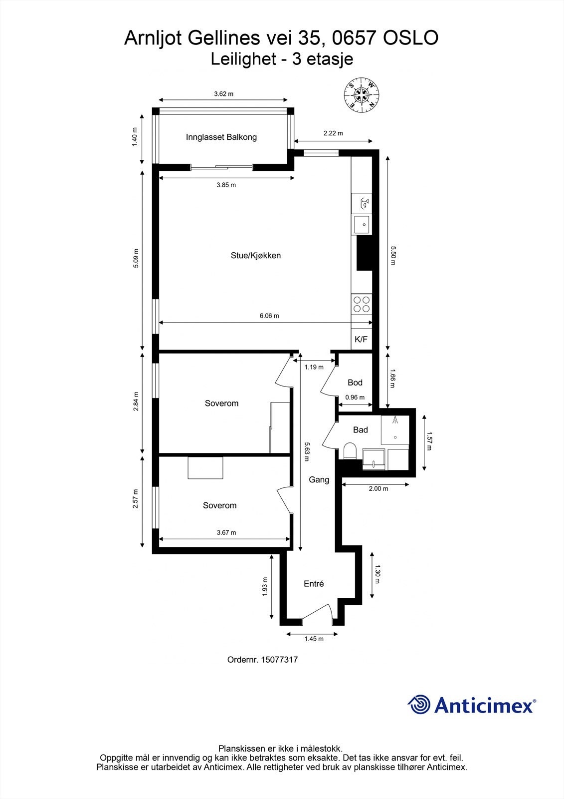
Meget lys og lekker 3-roms hjørneleilighet oppgradert i 2025. Sydvestvendt balkong på 6 kvm. Heis. Vv og fyring inkluder
Prisantydning5 100 000 kr
Nøkkelinfo
- Boligtype
- Leilighet
- Eieform
- Aksje
- Soverom
- 2
- Internt bruksareal
- 69 m² (BRA-i)
- Bruksareal
- 80 m²
- Eksternt bruksareal
- 5 m² (BRA-e)
- Innglasset balkong
- 6 m² (BRA-b)
- Etasje
- 3
- Byggeår
- 1960
- Energimerking
- A - Mørkegrønn
- Rom
- 3
- Tomteareal
- 13 188 m² (eiet)
Fasiliteter
Balkong/Terrasse
Barnevennlig
Bredbåndstilknytning
Fellesvaskeri
Garasje/P-plass
Heis
Kjæledyr tillatt
Ingen gjenboere
Kabel-TV
Offentlig vann/kloakk
Parkett
Rolig
Utsikt
Turterreng
Lademulighet
Visning
søndag, 11. januar
14:30 – 15:15
tirsdag, 13. januar
16:30 – 17:15
For å delta på visning, ber vi om at du melder deg på. Da sikrer vi at du får nødvendig informasjon og at det er satt av tilstrekkelig med tid. Kontakt megler dersom annet tidspunkt ønskes. Husk å lese salgsoppgaven før visningen, så du stiller forberedt.
Ønsker du kun å bli holdt orientert, kan du fra eiendommens hjemmeside få varsel om solgtpris, eller kontakte megler.
VisningspåmeldingOm boligen
Velkommen til Arnljot Gellines vei 35!
Dette er en lys og delikat 3-romsleilighet med rolig og attraktiv beliggenhet. Leiligheten har en god planløsning og består av entré, to soverom, bad, bod samt kjøkken og stue. Fra stuen har man utgang til en solrik sydvestvendt balkong på 6 kvm med vidstrakt utsikt.
Boligen er oppgradert i 2025 med nye gulv i stue/kjøkken/gang, nye fronter, maling og el-oppgraderinger.
Fra leiligheten har du kort vei til butikker, kafeer, restauranter, kollektiv og hyggelige turområder.
Noen høydepunkter:
Dette er en lys og delikat 3-romsleilighet med rolig og attraktiv beliggenhet. Leiligheten har en god planløsning og består av entré, to soverom, bad, bod samt kjøkken og stue. Fra stuen har man utgang til en solrik sydvestvendt balkong på 6 kvm med vidstrakt utsikt.
Boligen er oppgradert i 2025 med nye gulv i stue/kjøkken/gang, nye fronter, maling og el-oppgraderinger.
Fra leiligheten har du kort vei til butikker, kafeer, restauranter, kollektiv og hyggelige turområder.
Noen høydepunkter:
- Rolig og attraktiv beliggenhet
- Nydelig balkong på 6 kvm
- Utsikt og gode solforhold
- Fyring og varmtvann inkludert
- Nye vinduer og balkongdør i 2016
- Mulig å leie parkeringsplass for kr 267,- pr mnd
- IN-ordning
NB: Knappen for å vise hele beskrivelsen har kun en visuell effekt.
NB: Knappen for å vise hele beskrivelsen har kun en visuell effekt.
Salgsoppgaven beskriver vesentlig og lovpålagt informasjon om eiendommen
Se komplett salgsoppgaveNyttige lenker
Nærområdet
Krogsveen Grünerløkka
Velkommen til en enklere boligreise.
Annonseinformasjon
| FINN-kode | 443723578 |
|---|---|
| Sist endret | 05. jan. 2026 14:25 |
| Referanse | KR42.2568 |
Annonsene kan være mangelfulle i forhold til lovpålagt opplysningsplikt. Før bindende avtale inngås oppfordres interessenter til å innhente komplett informasjon fra meglerforetaket, selger eller utleier.









































