Bildegalleri

PrivatMegleren Hamar v/Arbresh Vitija har gleden av å presentere Bryggerivegen 13!
Enebolig med attraktiv beliggenhet nær sentrum| | Rolig og sentral beliggenhet | Solrike uteplasser | Garasje |
Nøkkelinfo
- Boligtype
- Enebolig
- Eieform
- Eier (Selveier)
- Soverom
- 3
- Internt bruksareal
- 156 m² (BRA-i)
- Bruksareal
- 163 m²
- Eksternt bruksareal
- 7 m² (BRA-e)
- Balkong/Terrasse
- 63 m² (TBA)
- Byggeår
- 1976
- Energimerking
- F - Oransje
- Tomteareal
- 295 m²
- Boligselgerforsikring
- Ja
Visning
Om boligen
PrivatMegleren Hamar v/Arbresh Vitija har gleden av å presentere Bryggerivegen 13!
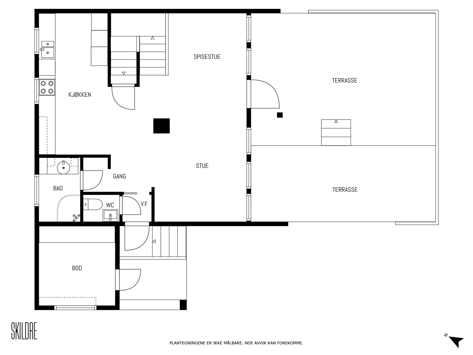
Velkommen til Bryggerivegen 13! En velholdt enebolig beliggende i et veletablert nabolag like utenfor Brumunddal sentrum. Boligen fra 1977 har en praktisk planløsning over tre plan. Første etasje byr på en lys stue og kjøkken med peisovn og utgang til en flott, sørvendt. Etasjen inneholder også et bad og et separat toalettrom. Andre etasje har tre gode soverom, mens kjeller har en vaskekjeller og flere lagringsrom. Parkering i privat garasje i felles anlegg.
Høydepunkter:
- Nytt gulv i 1. etasje (2022)
- 3 soverom
- Oppgradert kjøkken (2022)
- Nye 3-lags vinduer og balkongdør i stue (2024)
- Ny terrasse i 1. etasje (2025)
- Balkong med utgang fra soverom i loftsetasje
- Garasjeplass i felles garasjeanlegg
Velkommen til visning!
Salgsoppgaven beskriver vesentlig og lovpålagt informasjon om eiendommen
Se komplett salgsoppgaveNyttige lenker
Nærområdet
PrivatMegleren Hamar
Annonseinformasjon
| FINN-kode | 443716736 |
|---|---|
| Sist endret | 30. des. 2025 15:06 |
| Referanse | 320250224 |
Annonsene kan være mangelfulle i forhold til lovpålagt opplysningsplikt. Før bindende avtale inngås oppfordres interessenter til å innhente komplett informasjon fra meglerforetaket, selger eller utleier.












































