Bildegalleri

Velkommen til Munkedamsveien 100!
Solgt
FROGNER / SKILLEBEKK
Arealeffektiv og pen selveierleilighet med separat inngang! Gunstig utleieobjekt i klassisk bygård fra 1896, sentralt
Prisantydning3 780 000 kr
Nøkkelinfo
- Boligtype
- Leilighet
- Eieform
- Eier (Selveier)
- Soverom
- 0
- Internt bruksareal
- 33 m² (BRA-i)
- Bruksareal
- 33 m²
- Etasje
- 1
- Byggeår
- 1896
- Energimerking
- G - Rød
- Rom
- 1
- Tomteareal
- 603 m² (eiet)
Fasiliteter
Barnevennlig
Kabel-TV
Offentlig vann/kloakk
Sentralt
Bredbåndstilknytning
Rolig
Om boligen
En lys og innbydende selveierleilighet med attraktiv beliggenhet på Skillebekk/Frogner. Leiligheten ligger i en vakker, klassisk hjørnebygård fra 1896 og har egen separat inngang, noe som gir en skjermet og privat adkomst - og gjør boligen spesielt godt egnet som utleieobjekt.
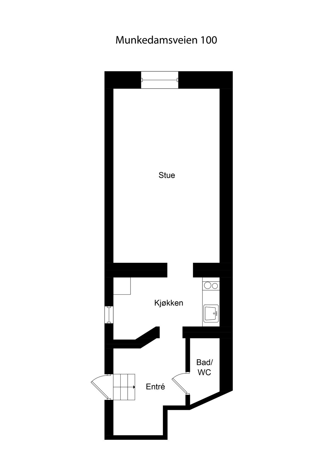
Boligen består av en romslig stue med god plass til både sofagruppe og spisebord, separat kjøkken med opplegg for vaskemaskin, flislagt baderom samt en hyggelig og funksjonell entré. Planløsningen er effektiv og lett å møblere, med løsninger som passer både for egen bruk og utleie.
Leiligheten har en svært sentral og ettertraktet beliggenhet med kort vei til hyggelige kaféer, restauranter og et bredt servicetilbud. I nærområdet finner du også flotte rekreasjonsområder som Frognerkilen og Bygdøy.
Høydepunkter
- Lave felleskostnader
- Kabel-TV og internett inkludert i felleskostnadene
- Klassisk og velholdt bygård
- God tilgang til kollektivtransport
- Svært gunstig utleieobjekt
Boligen består av en romslig stue med god plass til både sofagruppe og spisebord, separat kjøkken med opplegg for vaskemaskin, flislagt baderom samt en hyggelig og funksjonell entré. Planløsningen er effektiv og lett å møblere, med løsninger som passer både for egen bruk og utleie.
Leiligheten har en svært sentral og ettertraktet beliggenhet med kort vei til hyggelige kaféer, restauranter og et bredt servicetilbud. I nærområdet finner du også flotte rekreasjonsområder som Frognerkilen og Bygdøy.
Høydepunkter
- Lave felleskostnader
- Kabel-TV og internett inkludert i felleskostnadene
- Klassisk og velholdt bygård
- God tilgang til kollektivtransport
- Svært gunstig utleieobjekt
NB: Knappen for å vise hele beskrivelsen har kun en visuell effekt.
NB: Knappen for å vise hele beskrivelsen har kun en visuell effekt.
Salgsoppgaven beskriver vesentlig og lovpålagt informasjon om eiendommen
Se komplett salgsoppgaveNyttige lenker
Nærområdet
EIE eiendomsmegling Majorstuen & St. Hanshaugen
Annonseinformasjon
| FINN-kode | 443656000 |
|---|---|
| Sist endret | 16. jan. 2026 12:34 |
| Referanse | 25251545 |
Annonsene kan være mangelfulle i forhold til lovpålagt opplysningsplikt. Før bindende avtale inngås oppfordres interessenter til å innhente komplett informasjon fra meglerforetaket, selger eller utleier.




























