Bildegalleri

Velkommen til Ole Vigs gate 9B, presentert av Fredrik Meldahl ved EIE eiendomsmegling! Foto: Zovenfra.

Solgt
Sentralt på Majorstuen

Flott, gjennomgående 3-roms av god standard med klassiske detaljer | Solrik balkong | God planløsning | Ingen dok.avgift

Prisantydning7 000 000 kr
Totalpris
7 009 605 kr
Omkostninger
9 605 kr
Felleskost/mnd.
3 120 kr
Fellesformue
19 784 kr
Formuesverdi
1 696 675 kr

Nøkkelinfo

Boligtype
Leilighet
Eieform
Andel
Soverom
2
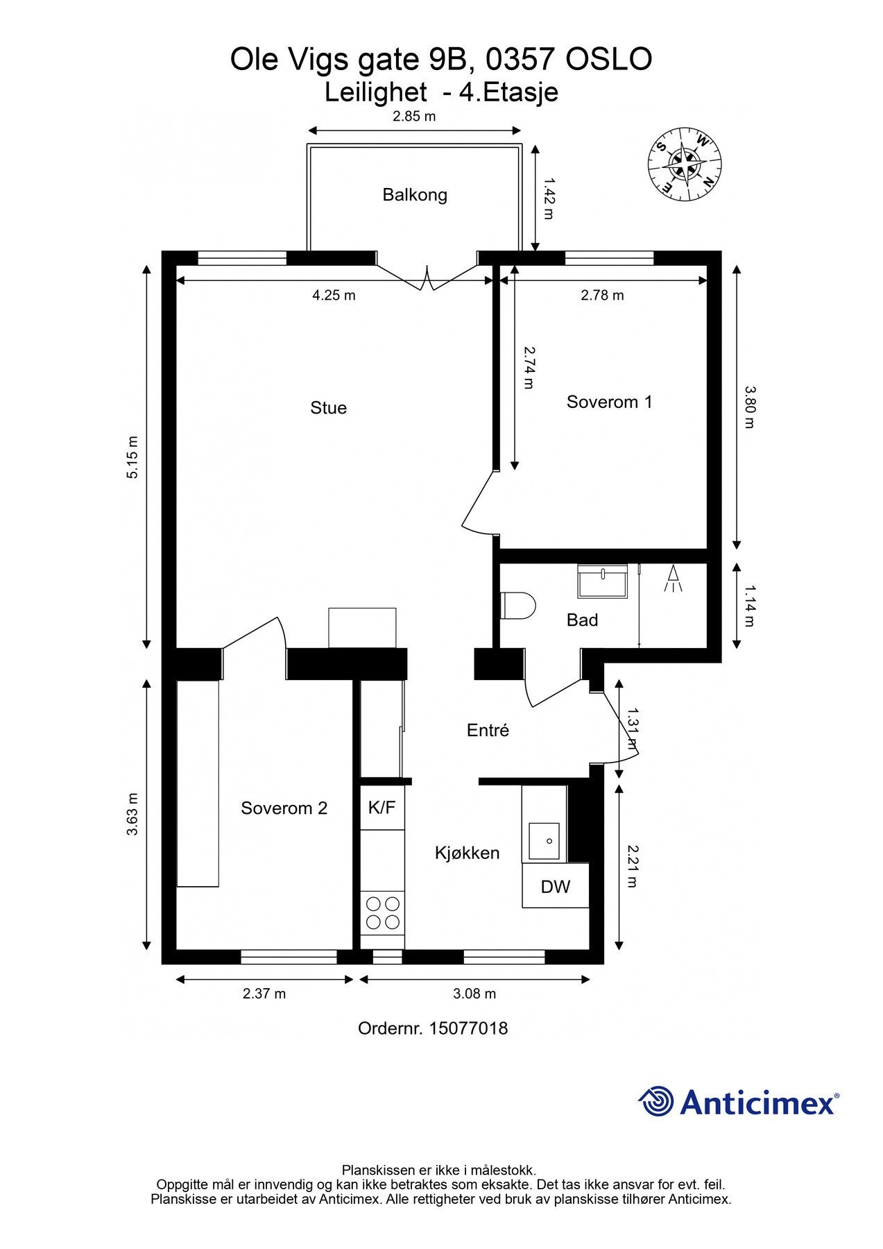
Internt bruksareal
60 m² (BRA-i)
Bruksareal
67 m²
Eksternt bruksareal
7 m² (BRA-e)
Balkong/Terrasse
4 m² (TBA)
Etasje
4
Byggeår
1893
Energimerking
G - Rød
Rom
3
Tomteareal
570 m² (eiet)

Les mer om bruksareal her

Fasiliteter

Barnevennlig
Balkong/Terrasse
Kabel-TV
Offentlig vann/kloakk
Peis/Ildsted
Utsikt
Sentralt
Bredbåndstilknytning
Moderne
Rolig

Om boligen

Velkommen til Ole Vigs gate 9B - en klassisk og gjennomført leilighet med attraktiv beliggenhet på Majorstuen. Her bor du rolig og tilbaketrukket, samtidig som byens tilbud ligger rett utenfor døren.

Leiligheten har en lys og romslig stue med god takhøyde, stukkatur, peis og utgang til en sydvestvendt balkong på 4 kvm med gode solforhold. De klassiske detaljene gir boligen et elegant og tidløst preg. Kjøkkenet ble pusset opp i 2021 og fremstår moderne og funksjonelt, med keramisk benkeplate og stilfulle materialvalg.

Begge soverommene vender mot stille og rolige omgivelser, noe som gir et skjermet bomiljø. Det medfølger en kjellerbod på ca. 7 kvm og en bod i trappeoppgang på 1 kvm (delt med nabo), og det er ingen dokumentavgift ved kjøp.

Beliggenheten er ideell med kort gangavstand til Bogstadveien, Frognerparken, Stensparken og Marienlystparken, samt svært gode kollektivforbindelser fra Majorstuen.

En sjelden kombinasjon av klassisk sjarm, ro og sentral beliggenhet!

Salgsoppgaven beskriver vesentlig og lovpålagt informasjon om eiendommen

Se komplett salgsoppgave

Nærområdet

Annonseinformasjon

FINN-kode443640559
Sist endret16. jan. 2026 11:49
Referanse50250397

Rapporter annonse

Annonsene kan være mangelfulle i forhold til lovpålagt opplysningsplikt. Før bindende avtale inngås oppfordres interessenter til å innhente komplett informasjon fra meglerforetaket, selger eller utleier.