Bildegalleri

Velkommen til Grønnegata 3! Presentert av Emma Eikrem v/ Krogsveen Majorstuen og Oslo Vest!
2-roms oppussingsobjekt med terrasse sentralt i Homansbyen - Nærhet til Oslo Met - Store vindusflater!
Prisantydning7 350 000 kr
Nøkkelinfo
- Boligtype
- Leilighet
- Eieform
- Eier (Selveier)
- Soverom
- 1
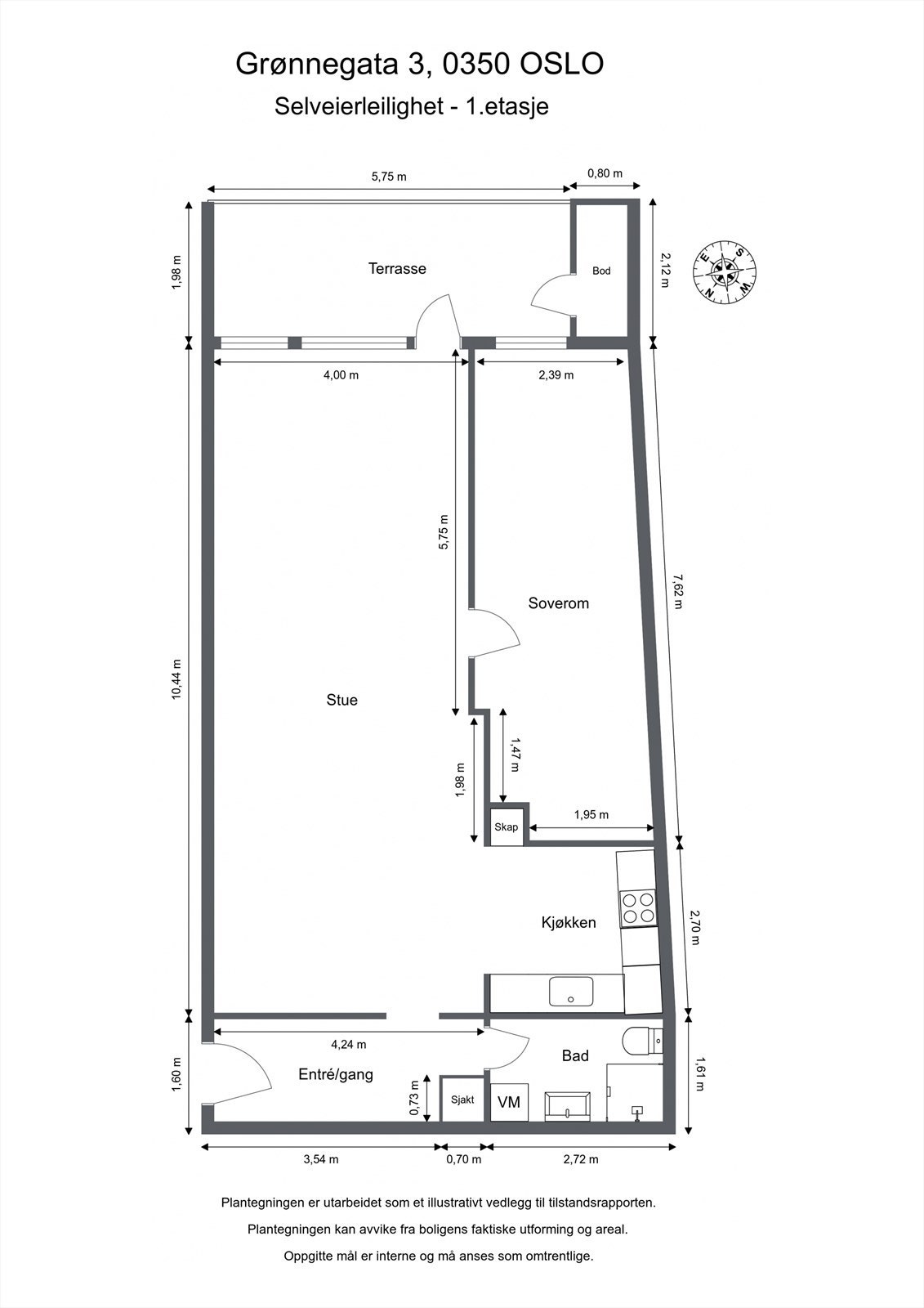
- Internt bruksareal
- 83 m² (BRA-i)
- Bruksareal
- 85 m²
- Eksternt bruksareal
- 2 m² (BRA-e)
- Balkong/Terrasse
- 11 m² (TBA)
- Etasje
- 2
- Byggeår
- 1980
- Energimerking
- E - Rød
- Rom
- 2
- Tomteareal
- 2 000 m² (festet)
- Festeavgift
- 8 487 kr
Fasiliteter
Balkong/Terrasse
Heis
Sentralt
Vaktmester-/vektertjeneste
Visning
søndag, 04. januar
12:00 – 12:45
tirsdag, 06. januar
16:30 – 17:15
For å delta på visning, ber vi om at du melder deg på. Da sikrer vi at du får nødvendig informasjon og at det er satt av tilstrekkelig med tid. Kontakt megler dersom annet tidspunkt ønskes. Husk å lese salgsoppgaven før visningen, så du stiller forberedt.
Ønsker du kun å bli holdt orientert, kan du fra eiendommens hjemmeside få varsel om solgtpris, eller kontakte megler.
VisningspåmeldingOm boligen
Velkommen til Grønnegata 3! Oppussingsobjekt med potensial. Her bor du sentralt på Majorstuen / Homansbyen. Leiligheten har en romslig stue med utgang til terrasse, kjøkken, soverom, bad og entré. Her bor du med umiddelbar nærhet til det beste Oslo by har å by på av handlegater, restauranter og dagligvarer. Leiligheten har inngang fra bakkeplan i 1.etasje fra Grønnegata 3, men vender ut mot Parkveien og fremstår som 2. etasje. Velkommen!
Høydepunkter:
- Romslig terrasse på 11 kvm.
- Trappefri adkomst til leiligheten.
- Kabel-TV & Internett inkl!
- Sentral beliggenhet.
- Oppussingsbehov.
- Bod på terrasse.
- Gode kollektive tilbud.
Velkommen inn!
Høydepunkter:
- Romslig terrasse på 11 kvm.
- Trappefri adkomst til leiligheten.
- Kabel-TV & Internett inkl!
- Sentral beliggenhet.
- Oppussingsbehov.
- Bod på terrasse.
- Gode kollektive tilbud.
Velkommen inn!
NB: Knappen for å vise hele beskrivelsen har kun en visuell effekt.
NB: Knappen for å vise hele beskrivelsen har kun en visuell effekt.
Salgsoppgaven beskriver vesentlig og lovpålagt informasjon om eiendommen
Se komplett salgsoppgaveNyttige lenker
Nærområdet
Krogsveen Majorstuen og Oslo Vest
Velkommen til en enklere boligreise.
Annonseinformasjon
| FINN-kode | 443604925 |
|---|---|
| Sist endret | 31. des. 2025 13:50 |
| Referanse | KR40.25233 |
Annonsene kan være mangelfulle i forhold til lovpålagt opplysningsplikt. Før bindende avtale inngås oppfordres interessenter til å innhente komplett informasjon fra meglerforetaket, selger eller utleier.
























