Bildegalleri

EiendomsMegler 1 v/Sondre Grønning har gleden av å presentere Gardemoens gate 11 A!
Lilleby/Lade
Stor og flott 2-roms andelsleilighet på 58m² |Klassisk preg | Store vinduer | God takhøyde | IN-ordning | Sentrumsnært
Prisantydning1 450 000 kr
Nøkkelinfo
- Boligtype
- Leilighet
- Eieform
- Andel
- Soverom
- 1
- Internt bruksareal
- 58 m² (BRA-i)
- Bruksareal
- 63 m²
- Eksternt bruksareal
- 5 m² (BRA-e)
- Etasje
- 2
- Byggeår
- 1915
- Energimerking
- G - Rød
- Rom
- 2
- Tomteareal
- 846 m² (eiet)
Fasiliteter
Barnevennlig
Kabel-TV
Offentlig vann/kloakk
Vaktmester-/vektertjeneste
Sentralt
Bredbåndstilknytning
Rolig
Visning
tirsdag, 06. januar
17:00 – 18:00
Våre visninger har påmelding. Dette gjør vi for å kunne yte bedre service for våre kunder. Verdifullt for boligkjøper og for oss. Vi anbefaler at salgsoppgaven lastes ned digitalt før visning, og ring oss gjerne på forhånd for spørsmål om boligen. Passer ikke angitt tidspunkt, ta kontakt så finner vi en løsning. Skulle det mot formodning ikke være påmeldte til angitt visningstidspunkt vil ikke visning bli gjennomført.
Om boligen
Velkommen til Gardemoens Gate 11 A - En klassisk og godt bevart bygård på sentrumsnære og attraktive Lilleby.
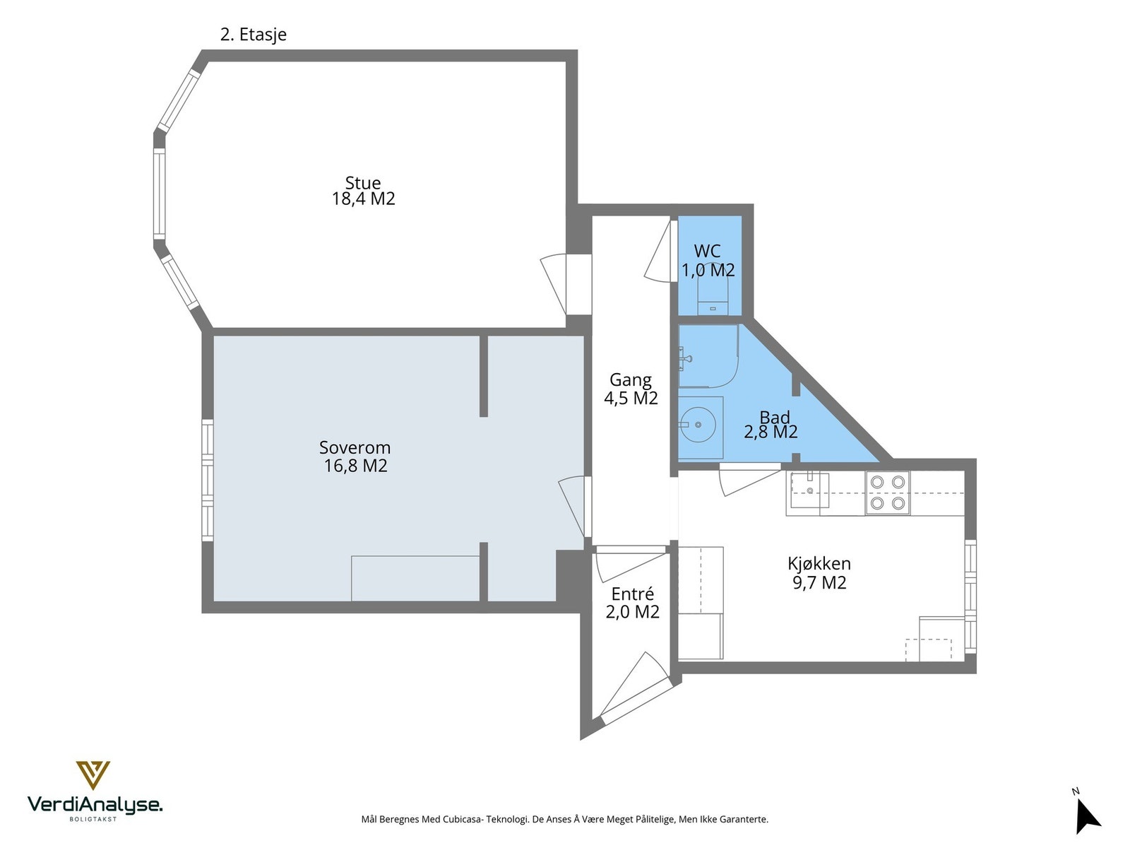
Dette er en særdeles romslig 2-roms med sine 58 kvm, leiligheten ligger i en godt bevart bygård og den har masse sjel og særpreg som man kun finner i leiligheter bygd i denne tidsepoken. Selve leiligheten ligger i 2 etasje. Boligen innehar mange ønskede kvaliteter og vi nevner noen av de:
Velkommen til en hyggelig visning!
Dette er en særdeles romslig 2-roms med sine 58 kvm, leiligheten ligger i en godt bevart bygård og den har masse sjel og særpreg som man kun finner i leiligheter bygd i denne tidsepoken. Selve leiligheten ligger i 2 etasje. Boligen innehar mange ønskede kvaliteter og vi nevner noen av de:
- Meget god og harmonisk planløsning
- Flott kjøkken med spiseplass
- Romslig soverom på 16,8kvm
- God takhøyde
- Bod i kjeller
- IN-ordning
- Bygård som er vesentlig rehabilitert i de senere år
- Stille og fredfulle boomgivelser
Velkommen til en hyggelig visning!
NB: Knappen for å vise hele beskrivelsen har kun en visuell effekt.
NB: Knappen for å vise hele beskrivelsen har kun en visuell effekt.
Salgsoppgaven beskriver vesentlig og lovpålagt informasjon om eiendommen
Se komplett salgsoppgaveNyttige lenker
Nærområdet
EiendomsMegler 1 Valentinlyst
Vi loser deg trygt gjennom hele boligsalget
Annonseinformasjon
| FINN-kode | 443603671 |
|---|---|
| Sist endret | 30. des. 2025 09:26 |
| Referanse | 34250379 |
Annonsene kan være mangelfulle i forhold til lovpålagt opplysningsplikt. Før bindende avtale inngås oppfordres interessenter til å innhente komplett informasjon fra meglerforetaket, selger eller utleier.























