Bildegalleri

Mastvelten presentert av Tegneby og Grønnerød Landbruksmegling
Idyllisk småbruk langs Glomma med innholdsrik bygningsmasse med bla. bolighus og verkstedbygg - Kun 20 min til Elverum!
Prisantydning3 900 000 kr
Nøkkelinfo
- Boligtype
- Gårdsbruk/Småbruk
- Eieform
- Eier (Selveier)
- Soverom
- 2
- Internt bruksareal
- 185 m² (BRA-i)
- Bruksareal
- 189 m²
- Eksternt bruksareal
- 4 m² (BRA-e)
- Balkong/Terrasse
- 51 m² (TBA)
- Etasje
- 2
- Byggeår
- 1965
- Energimerking
- F - Oransje
- Tomteareal
- 64 065 m² (eiet)
Om boligen
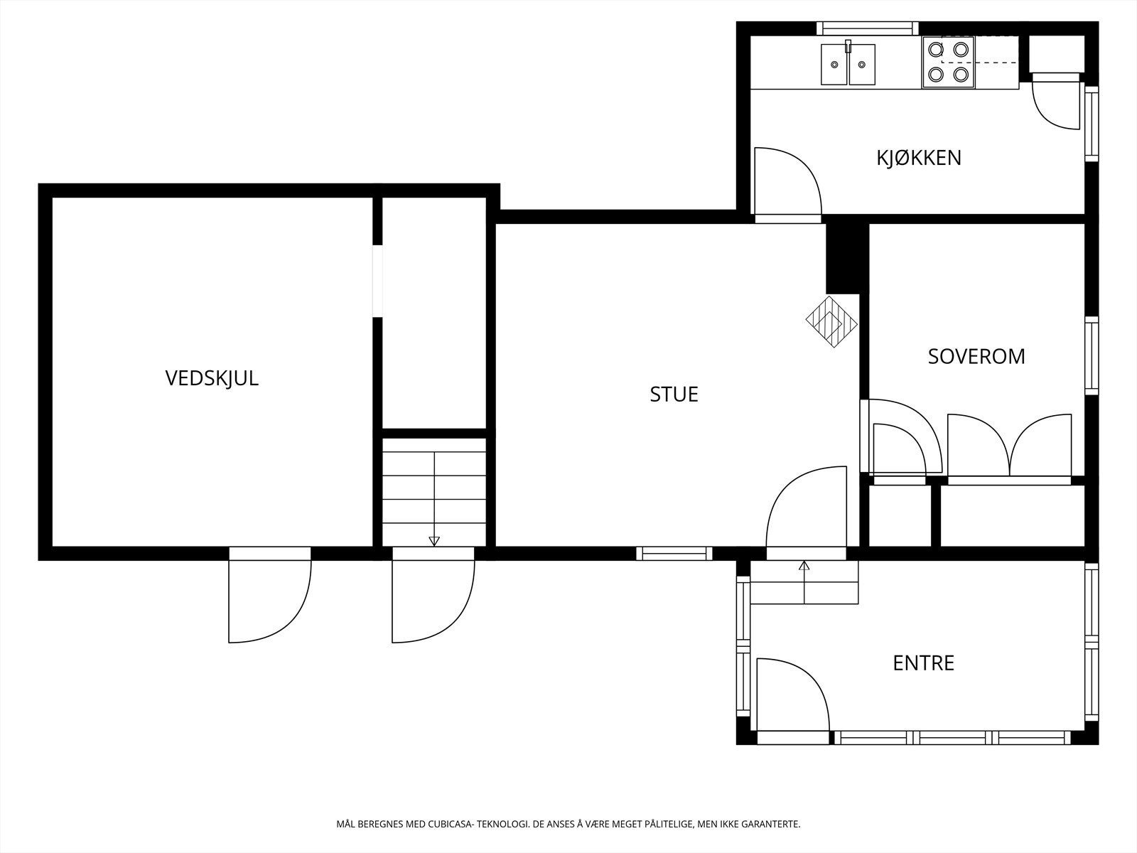
Mastvelten ligger idyllisk til med strandlinje langs Glomma, helt syd i Elverum kommune. Småbruket er totalt på 64 daa, hvor 38 daa er dyrket mark og 20 daa prod. skog. Det er en innholdsrik bygningsmasse med bla. driftsbygning med 3 verkstedrom og mye lagring. Boligen har alle fasiliteter på et plan, men har mye lagring og potensiale i kjelleren. Huset har gode kvaliteter som bla. varmepumpe fra 2024 og anlegg for vannbåren oppvarming og varmtvann.
Veslestua har tidligere vært benyttet som bolig, men er i dag kun registrert som uthus. Videre finnes stabbur, redskapshus og fjøs. I fjøset er det laget en hyggelig grillplass. Glomma byr inn til både bading og fiske. I Braskereidfoss er det nærbutikk og et lite serviceutvalg. Det er kun ca. 20 minutter til Elverum og 1 time til Kongsvinger.
Veslestua har tidligere vært benyttet som bolig, men er i dag kun registrert som uthus. Videre finnes stabbur, redskapshus og fjøs. I fjøset er det laget en hyggelig grillplass. Glomma byr inn til både bading og fiske. I Braskereidfoss er det nærbutikk og et lite serviceutvalg. Det er kun ca. 20 minutter til Elverum og 1 time til Kongsvinger.
NB: Knappen for å vise hele beskrivelsen har kun en visuell effekt.
NB: Knappen for å vise hele beskrivelsen har kun en visuell effekt.
Salgsoppgaven beskriver vesentlig og lovpålagt informasjon om eiendommen
Se komplett salgsoppgaveNyttige lenker
Nærområdet

TEGNEBY & GRØNNERØD LANDBRUKSMEGLING AS
Velkommen til oss
Annonseinformasjon
| FINN-kode | 443574400 |
|---|---|
| Sist endret | 30. des. 2025 13:39 |
| Referanse | GAR30.2584 |
Annonsene kan være mangelfulle i forhold til lovpålagt opplysningsplikt. Før bindende avtale inngås oppfordres interessenter til å innhente komplett informasjon fra meglerforetaket, selger eller utleier.








































