Bildegalleri

Kveldsbilde fasade mot vest

HAUGESUND - Flott funkisbolig m/​dobbel garasje - Høy standard - Solvang Skolekrets - Vannbåren varme m/​bergvarme

Prisantydning8 990 000 kr
Totalpris
9 234 990 kr
Omkostninger
244 990 kr
Kommunale avg.
26 034 kr per år
Formuesverdi
1 484 398 kr

Nøkkelinfo

Boligtype
Enebolig
Eieform
Eier (Selveier)
Soverom
5
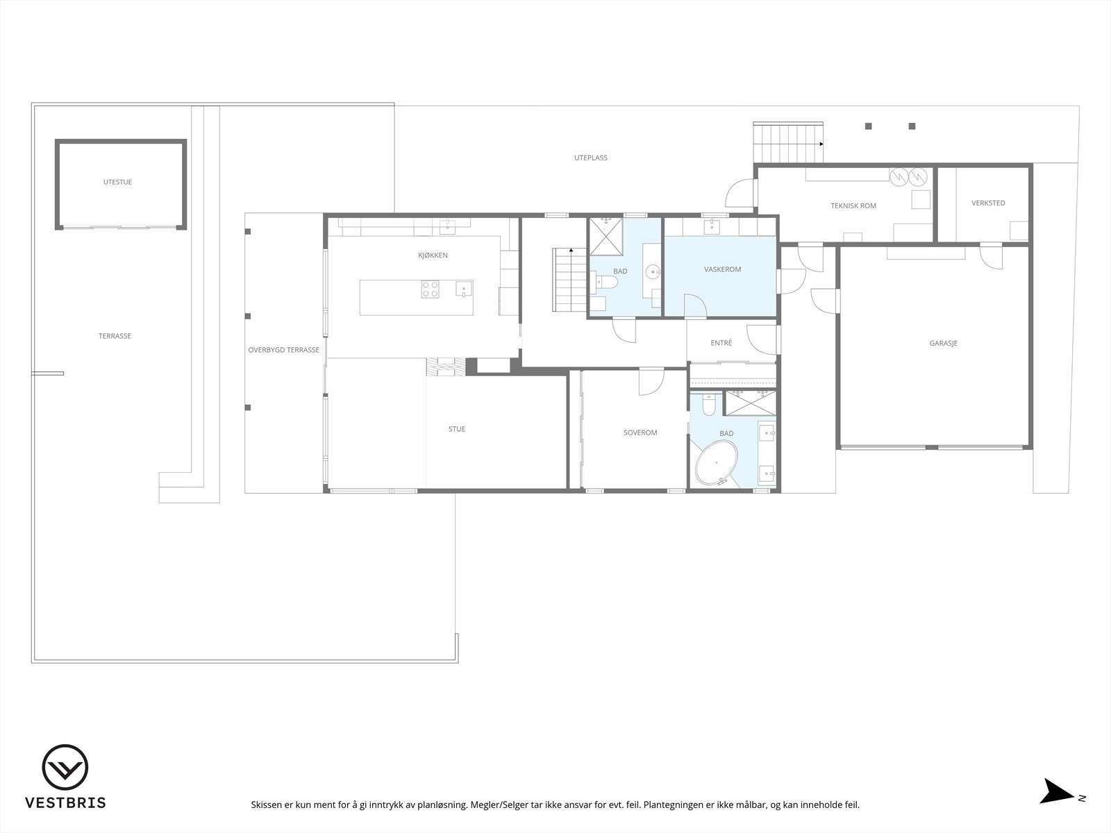
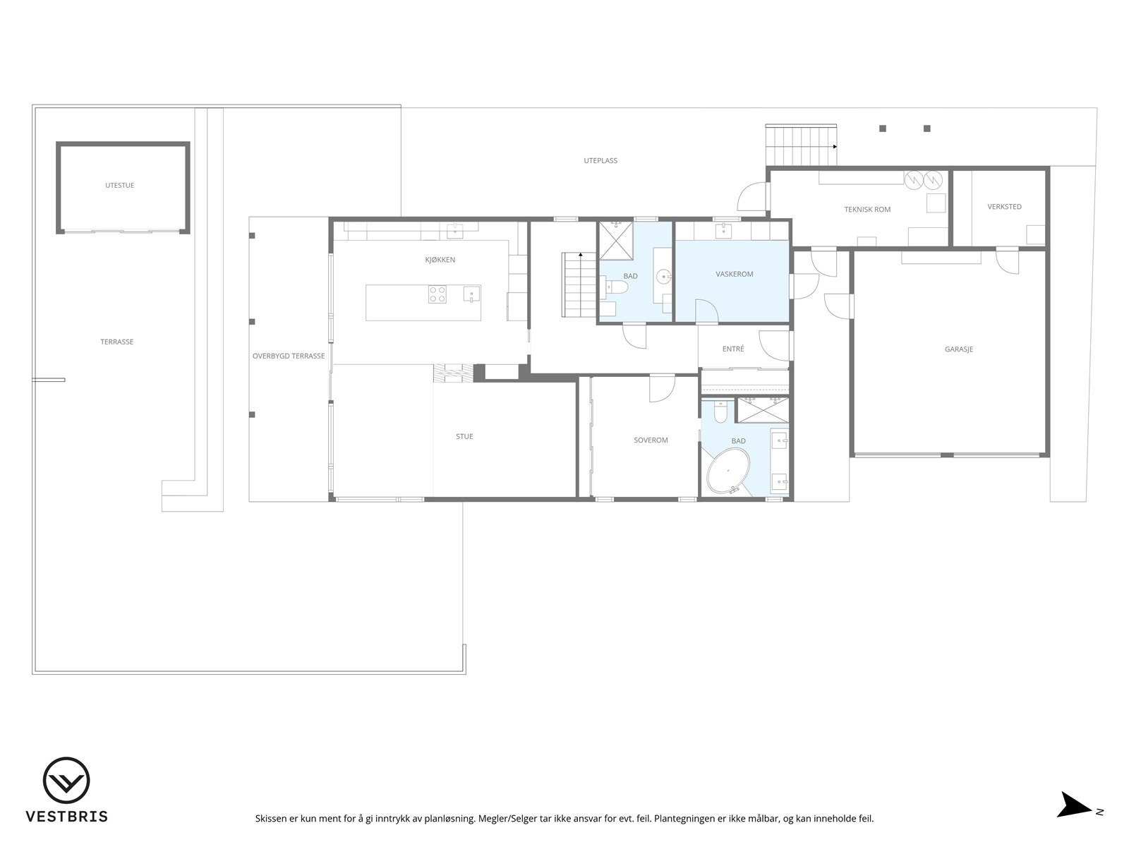
Internt bruksareal
251 m² (BRA-i)
Bruksareal
310 m²
Eksternt bruksareal
59 m² (BRA-e)
Byggeår
2011
Energimerking
B - Gul
Rom
7
Tomteareal
676 m² (eiet)

Les mer om bruksareal her

Fasiliteter

Balkong/Terrasse
Barnevennlig
Bredbåndstilknytning
Garasje/P-plass
Hage
Kabel-TV
Offentlig vann/kloakk
Parkett
Peis/Ildsted
Rolig
Sentralt
Utsikt
Turterreng

Visning

onsdag, 07. januar
17:00 – 18:00
Husk påmelding til fellesvisning, bruk påmeldingsknapp på finn.no. Takk på forhånd og velkommen til visning.
Visningspåmelding

Om boligen

Innholdsrik og særdeles gjennomtenkt enebolig m/høy standard innvendig og utvendig. Særdeles barne- og familievennlig område. Boligen har mange spennende fasiliteter og praktiske løsninger/detaljer: 5 soverom hvorav en foreldresuite, 2 stuer, 3 bad og vaskerom, perfekt for barnefamilie. Vedlikeholds-lett hage/gårdsplass. Flislagte bad, HTH-kjøkken med hovedsakelig Miele produkter, kjøl/frys 60+60 fra Electrolux. Vannbåren varme m/bergvarme i boligen med termostater i de fleste rom. Utstrakt bruk av heltre eikegulv og flislagte bad. Gangavstand til skoler i alle alderstrinn, barnehager, turløyper, idrettsanlegg, ishall, klatrehall, "svømmehall" og til sentrum med alle fasiliteter. (1.2 km innenfor alt). Interessenter må se og oppleve boligen for korrekt inntrykk. Velkommen på fellesvisning!

Salgsoppgaven beskriver vesentlig og lovpålagt informasjon om eiendommen

Se komplett salgsoppgave

Nærområdet

Annonseinformasjon

FINN-kode443573136
Sist endret30. des. 2025 11:59
ReferanseEMA1.25353

Rapporter annonse

Annonsene kan være mangelfulle i forhold til lovpålagt opplysningsplikt. Før bindende avtale inngås oppfordres interessenter til å innhente komplett informasjon fra meglerforetaket, selger eller utleier.