Bildegalleri

Velkommen til denne lekre og innbydende leiligheten i en lys og høy 7.Etasje på Tangen 19.
Lys og lekker 3-roms leilighet i 7.Etasje på Tangen. To balkonger, kveldssol. Heis og bod. mulighet for p-plass
Prisantydning10 990 000 kr
Nøkkelinfo
- Boligtype
- Leilighet
- Eieform
- Eier (Selveier)
- Soverom
- 2
- Internt bruksareal
- 104 m² (BRA-i)
- Bruksareal
- 109 m²
- Eksternt bruksareal
- 5 m² (BRA-e)
- Balkong/Terrasse
- 39 m² (TBA)
- Etasje
- 7
- Byggeår
- 2024
- Energimerking
- C - Mørkegrønn
- Rom
- 3
- Tomteareal
- 7 714 m² (eiet)
Fasiliteter
Balkong/Terrasse
Barnevennlig
Bredbåndstilknytning
Garasje/P-plass
Heis
Kjæledyr tillatt
Kabel-TV
Offentlig vann/kloakk
Parkett
Rolig
Sentralt
Utsikt
Vaktmester-/vektertjeneste
Bademulighet
Fiskemulighet
Turterreng
Lademulighet
Balansert ventilasjon
Visning
tirsdag, 06. januar
16:00 – 17:00
For å delta på visning, ber vi om at du melder deg på. Da sikrer vi at du får nødvendig informasjon og at det er satt av tilstrekkelig med tid. Kontakt megler dersom annet tidspunkt ønskes. Husk å lese salgsoppgaven før visningen, så du stiller forberedt.
Ønsker du kun å bli holdt orientert, kan du fra eiendommens hjemmeside få varsel om solgtpris, eller kontakte megler.
VisningspåmeldingOm boligen
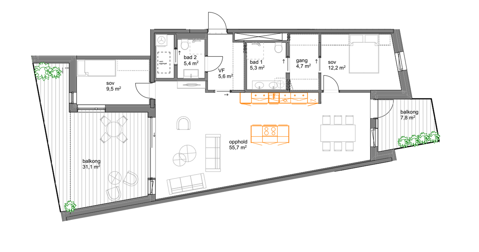
Velkommen til Tangen 19 - Dette er en helt ny og innflytningsklar eksklusiv og lekker 3-roms toppleilighet på Tangen Torv med plassbygd garderobeløsning i gang, walk inn garderobe og vaskerom.
Leiligheten har store vindusflater fra gulv til tak som gir fine lysforhold sammen med harmoniske og moderne fargevalg som gjør den enkel å møblere og innrede.
Her får du god og praktisk planløsning med to soverom, to bad, vaskerom, gang med god plass til garderobe og åpen stue og kjøkken løsning på hele 56 kvadrat med utgang til to balkonger. Bod i kjeller.
Tangen Torv er tilrettelagt for en enkel og tilgjengelig livsstil med alt du måtte trenge innenfor kort rekkevidde, med parkering i kjelleren og heis rett opp til en moderne og behagelig leilighet.
Leiligheten har store vindusflater fra gulv til tak som gir fine lysforhold sammen med harmoniske og moderne fargevalg som gjør den enkel å møblere og innrede.
Her får du god og praktisk planløsning med to soverom, to bad, vaskerom, gang med god plass til garderobe og åpen stue og kjøkken løsning på hele 56 kvadrat med utgang til to balkonger. Bod i kjeller.
Tangen Torv er tilrettelagt for en enkel og tilgjengelig livsstil med alt du måtte trenge innenfor kort rekkevidde, med parkering i kjelleren og heis rett opp til en moderne og behagelig leilighet.
NB: Knappen for å vise hele beskrivelsen har kun en visuell effekt.
NB: Knappen for å vise hele beskrivelsen har kun en visuell effekt.
Salgsoppgaven beskriver vesentlig og lovpålagt informasjon om eiendommen
Se komplett salgsoppgaveNyttige lenker
Nærområdet
Krogsveen Kristiansand
Velkommen til en enklere boligreise.
Annonseinformasjon
| FINN-kode | 443543866 |
|---|---|
| Sist endret | 29. des. 2025 11:18 |
| Referanse | KR31.25136 |
Annonsene kan være mangelfulle i forhold til lovpålagt opplysningsplikt. Før bindende avtale inngås oppfordres interessenter til å innhente komplett informasjon fra meglerforetaket, selger eller utleier.







































