Bildegalleri

Marianne Vasiljevic ved EiendomsMegler 1 har gleden av å presentere Blusuvollsbakken 3.
Singsaker
Flott eiendom med fantastisk beliggenhet på Øvre Singsaker - Solrik tomt - Garasje - Uinnredet kjeller med god takhøyde.
Prisantydning7 990 000 kr
Nøkkelinfo
- Boligtype
- Enebolig
- Eieform
- Eier (Selveier)
- Soverom
- 4
- Internt bruksareal
- 275 m² (BRA-i)
- Bruksareal
- 292 m²
- Eksternt bruksareal
- 17 m² (BRA-e)
- Byggeår
- 1919
- Energimerking
- G - Oransje
- Rom
- 5
- Tomteareal
- 495 m² (eiet)
Fasiliteter
Barnevennlig
Garasje/P-plass
Offentlig vann/kloakk
Peis/Ildsted
Sentralt
Visning
mandag, 12. januar
16:00 – 17:00
Våre visninger har påmelding. Dette gjør vi for å kunne yte bedre service for våre kunder. Verdifullt for boligkjøper og for oss. Vi anbefaler at salgsoppgaven lastes ned digitalt før visning, og ring oss gjerne på forhånd for spørsmål om boligen. Passer ikke angitt tidspunkt, ta kontakt så finner vi en løsning. Skulle det mot formodning ikke være påmeldte til angitt visningstidspunkt vil ikke visning bli gjennomført.
Om boligen
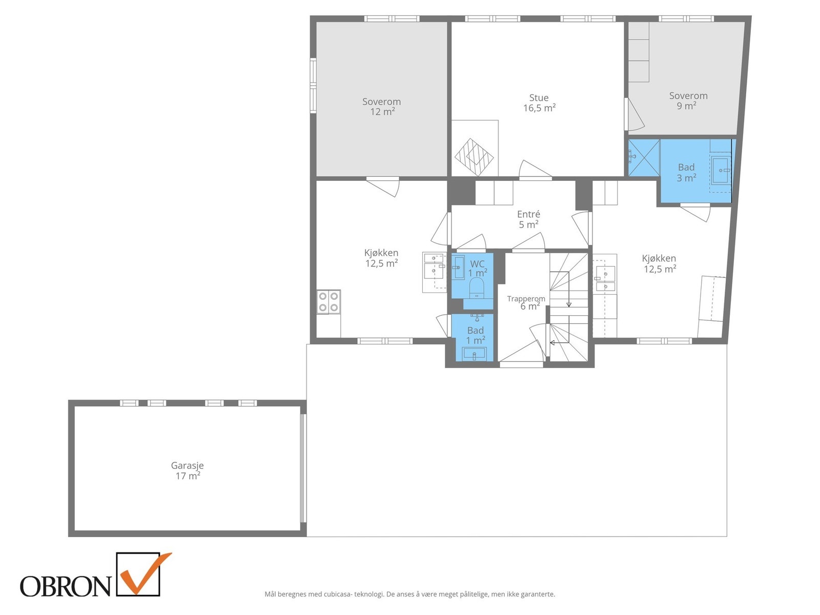
EiendomsMegler1 ved Marianne Vasiljevic har gleden av å presentere en attraktiv enebolig i Blusuvollsbakken 3 på Singsaker. Her får du muligheten til å erverve en av de flotte og sjeldne eneboligene i mur på beste Singsaker med solrik tomt, privat hageflekk, garasje og parkering i gårdsplass. Boligen har en svært ettertraktet beliggenhet på Singsaker, som regnes som et av byens desidert mest fasjonable og attraktive områder. Oppussing må påregnes.
Kvaliteter:
- Ærverdig enebolig på attraktive Singsaker..
- Lettstelt hagetomt med fine solforhold.
- Garasje med oppstillingsplass for bil i front.
- Boligen består i dag av en leilighet i 1.etasje og en leilighet
i 2.etasje, loft og full uinnredet kjeller med god takhøyde.
- Vedfyring i første og andre etasje..
- Nært barnehager og skole.
- Nærhet til NTNU, SINTEF, St.Olav og Trondheim sentrum.
Velkommen på visning!
Kvaliteter:
- Ærverdig enebolig på attraktive Singsaker..
- Lettstelt hagetomt med fine solforhold.
- Garasje med oppstillingsplass for bil i front.
- Boligen består i dag av en leilighet i 1.etasje og en leilighet
i 2.etasje, loft og full uinnredet kjeller med god takhøyde.
- Vedfyring i første og andre etasje..
- Nært barnehager og skole.
- Nærhet til NTNU, SINTEF, St.Olav og Trondheim sentrum.
Velkommen på visning!
NB: Knappen for å vise hele beskrivelsen har kun en visuell effekt.
NB: Knappen for å vise hele beskrivelsen har kun en visuell effekt.
Salgsoppgaven beskriver vesentlig og lovpålagt informasjon om eiendommen
Se komplett salgsoppgaveNyttige lenker
Nærområdet
EiendomsMegler 1 Lerkendal
Vi loser deg trygt gjennom hele boligsalget
Annonseinformasjon
| FINN-kode | 443535093 |
|---|---|
| Sist endret | 29. des. 2025 12:18 |
| Referanse | 37250349 |
Annonsene kan være mangelfulle i forhold til lovpålagt opplysningsplikt. Før bindende avtale inngås oppfordres interessenter til å innhente komplett informasjon fra meglerforetaket, selger eller utleier.








































