Bildegalleri

EiendomsMegler 1 har gleden av å presentere en flott 3-roms leilighet med flott beliggenhet på Bromstad/Valentinlyst. Foto: Nervik. Bilde er virtuelt fremstilt med møbler.
Bromstad
LYS OG FLOTT 3-ROMS ANDELSLEILIGHET PÅ 53m² | P-plass i kjeller | Balkong i høy 1.etg |Mulighet for hurtig overtakelse
Prisantydning2 730 000 kr
Nøkkelinfo
- Boligtype
- Leilighet
- Eieform
- Andel
- Soverom
- 2
- Internt bruksareal
- 53 m² (BRA-i)
- Bruksareal
- 66 m²
- Eksternt bruksareal
- 3 m² (BRA-e)
- Innglasset balkong
- 10 m² (BRA-b)
- Etasje
- 1
- Byggeår
- 1972
- Energimerking
- F - Rød
- Rom
- 3
- Tomteareal
- 16 299 m²
Fasiliteter
Barnevennlig
Balkong/Terrasse
Garasje/P-plass
Kabel-TV
Alarm
Offentlig vann/kloakk
Parkett
Turterreng
Vaktmester-/vektertjeneste
Fellesvaskeri
Sentralt
Bredbåndstilknytning
Moderne
Rolig
Lademulighet
Visning
onsdag, 04. mars
16:00 – 16:45
Våre visninger har påmelding. Dette gjør vi for å kunne yte bedre service for våre kunder. Verdifullt for boligkjøper og for oss. Vi anbefaler at salgsoppgaven lastes ned digitalt før visning, og ring oss gjerne på forhånd for spørsmål om boligen. Passer ikke angitt tidspunkt, ta kontakt så finner vi en løsning. Skulle det mot formodning ikke være påmeldte til angitt visningstidspunkt vil ikke visning bli gjennomført.
Om boligen
Velkommen til Stallmestervegen 15!
Leiligheten ligger fint til på Bromstad med god beliggenhet i feltet og kort vei til det meste man trenger i hverdagen.
Av en rekke kvaliteter vil vi trekke frem:
Velkommen til en hyggelig visning!
Leiligheten ligger fint til på Bromstad med god beliggenhet i feltet og kort vei til det meste man trenger i hverdagen.
Av en rekke kvaliteter vil vi trekke frem:
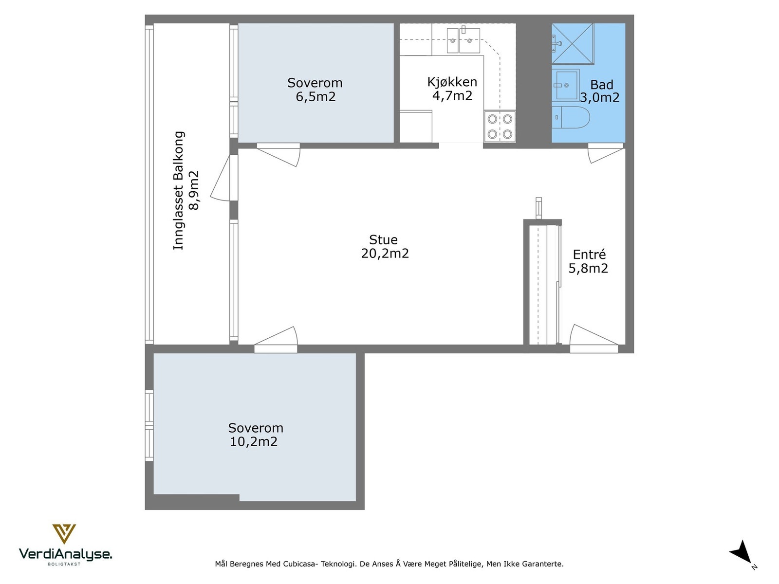
- Lys og romslig leilighet på ca. 53kvm BRA-i
- Romslig balkong på ca. 8,9kvm god plass til sittegruppe
- Kjøkken med godt av skap- og benkeplass. TG 1 fra takstmann
- Pent flislagt bad fra 2013
- Parkering i parkeringskjeller
- Bod i kjeller
- Mulighet for en rask overtakelse
- Stort felles vaskeri i underetasje med tørketrommel og vaskemaskin
- Kort vei til servicefasiliteter som dagligvarebutikk, søndagsåpen butikk, Valentinlyst senter, Sirkus Shopping, bussholderplass og sentrum
Velkommen til en hyggelig visning!
NB: Knappen for å vise hele beskrivelsen har kun en visuell effekt.
NB: Knappen for å vise hele beskrivelsen har kun en visuell effekt.
Salgsoppgaven beskriver vesentlig og lovpålagt informasjon om eiendommen
Se komplett salgsoppgaveNyttige lenker
Nærområdet
EiendomsMegler 1 Valentinlyst
Vi loser deg trygt gjennom hele boligsalget
Annonseinformasjon
| FINN-kode | 443530859 |
|---|---|
| Sist endret | 24. feb. 2026 15:01 |
| Referanse | 34250299 |
Annonsene kan være mangelfulle i forhold til lovpålagt opplysningsplikt. Før bindende avtale inngås oppfordres interessenter til å innhente komplett informasjon fra meglerforetaket, selger eller utleier.





















