Bildegalleri

PrivatMegleren Hamar v/Arbresh Vitija har gleden av å presentere Jemlivegen 6!
Velholdt og innholdsrik enebolig med god planløsning | Oppgradert kjøkken i 2018 | Dobbel garasje | 5 soverom |
Nøkkelinfo
- Boligtype
- Enebolig
- Eieform
- Eier (Selveier)
- Soverom
- 5
- Internt bruksareal
- 192 m² (BRA-i)
- Bruksareal
- 234 m²
- Eksternt bruksareal
- 42 m² (BRA-e)
- Balkong/Terrasse
- 61 m² (TBA)
- Byggeår
- 1986
- Energimerking
- E - Gul
- Tomteareal
- 1 102 m² (eiet)
- Boligselgerforsikring
- Ja
Visning
Om boligen
PrivatMegleren Hamar v/Arbresh Vitija har gleden av å presentere Jemlivegen 6!
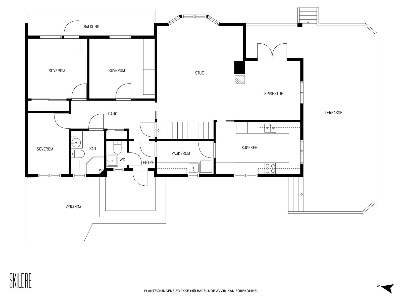
Eiendommen består av en romslig enebolig fra 1986 som ligger i et etablert og attraktivt boligområde. Boligen går over to etasjer og har en gjennomtenkt og funksjonell planløsning med gode rom.
I hovedetasjen finner du en entre, stue med utgang til flotte uteområder og terrasse, et moderne kjøkken med god benkeplass og integrerte hvitevarer som ble modernisert i 2018, samt et flislagt bad med varmekabler i gulv, dusjnisje, baderomsinnredning og toalett. Etasjen inneholder også et separat toalett rom, tre soverom og et praktisk vaskerom.
Merk deg dette:
- Innholdsrik og flott enebolig
- 5 soverom
- Stor tomt
- Moderne kjøkken
- Flotte uteområder
Velkommen til en hyggelig visning.
Salgsoppgaven beskriver vesentlig og lovpålagt informasjon om eiendommen
Se komplett salgsoppgaveNyttige lenker
Nærområdet
PrivatMegleren Hamar
Annonseinformasjon
| FINN-kode | 443529444 |
|---|---|
| Sist endret | 01. jan. 2026 03:10 |
| Referanse | 320250242 |
Annonsene kan være mangelfulle i forhold til lovpålagt opplysningsplikt. Før bindende avtale inngås oppfordres interessenter til å innhente komplett informasjon fra meglerforetaket, selger eller utleier.





















































