Bildegalleri

Velkommen til Sløyfa 45! Romslig og godt vedlikeholdt enebolig over tre plan. (Foto: EFKT v/ Pål Godager)

Ilseng

Innholdsrik og solid familiebolig med store uteplasser, dobbel carport og solrik tomt.

Prisantydning3 650 000 kr
Totalpris
3 762 240 kr
Omkostninger
112 240 kr
Kommunale avg.
24 302 kr per år
Eiendomsskatt
2 904 kr per år
Formuesverdi
384 352 kr

Nøkkelinfo

Boligtype
Enebolig
Eieform
Eier (Selveier)
Soverom
3
Internt bruksareal
187 m² (BRA-i)
Bruksareal
254 m²
Eksternt bruksareal
67 m² (BRA-e)
Balkong/Terrasse
85 m² (TBA)
Etasje
3
Byggeår
1952
Energimerking
D - Oransje
Rom
4
Tomteareal
1 326 m² (eiet)

Les mer om bruksareal her

Fasiliteter

Balkong/Terrasse
Barnevennlig
Bredbåndstilknytning
Garasje/P-plass
Hage
Kjæledyr tillatt
Kabel-TV
Offentlig vann/kloakk
Peis/Ildsted
Turterreng

Visning

onsdag, 14. januar
17:00 – 18:00
For å delta på visning, ber vi om at du melder deg på. Da sikrer vi at du får nødvendig informasjon og at det er satt av tilstrekkelig med tid. Kontakt megler dersom annet tidspunkt ønskes. Husk å lese salgsoppgaven før visningen, så du stiller forberedt. Ønsker du kun å bli holdt orientert, kan du fra eiendommens hjemmeside få varsel om solgtpris, eller kontakte megler.
Visningspåmelding

Om boligen

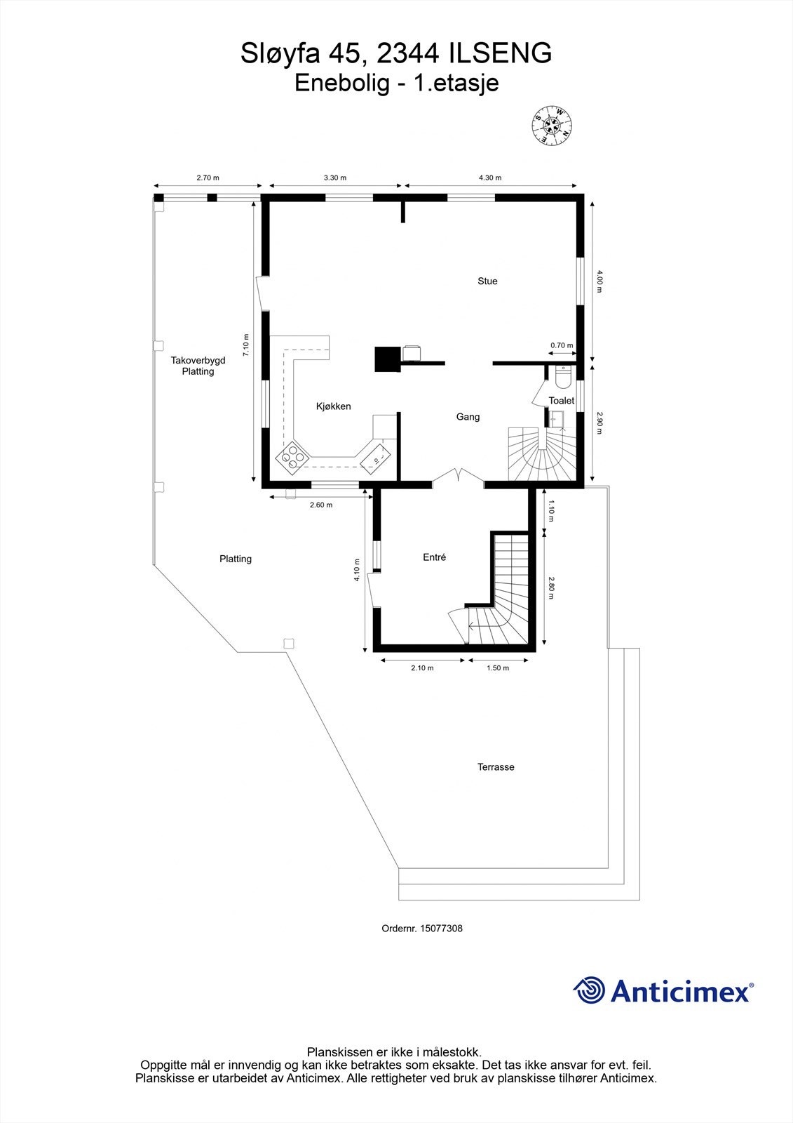
Velkommen til Sløyfa 45!

Romslig og godt vedlikeholdt enebolig over tre plan med praktisk planløsning og gode kvaliteter både inne og ute.
Boligen inneholder blant annet 3 soverom, 2 flislagte bad - hvorav ett er fra 2018, toalettrom, vaskerom, samt en lys hovedetasje med åpen løsning mellom kjøkken og stue.
Her er det mange smarte løsninger for oppbevaring og utnyttelse av arealene.
Eiendommen byr på hele 85 kvm terrasse og platting, barnevennlig hage med dyrkingsmuligheter, uthus, hønsehus og dobbel carport.
Beliggende i et rolig og etablert boligområde på Ilseng med kort vei til skole, barnehage, butikk, kollektivtransport og fine turmuligheter.

Velkommen til en hyggelig visning!

Salgsoppgaven beskriver vesentlig og lovpålagt informasjon om eiendommen

Se komplett salgsoppgave

Nærområdet

Annonseinformasjon

FINN-kode443435162
Sist endret29. des. 2025 14:46
ReferanseKR65.25312

Rapporter annonse

Annonsene kan være mangelfulle i forhold til lovpålagt opplysningsplikt. Før bindende avtale inngås oppfordres interessenter til å innhente komplett informasjon fra meglerforetaket, selger eller utleier.