Bildegalleri

Ida Holan V/ EIE Eiendomsmegling presenterer Kopstadlinna 29 for salg!
Landlig familiebolig med dobbel garasje og stor tomt | Kjellerstue | Barnevennlig |Solrik og flott tomt
Prisantydning3 690 000 kr
Nøkkelinfo
- Boligtype
- Enebolig
- Eieform
- Eier (Selveier)
- Soverom
- 2
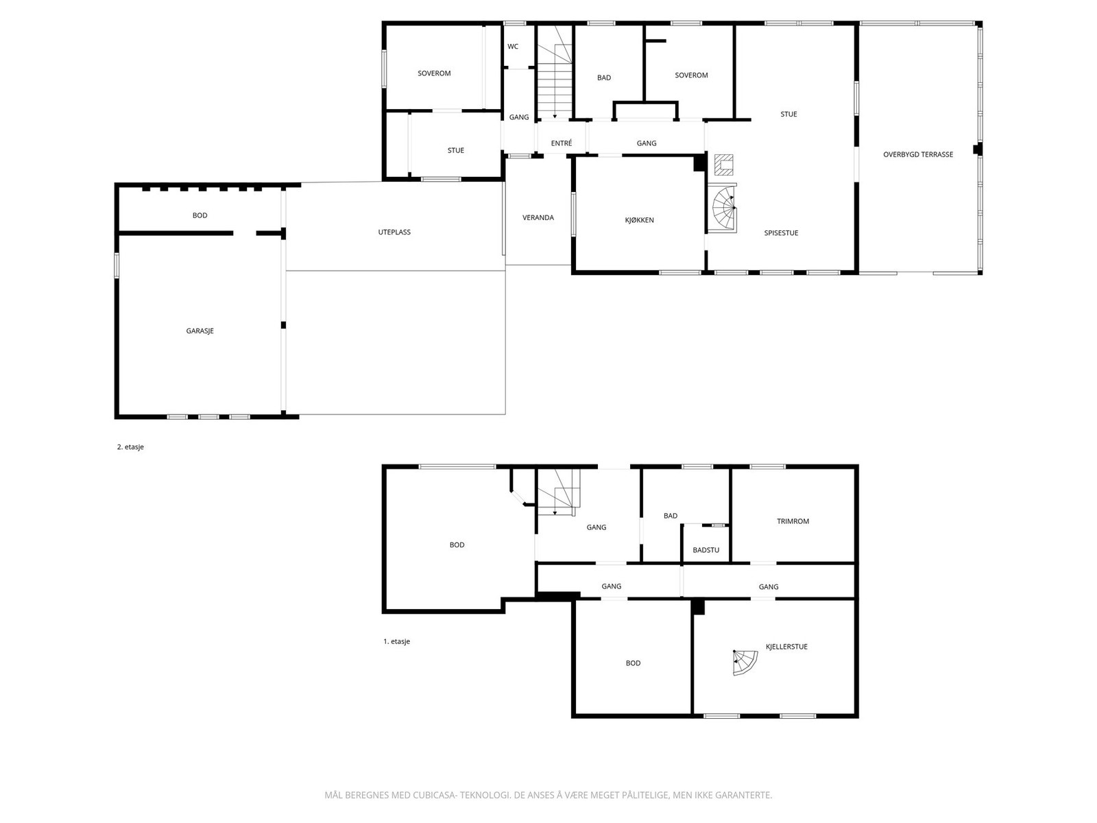
- Internt bruksareal
- 202 m² (BRA-i)
- Bruksareal
- 242 m²
- Balkong/Terrasse
- 24 m² (TBA)
- Byggeår
- 1965
- Energimerking
- E - Gul
- Tomteareal
- 1 817 m² (eiet)
Fasiliteter
Barnevennlig
Balkong/Terrasse
Garasje/P-plass
Peis/Ildsted
Turterreng
Sentralt
Bredbåndstilknytning
Moderne
Rolig
Bademulighet
Om boligen
Velkommen til Kopstadlinna 29. Denne romslige eiendommen byr på en innholdsrik og funksjonell bolig med gode planløsninger og rikelig med plass både inne og ute. Boligen har lyse og trivelige oppholdsrom, flere soverom og en anvendelig kjellerstue som gir fleksible bruksmuligheter for både familie, hobby og hjemmekontor. Kjøkkenet har god arbeidsplass og naturlig samlingspunkt for hverdagen.
Eiendommen ligger landlig og solrikt til med flott utsikt over omkringliggende jordbrukslandskap og natur. Den romslige tomten gir gode uteområder for lek, hage og avslapning, og parkering er enkelt med både god gårdsplass og dobbel garasje med 3-fas strøm. Her bor du fredelig, samtidig som du har kort vei til E18 og enkel adkomst mot Holmestrand, Drammen og Oslo.
Eiendommen ligger landlig og solrikt til med flott utsikt over omkringliggende jordbrukslandskap og natur. Den romslige tomten gir gode uteområder for lek, hage og avslapning, og parkering er enkelt med både god gårdsplass og dobbel garasje med 3-fas strøm. Her bor du fredelig, samtidig som du har kort vei til E18 og enkel adkomst mot Holmestrand, Drammen og Oslo.
NB: Knappen for å vise hele beskrivelsen har kun en visuell effekt.
NB: Knappen for å vise hele beskrivelsen har kun en visuell effekt.
Salgsoppgaven beskriver vesentlig og lovpålagt informasjon om eiendommen
Se komplett salgsoppgaveNærområdet
EIE eiendomsmegling Tønsberg
Annonseinformasjon
| FINN-kode | 443411278 |
|---|---|
| Sist endret | 29. des. 2025 15:51 |
| Referanse | 67251255 |
Annonsene kan være mangelfulle i forhold til lovpålagt opplysningsplikt. Før bindende avtale inngås oppfordres interessenter til å innhente komplett informasjon fra meglerforetaket, selger eller utleier.















































